De postcode 2313BC heeft de huisnummerreeks 1 - A t/m 15.
Overzicht van de belangrijkste cijfers van het Kadaster en het CBS voor het postcodegebied 2313 BC.
Onderstaande tabel toont de belangrijkste cijfers van het CBS en het Kadaster voor het postcodegebied 2313 BC. Bekijk de pagina's voor de andere postcodes binnen het gebied van de numerieke postcode 2313 via de tabel op de pagina van postcodegebied 2313.
| Postcode 2313BC | Aantal | Bron | Jaar data |
|---|---|---|---|
| Adressen met postcode | 16 | Kadaster | 2026 |
| Adressen met woonfunctie | 16 | Kadaster | 2026 |
| Panden met adres | 8 | Kadaster | 2026 |
| Percelen met adres | 1 | Kadaster | 2026 |
| Woningvoorraad | 15 | CBS | 2024 |
| Huishoudens | 15 | CBS | 2024 |
| Inwoners | 15 | CBS | 2024 |
Op deze pagina vind je een kaart van het postcodegebied 2313 BC, de data over meer dan 250 onderwerpen voor het postcodegebied 2313 BC en een overzicht van alle adressen met postcode 2313BC.
Overzicht postcode 2313 DefinitiesPostcode 2313BC ligt binnen het numerieke postcodegebied 2313 in de gemeente Leiden. Er zijn zestien adressen en vijftien woningen in het postcodegebied 2313 BC. De woningen hebben een gemiddelde WOZ waarde van €251.000. Er wonen vijftien inwoners in het postcodegebied 2313 BC. De meeste inwoners (33%) zijn tussen de 45 en 65 jaar oud. Postcode 2313BC telt vijftien huishoudens van gemiddeld 1,1 personen.
De gemiddelde afstand over de weg tot de belangrijkste voorzieningen in het postcodegebied 2313 BC is relatief kort:
Advertentie:

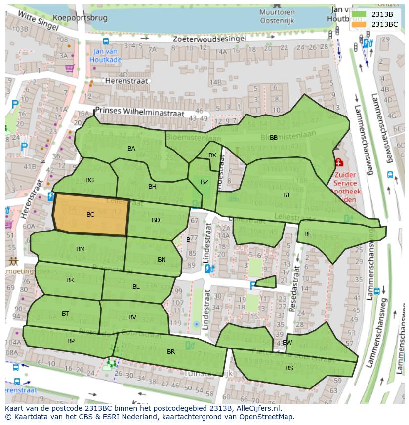
Bovenstaande afbeelding toont de kaart van het postcodegebied 2313BC. Klik op de kaart om de geografie van de numerieke postcode 2313 te tonen. Tip: bekijk ook de interactieve postcodekaart.
De postcode 2313 BC hoort bij de Leliestraat te Leiden binnen de gemeente Leiden. Deze postcode heeft de huisnummerreeks 1 - A t/m 15.
Download de postcodedata in handige Excel documenten voor de gemeente Leiden of voor heel Nederland.
Vorige postcode Volgende postcode| Straatnaam | Huisnummer | Postcode | Woonplaats | Gebruiksdoel | Oppervlakte | Woningtype | Bouwjaar | Energielabel | Bebouwde kom | Soort openbare ruimte |
|---|---|---|---|---|---|---|---|---|---|---|
| Leliestraat | 1 - A | 2313BC | Leiden | Woonfunctie | 60 m2 | Appartement | 1925 | D | ja | Weg |
| Leliestraat | 1 | 2313BC | Leiden | Woonfunctie | 55 m2 | Appartement | 1925 | A | ja | Weg |
| Leliestraat | 3 - A | 2313BC | Leiden | Woonfunctie | 60 m2 | Appartement | 1925 | C | ja | Weg |
| Leliestraat | 3 | 2313BC | Leiden | Woonfunctie | 55 m2 | Appartement | 1925 | C | ja | Weg |
| Leliestraat | 5 - A | 2313BC | Leiden | Woonfunctie | 60 m2 | Appartement | 1925 | C | ja | Weg |
| Leliestraat | 5 | 2313BC | Leiden | Woonfunctie | 55 m2 | Appartement | 1925 | C | ja | Weg |
| Leliestraat | 7 - A | 2313BC | Leiden | Woonfunctie | 60 m2 | Appartement | 1925 | C | ja | Weg |
| Leliestraat | 7 | 2313BC | Leiden | Woonfunctie | 55 m2 | Appartement | 1925 | B | ja | Weg |
| Leliestraat | 9 - A | 2313BC | Leiden | Woonfunctie | 60 m2 | Appartement | 1925 | C | ja | Weg |
| Leliestraat | 9 | 2313BC | Leiden | Woonfunctie | 55 m2 | Appartement | 1925 | C | ja | Weg |
| Leliestraat | 11 - A | 2313BC | Leiden | Woonfunctie | 60 m2 | Appartement | 1925 | F | ja | Weg |
| Leliestraat | 11 | 2313BC | Leiden | Woonfunctie | 55 m2 | Appartement | 1925 | C | ja | Weg |
| Leliestraat | 13 - A | 2313BC | Leiden | Woonfunctie | 60 m2 | Appartement | 1925 | C | ja | Weg |
| Leliestraat | 13 | 2313BC | Leiden | Woonfunctie | 55 m2 | Appartement | 1925 | B | ja | Weg |
| Leliestraat | 15 - A | 2313BC | Leiden | Woonfunctie | 60 m2 | Appartement | 1925 | C | ja | Weg |
| Leliestraat | 15 | 2313BC | Leiden | Woonfunctie | 55 m2 | Appartement | 1925 | C | ja | Weg |
Bovenstaande tabel toont de 16 adressen in het postcodegebied 2313 BC. Dit zijn alle adressen met postcode 2313BC in de BAG data van het Kadaster van 1 januari 2026.
De BAG (Basisregistratie Adressen en Gebouwen van het Kadaster) bevat de officiële gegevens van alle adressen en gebouwen in Nederland. In de BAG zijn, naast alle adressen, alle panden, verblijfsobjecten, standplaatsen en ligplaatsen geregistreerd. Per adres wordt ook het laatst bekende energielabel zoals geregistreerd bij de RVO weergegeven. Voorlopige energielabels zijn indicatief en niet rechtsgeldig; definitieve energielabels hebben een geldigheid van 10 jaar en kunnen inmiddels zijn verlopen.
Adressen LeidenDe vier bovenstaande taartdiagrammen tonen het percentage woningen naar verschillende woningkenmerken. Beschikbare kenmerken zijn eigendom, bewoning, type, soort woning en bouwperiode. Het jaar waar de data voor gelden staat in het midden van de grafiek. Klik op de afbeelding om deze groter weer te geven.
Bekijk onderstaande toelichting voor de definities van de woningkenmerken.
ToelichtingBovenstaande grafiek toont de gemiddelde WOZ woningwaarde per jaar in het postcodegebied 2313 BC.
Onderstaande tabel toont de gemiddelde WOZ woningwaarde per jaar op basis van de data van het CBS voor het postcodegebied 2313 BC:
| Jaar | Gemiddelde WOZ woningwaarde postcode 2313BC | % verschil |
|---|---|---|
| 2023 | €251.000 | 15% |
| 2022 | €219.000 | 10% |
| 2021 | €199.000 | 11% |
| 2020 | €179.000 | 9,8% |
| 2019 | €163.000 | 12% |
| 2018 | €146.000 | 11% |
| 2017 | €131.000 | 3,15% |
| 2016 | €127.000 | geen data |
De gemiddelde WOZ woningwaarde in het postcodegebied 2313 BC is met €124.000 toegenomen van €127.000 in 2016 tot €251.000 in 2023 (dat is een toename van 98%). Het gemiddelde verschil per jaar over de hele periode van 2016 tot en met 2023 was €17.714 (10%). De ontwikkeling van de data in de tijd volgt een monotoon stijgende trend: De cijfers stijgen ieder jaar.
Bekijk ook de ranglijst van de woningwaarden per buurt in de gemeente Leiden.
ToelichtingBovenstaand taartdiagram toont het aantal en percentage woningen naar type in het postcodegebied 2313 BC.
De gegevens over soorten woningen zijn gebaseerd op de Kadaster woningtypering en de gegevens over stand- en ligplaatsen van het Kadaster. Het soort woning is geografisch-algoritmisch bepaald voor panden waarin een woning is huisvest (panden met een woonfunctie als gebruiksdoel). De gegevens gelden voor de situatie op 1 januari 2026.
| Soort gebied | Naam gebied |
|---|---|
| Weg | Leliestraat |
| Woonplaats | Leiden |
| Buurt | Tuinstadwijk |
| Wijk | Roodenburgerdistrict |
| Gemeente | Leiden |
| Provincie | Zuid-Holland |
| Land | Nederland |
Bovenstaande tabel toont de regionale gebieden waarbinnen het postcodegebied 2313 BC zich bevindt. Dit is op basis van de gebiedsindelingen van het CBS van 2025 en de topografische kaarten van het Kadaster van 2026.
Klik op de naam van een gebied om de pagina met statistieken voor dat gebied weer te geven.Bovenstaande grafiek toont het aantal inwoners per jaar op basis van de data van het CBS voor het postcodegebied 2313 BC.
Onderstaande tabel toont het aantal inwoners per jaar op basis van de data van het CBS voor het postcodegebied 2313 BC:
| Jaar | Aantal inwoners postcode 2313BC | % verschil |
|---|---|---|
| 2024 | 15 | 0,0% |
| 2023 | 15 | -25% |
| 2022 | 20 | 0,0% |
| 2021 | 20 | -20% |
| 2020 | 25 | 0,0% |
| 2019 | 25 | 25% |
| 2018 | 20 | 0,0% |
| 2017 | 20 | 0,0% |
| 2016 | 20 | 0,0% |
| 2015 | 20 | geen data |
Het aantal inwoners in het postcodegebied 2313 BC is met 5 personen gedaald van 20 personen in 2015 tot 15 personen in 2024 (dat is een afname van 25%). Het gemiddelde verschil per jaar over de hele periode van 2015 tot en met 2024 was -1 personen (-2,22%).
Het aantal inwoners is het aantal personen zoals op 1 januari in het bevolkingsregister vastgelegd. Bekijk ook de tabel met het aantal inwoners per buurt in de gemeente Leiden.
In 2015 waren er 20 inwoners in het postcodegebied 2313 BC. In 2019 is het aantal gestegen tot 25 personen. De stijging ten opzichte van 2015 is 5 (25%), het verschil ten opzichte van het vorige jaar (2018) is 5 (25%). Het aantal inwoners blijft 25 tot en met 2020. In 2023 is het aantal gedaald tot 15 personen. Dit is een daling van 10 (-40%) ten opzichte van 2020, ten opzichte van het vorige jaar (2022) is het verschil -5 (-25%). Het aantal inwoners blijft 15 tot en met 2024.
Advertentie:
Bevolking: aantal en percentage inwoners op 1 januari 2024 naar geslacht (klik op de vlakken in de donutgrafiek om de aantallen te zien).
De donutgrafiek toont het geslacht van de bevolking, vrouw of man. Deze informatie komt uit het bevolkingsregister van de gemeenten.
Bevolking, leeftijdsgroepen: aantal inwoners op 1 januari 2024 per leeftijdscategorie.
Het aantal inwoners per leeftijdsgroep is afgerond op vijftallen en wordt alleen getoond bij minimaal vijf inwoners. De download voor de gemeente Leiden bevat veel meer leeftijdgegevens: Er is een document met het aantal inwoners in de gemeente per levensjaar en met een bevolkingspiramide met een uitsplitsing naar leeftijd en geslacht. Daarnaast bevat het document met postcodedata het aantal inwoners voor iedere 5 jarige leeftijdsgroep van ‘0 tot 5 jaar’ tot en met ‘90 jaar en ouder’ per viercijferige (numerieke) postcode voor alle jaren in de periode van 1998 tot en met 2025.
Autochtoon of migratieachtergrond in Nederland voor de periode van 2015 tot en met 2024: Bovenstaande grafiek toont de verdeling van de bevolking naar herkomst uit Nederland, herkomst uit Europa en herkomst van buiten Europa in het postcodegebied 2313 BC per jaar.
Onderstaande tabel toont het aantal inwoners maar herkomst per jaar op basis van de data van het CBS voor het postcodegebied 2313 BC:
| Jaar | Herkomst Nederland | Herkomst Europa | Herkomst buiten Europa |
|---|---|---|---|
| 2024 | 10 | 0 | 4 |
| 2023 | 10 | 0 | 0 |
| 2022 | 16 | 0 | 0 |
| 2021 | 20 | 0 | 0 |
| 2020 | 25 | 0 | 0 |
| 2019 | 25 | 0 | 0 |
| 2018 | 20 | 0 | 0 |
| 2017 | 20 | 0 | 0 |
| 2016 | 20 | 0 | 0 |
| 2015 | 20 | 0 | 0 |
In 2024 was de herkomst van inwoners in het postcodegebied 2313 BC als volgt verdeeld: herkomst uit Nederland: 71%, herkomst uit Europese landen: 0,0% en herkomst uit landen buiten Europa: 29% En in 2015 was de verdeling van inwoners naar herkomstgebied als volgt: herkomst uit Nederland: 100%, herkomst uit Europa: 0,0% en herkomst van buiten Europa: 0,0%.
Toelichting Meer migratieBovenstaande grafiek toont de gemiddelde grootte van huishoudens per gebied. Hierbij zijn de gebieden van laag naar hoog gesorteerd op het gemiddeld aantal personen in een huishouden. De gegevens gelden voor 2024.
De volgende gebieden worden in de grafiek weergegeven: 17 postcodegebieden (blauw), 19 postcode5gebieden (roze), 1 numerieke postcode (groen), 1 gemeente (geel), 1 provincie (bruin) en 1 land (oranje). Het postcodegebied 2313 BC wordt in het rood weergegeven.
Bovenstaand taartdiagram toont de verdeling naar soorten huishoudens voor het postcodegebied 2313 BC. De gegevens gelden voor 2024.
De cijfers gaan over de particuliere huishoudens op 1 januari 2024. Particuliere huishoudens bestaan uit één of meer inwoners die alleen of samen wonen en zelf in hun dagelijks onderhoud voorzien. In deze grafiek worden de huishoudens onderverdeeld in eenpersoonshuishoudens en meerpersoonshuishoudens. De cijfers over huishoudens zijn afgerond op vijftallen.
Het gemiddelde inkomen per huishouden in het postcodegebied 2313 BC is niet bekend. Het gemiddelde inkomen per huishouden in een postcodegebied is alleen bekend als er minstens 100 huishoudens wonen en als geen enkel huishouden meer dan 30% van het totale inkomen in dat gebied verdient.
Toelichting
Download alle data in handige Excel documenten van OpenInfo.nl. Niet goed, geld terug!
Download een schat aan informatie voor de gemeente Leiden. Met een Excel document met handige werkbladen met de data over de postcodes in de gemeente Leiden. Daarnaast bevat de download andere documenten met de data over de gemeente, wijken en buurten, alle adressen, verkiezingsuitslagen, gezondheidscijfers, misdaadcijfers en nog veel meer!
Download!Bovenstaande grafiek toont de ontwikkeling van het aantal verkeersongevallen in het postcodegebied 2313 BC. Gebruik het filter boven de grafiek om het aantal ongevallen per afloop (materiële schade, letselschade of dodelijke afloop) te bekijken.
Onderstaande tabel laat zien hoeveel verkeersongevallen er in het jaar 2024 in het postcodegebied 2313 BC plaatsvonden, uitgesplitst naar afloop.
| Afloop verkeersongevallen | Aantal verkeersongevallen in 2024 | jaar_verkeersongevallen_max |
|---|---|---|
| Totaal | 0 | 2024 |
| Materiële schade | 0 | 2024 |
| Letselschade | 0 | 2024 |
| Dodelijke afloop | 0 | 2024 |
De dataset met verkeersongevallen BRON is gekoppeld aan het digitale wegennet. Op basis van de locatie van de ongevallen is bepaald welke ongevallen binnen het postcodegebied 2313 BC vallen. De data over verkeersongevallen zijn ook beschikbaar op gemeente, wijk en buurt niveau. Bekijk de verkeersongevallen in de gemeente Leiden.
De data over ongevallen komen uit het Bestand geRegistreerde Ongevallen Nederland (BRON) van Rijkswaterstaat. Deze dataset bevat de verkeersongevallenmeldingen van de politie gekoppeld aan het digitale wegennet. De ongevallen zijn onderverdeeld naar de afloop van het ongeval: uitsluitend materiële schade, ongevallen met slachtoffers met letsel en ongevallen met dodelijke afloop. Letselschade is schade die iemand door lichamelijke verwondingen of psychische problemen heeft opgelopen. Onder ongevallen met slachtoffers met letsel vallen alle situaties waarbij iemand is opgenomen in het ziekenhuis, eerste hulp heeft gekregen of op een andere manier gewond is geraakt.
Bovenstaande grafiek toont het gemiddelde elektriciteitsverbruik en het gemiddelde aardgasverbruik per woning per jaar. De gegevens gelden voor 2023. Het gemiddelde energieverbruik in het postcodegebied 2313 BC wordt vergeleken met dat in het grotere postcodegebied 2313, de gemeente Leiden, de provincie Zuid-Holland en Nederland.
De grafiek toont het gemiddeld elektriciteitsverbruik in kWh en het gemiddeld verbruik van aardgas in m³. Het gemiddelde geldt voor het verbruik van één jaar van alle particuliere woningen in het postcodegebied 2313 BC en de andere gebieden.
ToelichtingBovenstaande grafiek toont het aantal adressen per type energielabel in het postcodegebied 2313 BC. Hiervoor zijn de data op adresniveau uit het EP-Online systeem van de RVO gebruikt. EP-Online is de officiële landelijke database waarin energielabels en energieprestatie-indicatoren van gebouwen zijn opgenomen. De gebruikte data gelden voor de situatie per 1 januari 2026.
Een energielabel geeft aan hoe energiezuinig een gebouw is. Hierbij is G het slechtste energielabel en A+++++ het beste. Energielabel C komt het meeste voor in het postcodegebied 2313 BC: 11 adressen hebben energielabel C. De download met uitgebreide informatie voor de gemeente Leiden bevat de data over energielabels, zowel per postcode, woonplaats, wijk en buurt als per adres.
Bovenstaand staafdiagram toont de gemiddelde afstand in kilometers over de weg tot kinderdagverblijven, buitenschoolseopvang, basisonderwijs, voortgezet onderwijs totaal, VMBO scholen en HAVO VWO scholen. Gebruik het filter boven de grafiek om de gegevens voor verschillende soorten locaties te tonen. De gebruikte cijfers komen van uit de nabijheidsstatistieken van het CBS en gelden voor de situatie in 2023.
Deze grafiek toont een regionale vergelijking van de gemiddelde reisafstanden voor inwoners van hun woonadres naar de dichtstbijzijnde locaties voor kinderopvang, basisonderwijs en voortgezet onderwijs. De afstanden zijn berekend als gemiddelde afstand van alle inwoners in een gebied tot de dichtstbijzijnde voorziening, berekend over de autoweg en rekening houdend met de rijrichting. In de grafiek zie je de gegevens voor het postcodegebied 2313 BC in vergelijking tot andere gebieden. De volgende gebieden worden in de grafiek weergegeven: Nederland (oranje), provincie Zuid-Holland (bruin), gemeente Leiden (geel), postcode 2313 (groen), 19 postcode5gebieden (roze) en 19 postcodegebieden (blauw). Postcodegebied 2313 BC wordt in het rood weergegeven.
Overzicht van het aantal panden naar bouwjaar voor het postcodegebied 2313 BC. Op basis van de gegevens uit de BAG van het Kadaster van 1 januari 2026. Merk op: deze gegevens betreffen het aantal panden met een adres. Het aantal adressen met panden in een gebied is bijna altijd hoger dan het aantal panden. Dit is omdat er meerdere adressen in hetzelfde pand gehuisvest kunnen zijn, zoals bij een appartementengebouw. Anderzijds kunnen er ook panden zonder adres voorkomen (zoals bijvoorbeeld een schuur), panden zonder adres zijn in deze telling niet meegenomen.
De BAG bevat de officiële gegevens van alle adressen en gebouwen in Nederland. In de BAG zijn, naast alle adressen, alle panden, verblijfsobjecten, standplaatsen en ligplaatsen geregistreerd.
Advertentie:
Onderstaande tabel toont de meest recent beschikbare gegevens voor het postcodegebied 2313 BC voor meer dan 250 onderwerpen! Selecteer een categorie in de linkerkolom om de onderwerpen in die categorie weer te geven.
| Bevolking | Waarde | Eenheid | Jaar |
|---|---|---|---|
| Inwoners | 15 | Aantal | 2024 |
| Mannen | 0 | Aantal | 2024 |
| Vrouwen | 15 | Aantal | 2024 |
| 0 tot 15 jaar | 0 | Aantal | 2024 |
| 15 tot 25 jaar | 0 | Aantal | 2024 |
| 25 tot 45 jaar | 0 | Aantal | 2024 |
| 45 tot 65 jaar | 5 | Aantal | 2024 |
| 65 jaar of ouder | 5 | Aantal | 2024 |
| % Mannen | 0,0% | Percentage | 2024 |
| % Vrouwen | 100% | Percentage | 2024 |
| % 0 tot 15 jaar | 0,0% | Percentage | 2024 |
| % 15 tot 25 jaar | 0,0% | Percentage | 2024 |
| % 25 tot 45 jaar | 0,0% | Percentage | 2024 |
| % 45 tot 65 jaar | 33% | Percentage | 2024 |
| % 65 jaar of ouder | 33% | Percentage | 2024 |
| Geboorten | geen data | Aantal | geen data |
| Herkomst totaal | 14 | Aantal | 2024 |
| Energieverbruik | Waarde | Eenheid | Jaar |
|---|---|---|---|
| Gemiddelde elektriciteitslevering per woning | 1.020 | Gemiddeld in kWh | 2023 |
| Gemiddeld aardgasverbruik per woning | 590 | Gemiddeld per m³ | 2023 |
| Adressen zonder energielabel | 0 | Aantal | 2026 |
| Adressen met voorlopig energielabel | 0 | Aantal | 2026 |
| Adressen met definitief energielabel | 16 | Aantal | 2026 |
| Energielabels A+++++ | 0 | Aantal | 2026 |
| Energielabels A++++ | 0 | Aantal | 2026 |
| Energielabels A+++ | 0 | Aantal | 2026 |
| Energielabels A++ | 0 | Aantal | 2026 |
| Energielabels A+ | 0 | Aantal | 2026 |
| Energielabels A | 1 | Aantal | 2026 |
| Energielabels B | 2 | Aantal | 2026 |
| Energielabels C | 11 | Aantal | 2026 |
| Energielabels D | 1 | Aantal | 2026 |
| Energielabels E | 0 | Aantal | 2026 |
| Energielabels F | 1 | Aantal | 2026 |
| Energielabels G | 0 | Aantal | 2026 |
| Huishoudens | Waarde | Eenheid | Jaar |
|---|---|---|---|
| Huishoudens | 15 | Aantal | 2024 |
| Eenpersoonshuishoudens | 15 | Aantal | 2024 |
| Meerpersoonshuishoudens | 0 | Aantal | 2024 |
| Meerpersoonshuishoudens zonder kinderen | geen data | Aantal | geen data |
| Meerpersoonshuishoudens met kinderen | geen data | Aantal | geen data |
| Huishoudens eenouder kinderen | geen data | Aantal | geen data |
| Huishoudens twee ouders kinderen | geen data | Aantal | geen data |
| Gemiddelde huishoudensgrootte | 1,1 | Gemiddeld aantal | 2024 |
| Inkomen | Waarde | Eenheid | Jaar |
|---|---|---|---|
| Mediaan huishoudinkomen | 00-40 laag tot onder midden | Categorisch type | 2019 |
| Inwoners met WW bijstand AO uitkering | 5 | Aantal | 2024 |
| Migratie | Waarde | Eenheid | Jaar |
|---|---|---|---|
| Herkomst Nederland | 10 | Aantal | 2024 |
| Herkomst buiten Nederland | 4 | Aantal | 2024 |
| Herkomst Europa | 0 | Aantal | 2024 |
| Herkomst buiten Europa | 4 | Aantal | 2024 |
| % Herkomst Nederland | 71% | Percentage | 2024 |
| % Herkomst buiten Nederland | 29% | Percentage | 2024 |
| % Herkomst Europa | 0,0% | Percentage | 2024 |
| % Herkomst buiten Europa | 29% | Percentage | 2024 |
| Geboren in Nederland met herkomst Nederland | 10 | Aantal | 2024 |
| Geboren in Nederland met herkomst Europa | 0 | Aantal | 2024 |
| Geboren in Nederland met herkomst buiten Europa | 0 | Aantal | 2024 |
| Geboren in Nederland met herkomst buiten Nederland | 0 | Aantal | 2024 |
| Geboren in Nederland | 10 | Aantal | 2024 |
| Geboren buiten Nederland met herkomst Europa | 0 | Aantal | 2024 |
| Geboren buiten Nederland met herkomst buiten Europa | 4 | Aantal | 2024 |
| Geboren buiten Nederland | 4 | Aantal | 2024 |
| Geboren / herkomst onnauwkeurigheid | 0 | Aantal | 2024 |
| % Geboren in Nederland met herkomst Nederland | 71% | Percentage | 2024 |
| % Geboren in Nederland met herkomst Europa | 0,0% | Percentage | 2024 |
| % Geboren in Nederland met herkomst buiten Nederland | 0,0% | Percentage | 2024 |
| % Geboren in Nederland met herkomst buiten Europa | 0,0% | Percentage | 2024 |
| % Geboren in Nederland | 71% | Percentage | 2024 |
| % Geboren buiten Nederland met herkomst Europa | 0,0% | Percentage | 2024 |
| % Geboren buiten Nederland met herkomst buiten Europa | 29% | Percentage | 2024 |
| % Geboren buiten Nederland | 29% | Percentage | 2024 |
| Autochtoon | 18 | Aantal | 2021 |
| Westers | 0 | Aantal | 2021 |
| Niet-westers | 0 | Aantal | 2021 |
| % Autochtoon | 90% | Percentage | 2021 |
| % Westers | 0,0% | Percentage | 2021 |
| % Niet-westers | 0,0% | Percentage | 2021 |
| Nabijheid voorzieningen | Waarde | Eenheid | Jaar |
|---|---|---|---|
| Huisartsenpraktijk afstand | 0,3 | Gemiddelde afstand in km | 2023 |
| Huisartsenpraktijken binnen 1 km | 8 | Gemiddeld aantal | 2023 |
| Huisartsenpraktijken binnen 3 km | 23 | Gemiddeld aantal | 2023 |
| Huisartsenpraktijken binnen 5 km | 45 | Gemiddeld aantal | 2023 |
| Huisartsenpost afstand | 4,4 | Gemiddelde afstand in km | 2023 |
| Apotheek afstand | 0,4 | Gemiddelde afstand in km | 2023 |
| Ziekenhuis met poli afstand | 3,1 | Gemiddelde afstand in km | 2023 |
| Ziekenhuizen met poli binnen 5 km | 3,0 | Gemiddeld aantal | 2023 |
| Ziekenhuizen met poli binnen 10 km | 5 | Gemiddeld aantal | 2023 |
| Ziekenhuizen met poli binnen 20 km | 14 | Gemiddeld aantal | 2023 |
| Ziekenhuis zonder poli afstand | 3,1 | Gemiddelde afstand in km | 2023 |
| Ziekenhuizen zonder poli binnen 5 km | 3,0 | Gemiddeld aantal | 2023 |
| Ziekenhuizen zonder poli binnen 10 km | 3,0 | Gemiddeld aantal | 2023 |
| Ziekenhuizen zonder poli binnen 20 km | 8 | Gemiddeld aantal | 2023 |
| Supermarkt afstand | 0,1 | Gemiddelde afstand in km | 2023 |
| Supermarkten binnen 1 km | 5 | Gemiddeld aantal | 2023 |
| Supermarkten binnen 3 km | 23 | Gemiddeld aantal | 2023 |
| Supermarkten binnen 5 km | 43 | Gemiddeld aantal | 2023 |
| Overige dagelijkse levensmiddelen afstand | 0,1 | Gemiddelde afstand in km | 2023 |
| Overige dagelijkse levensmiddelen binnen 1 km | 33 | Gemiddeld aantal | 2023 |
| Overige dagelijkse levensmiddelen binnen 3 km | 121 | Gemiddeld aantal | 2023 |
| Overige dagelijkse levensmiddelen binnen 5 km | 197 | Gemiddeld aantal | 2023 |
| Warenhuis afstand | 1,3 | Gemiddelde afstand in km | 2023 |
| Warenhuizen binnen 5 km | 7 | Gemiddeld aantal | 2023 |
| Warenhuizen binnen 10 km | 10 | Gemiddeld aantal | 2023 |
| Warenhuizen binnen 20 km | 36 | Gemiddeld aantal | 2023 |
| Café afstand | 0,2 | Gemiddelde afstand in km | 2023 |
| Cafés binnen 1 km | 13 | Gemiddeld aantal | 2023 |
| Cafés binnen 3 km | 71 | Gemiddeld aantal | 2023 |
| Cafés binnen 5 km | 76 | Gemiddeld aantal | 2023 |
| Cafetaria afstand | 0,1 | Gemiddelde afstand in km | 2023 |
| Cafetaria binnen 1 km | 23 | Gemiddeld aantal | 2023 |
| Cafetaria binnen 3 km | 119 | Gemiddeld aantal | 2023 |
| Cafetaria binnen 5 km | 160 | Gemiddeld aantal | 2023 |
| Restaurant afstand | 0,1 | Gemiddelde afstand in km | 2023 |
| Restaurants binnen 1 km | 41 | Gemiddeld aantal | 2023 |
| Restaurants binnen 3 km | 198 | Gemiddeld aantal | 2023 |
| Restaurants binnen 5 km | 262 | Gemiddeld aantal | 2023 |
| Hotel afstand | 0,7 | Gemiddelde afstand in km | 2023 |
| Hotels binnen 5 km | 21 | Gemiddeld aantal | 2023 |
| Hotels binnen 10 km | 26 | Gemiddeld aantal | 2023 |
| Hotels binnen 20 km | 169 | Gemiddeld aantal | 2023 |
| Kinderdagverblijf afstand | 0,1 | Gemiddelde afstand in km | 2023 |
| Kinderdagverblijven binnen 1 km | 5 | Gemiddeld aantal | 2023 |
| Kinderdagverblijven binnen 3 km | 36 | Gemiddeld aantal | 2023 |
| Kinderdagverblijven binnen 5 km | 86 | Gemiddeld aantal | 2023 |
| Buitenschoolseopvang afstand | 0,1 | Gemiddelde afstand in km | 2023 |
| Buitenschoolseopvang binnen 1 km | 4,0 | Gemiddeld aantal | 2023 |
| Buitenschoolseopvang binnen 3 km | 29 | Gemiddeld aantal | 2023 |
| Buitenschoolseopvang binnen 5 km | 86 | Gemiddeld aantal | 2023 |
| Basisonderwijs afstand | 0,3 | Gemiddelde afstand in km | 2023 |
| Basisonderwijs binnen 1 km | 3,0 | Gemiddeld aantal | 2023 |
| Basisonderwijs binnen 3 km | 14 | Gemiddeld aantal | 2023 |
| Basisonderwijs binnen 5 km | 47 | Gemiddeld aantal | 2023 |
| Voortgezet onderwijs afstand | 1,3 | Gemiddelde afstand in km | 2023 |
| Voortgezet onderwijs binnen 3 km | 9 | Gemiddeld aantal | 2023 |
| Voortgezet onderwijs binnen 5 km | 19 | Gemiddeld aantal | 2023 |
| Voortgezet onderwijs binnen 10 km | 28 | Gemiddeld aantal | 2023 |
| VMBO afstand | 1,5 | Gemiddelde afstand in km | 2023 |
| VMBO binnen 3 km | 7 | Gemiddeld aantal | 2023 |
| VMBO binnen 5 km | 14 | Gemiddeld aantal | 2023 |
| VMBO binnen 10 km | 22 | Gemiddeld aantal | 2023 |
| HAVO VWO afstand | 1,3 | Gemiddelde afstand in km | 2023 |
| HAVO VWO binnen 3 km | 6 | Gemiddeld aantal | 2023 |
| HAVO VWO binnen 5 km | 12 | Gemiddeld aantal | 2023 |
| HAVO VWO binnen 10 km | 15 | Gemiddeld aantal | 2023 |
| Oprit hoofdverkeersweg afstand | 1,3 | Gemiddelde afstand in km | 2023 |
| Treinstation afstand | 0,8 | Gemiddelde afstand in km | 2023 |
| Belangrijk overstapstation afstand | 2,3 | Gemiddelde afstand in km | 2023 |
| Bibliotheek afstand | 1,1 | Gemiddelde afstand in km | 2023 |
| Zwembad afstand | 1,4 | Gemiddelde afstand in km | 2023 |
| Kunstijsbaan afstand | 2,6 | Gemiddelde afstand in km | 2023 |
| Podiumkunsten afstand | 1,1 | Gemiddelde afstand in km | 2023 |
| Podiumkunsten binnen 5 km | 4,0 | Gemiddeld aantal | 2023 |
| Podiumkunsten binnen 10 km | 5 | Gemiddeld aantal | 2023 |
| Podiumkunsten binnen 20 km | 31 | Gemiddeld aantal | 2023 |
| Poppodium afstand | 1,8 | Gemiddelde afstand in km | 2023 |
| Bioscoop afstand | 1,1 | Gemiddelde afstand in km | 2023 |
| Bioscopen binnen 5 km | 4,0 | Gemiddeld aantal | 2023 |
| Bioscopen binnen 10 km | 5 | Gemiddeld aantal | 2023 |
| Bioscopen binnen 20 km | 15 | Gemiddeld aantal | 2023 |
| Sauna afstand | 1,6 | Gemiddelde afstand in km | 2023 |
| Zonnebank afstand | 0,9 | Gemiddelde afstand in km | 2023 |
| Museum afstand | 0,9 | Gemiddelde afstand in km | 2023 |
| Musea binnen 5 km | 12 | Gemiddeld aantal | 2023 |
| Musea binnen 10 km | 13 | Gemiddeld aantal | 2023 |
| Musea binnen 20 km | 50 | Gemiddeld aantal | 2023 |
| Attractie afstand | 3,3 | Gemiddelde afstand in km | 2023 |
| Attracties binnen 10 km | 2,0 | Gemiddeld aantal | 2023 |
| Attracties binnen 20 km | 21 | Gemiddeld aantal | 2023 |
| Attracties binnen 50 km | 68 | Gemiddeld aantal | 2023 |
| Brandweerkazerne afstand | 1,0 | Gemiddelde afstand in km | 2023 |
| Omgeving | Waarde | Eenheid | Jaar |
|---|---|---|---|
| Postcode | 2313BC | Naam | 2026 |
| Soort regio | Postcode6 | Categorisch type | 2026 |
| Adressen met postcode | 16 | Aantal | 2026 |
| Adressen met woonfunctie | 16 | Aantal | 2026 |
| Adressen met bijeenkomstfunctie | 0 | Aantal | 2026 |
| Adressen met celfunctie | 0 | Aantal | 2026 |
| Adressen met gezondheidszorgfunctie | 0 | Aantal | 2026 |
| Adressen met industriefunctie | 0 | Aantal | 2026 |
| Adressen met kantoorfunctie | 0 | Aantal | 2026 |
| Adressen met logiesfunctie | 0 | Aantal | 2026 |
| Adressen met onderwijsfunctie | 0 | Aantal | 2026 |
| Adressen met sportfunctie | 0 | Aantal | 2026 |
| Adressen met winkelfunctie | 0 | Aantal | 2026 |
| Adressen met overige gebruiksfunctie | 0 | Aantal | 2026 |
| Verblijfsobjecten | 16 | Aantal | 2026 |
| Ligplaatsen | 0 | Aantal | 2026 |
| Standplaatsen | 0 | Aantal | 2026 |
| Panden met adres | 8 | Aantal | 2026 |
| Adressen met pand | 16 | Aantal | 2026 |
| Percelen met adres | 1 | Aantal | 2026 |
| Adressen met perceel | 16 | Aantal | 2026 |
| Adressen binnen bebouwde kom | 16 | Aantal | 2026 |
| Adressen buiten bebouwde kom | 0 | Aantal | 2026 |
| Woningen binnen bebouwde kom | 16 | Aantal | 2026 |
| Woningen buiten bebouwde kom | 0 | Aantal | 2026 |
| Panden met adres voor 1700 | 0 | Aantal | 2026 |
| Panden met adres 1700 tot 1900 | 0 | Aantal | 2026 |
| Panden met adres 1900 tot 1925 | 8 | Aantal | 2026 |
| Panden met adres 1925 tot 1950 | 0 | Aantal | 2026 |
| Panden met adres 1950 tot 1970 | 0 | Aantal | 2026 |
| Panden met adres 1970 tot 1980 | 0 | Aantal | 2026 |
| Panden met adres 1980 tot 1990 | 0 | Aantal | 2026 |
| Panden met adres 1990 tot 2000 | 0 | Aantal | 2026 |
| Panden met adres 2000 tot 2010 | 0 | Aantal | 2026 |
| Panden met adres 2010 tot 2020 | 0 | Aantal | 2026 |
| Panden met adres 2020 en later | 0 | Aantal | 2026 |
| Adressen met pand voor 1700 | 0 | Aantal | 2026 |
| Adressen met pand 1700 tot 1900 | 0 | Aantal | 2026 |
| Adressen met pand 1900 tot 1925 | 16 | Aantal | 2026 |
| Adressen met pand 1925 tot 1950 | 0 | Aantal | 2026 |
| Adressen met pand 1950 tot 1970 | 0 | Aantal | 2026 |
| Adressen met pand 1970 tot 1980 | 0 | Aantal | 2026 |
| Adressen met pand 1980 tot 1990 | 0 | Aantal | 2026 |
| Adressen met pand 1990 tot 2000 | 0 | Aantal | 2026 |
| Adressen met pand 2000 tot 2010 | 0 | Aantal | 2026 |
| Adressen met pand 2010 tot 2020 | 0 | Aantal | 2026 |
| Adressen met pand 2020 en later | 0 | Aantal | 2026 |
| Huisnummer start | 1 | Adres | 2026 |
| Huisnummer eind | 15 | Adres | 2026 |
| Soort huisnummers reeks | Oneven | Adres | 2026 |
| Aantal openbare ruimtes | 1 | Aantal | 2026 |
| Centrum | (93591.60195189934, 462984.4704366176) | Adres | 2024 |
| Postcode4 | 2313 | Naam | 2026 |
| Postcode5 | 2313B | Naam | 2026 |
| Gemeentenaam | Leiden | Naam | 2026 |
| Provincienaam | Zuid-Holland | Naam | 2026 |
| Gemeentecode | GM0546 | Code | 2026 |
| Provinciecode | PV28 | Code | 2026 |
| Verkeersongevallen | Waarde | Eenheid | Jaar |
|---|---|---|---|
| Verkeersongevallen totaal | 0 | Aantal | 2024 |
| Verkeersongevallen uitsluitend materiële schade | 0 | Aantal | 2024 |
| Verkeersongevallen letselschade | 0 | Aantal | 2024 |
| Verkeersongevallen dodelijk | 0 | Aantal | 2024 |
| Woningen | Waarde | Eenheid | Jaar |
|---|---|---|---|
| Woningvoorraad | 15 | Aantal | 2024 |
| Gemiddelde woningwaarde | €251.000 | Gemiddeld in Euro | 2023 |
| Woningwaarde klasse | €250.000 tot €300.000 | Categorisch type | 2023 |
| Eengezinswoningen | 0 | Aantal | 2024 |
| Meergezinswoningen | 15 | Aantal | 2024 |
| Koopwoningen | geen data | Aantal | geen data |
| Huurwoningen | geen data | Aantal | geen data |
| Huurwoningen woningcorporaties | geen data | Aantal | geen data |
| Huurwoningen overige verhuurders | geen data | Aantal | geen data |
| Eigendom onbekend | 15 | Aantal | 2024 |
| Bewoond | geen data | Aantal | geen data |
| Onbewoond | geen data | Aantal | geen data |
| % Koopwoningen | geen data | Percentage | geen data |
| % Huurwoningen | geen data | Percentage | geen data |
| % Huurwoningen woningcorporaties | geen data | Percentage | geen data |
| % Huurwoningen overige verhuurders | geen data | Percentage | geen data |
| % Eigendom onbekend | 100% | Percentage | 2026 |
| % Eengezinswoningen | 0% | Percentage | 2024 |
| % Meergezinswoningen | 100% | Percentage | 2024 |
| % Bewoond | geen data | Percentage | geen data |
| % Onbewoond | geen data | Percentage | geen data |
| Appartementen | 16 | Aantal | 2026 |
| Tussenwoningen | 0 | Aantal | 2026 |
| Hoekwoningen | 0 | Aantal | 2026 |
| Twee-onder-één-kap woningen | 0 | Aantal | 2026 |
| Vrijstaande woningen | 0 | Aantal | 2026 |
| Woningtype onbekend | 0 | Aantal | 2026 |
| % Appartementen | 100% | Percentage | 2026 |
| % Tussenwoningen | 0,0% | Percentage | 2026 |
| % Hoekwoningen | 0,0% | Percentage | 2026 |
| % Twee-onder-één-kap woningen | 0,0% | Percentage | 2026 |
| % Vrijstaande woningen | 0,0% | Percentage | 2026 |
| % Woningtype onbekend | 0,0% | Percentage | 2026 |
| Woningen voor 1945 | 16 | Aantal | 2026 |
| Woningen 1945 tot 1965 | 0 | Aantal | 2026 |
| Woningen 1965 tot 1975 | 0 | Aantal | 2026 |
| Woningen 1975 tot 1985 | 0 | Aantal | 2026 |
| Woningen 1985 tot 1995 | 0 | Aantal | 2026 |
| Woningen 1995 tot 2005 | 0 | Aantal | 2026 |
| Woningen 2005 tot 2015 | 0 | Aantal | 2026 |
| Woningen 2015 tot 2025 | 0 | Aantal | 2026 |
| Woningen 2025 en later | 0 | Aantal | 2026 |
| Woningen bouwjaar onbekend | 0 | Aantal | 2026 |
| % Woningen voor 1945 | 100% | Percentage | 2026 |
| % Woningen 1945 tot 1965 | 0,0% | Percentage | 2026 |
| % Woningen 1965 tot 1975 | 0,0% | Percentage | 2026 |
| % Woningen 1975 tot 1985 | 0,0% | Percentage | 2026 |
| % Woningen 1985 tot 1995 | 0,0% | Percentage | 2026 |
| % Woningen 1995 tot 2005 | 0,0% | Percentage | 2026 |
| % Woningen 2005 tot 2015 | 0,0% | Percentage | 2026 |
| % Woningen 2015 tot 2025 | 0,0% | Percentage | 2026 |
| % Woningen 2025 en later | 0,0% | Percentage | 2026 |
| % Woningen bouwjaar onbekend | 0,0% | Percentage | 2026 |
AlleCijfers is gratis te gebruiken, maar niet kosteloos. Vind je de informatie waardevol? Help ons door een donatie te doen — hoe klein ook, we stellen het enorm op prijs.
Ontvang een e-mail als de informatie is bijgewerkt. Maximaal 2 per jaar en niets anders dan dat.
Inschrijven
Inspireer anderen en deel deze pagina:
Deel deze pagina: