Statistieken postcode 2316NE

Statistieken postcode 2316NE

Verken alle cijfers over meer dan 250 onderwerpen voor postcodegebied 2316 NE. Bekijk de data over de bevolking, woningen, voertuigen, de leefomgeving en meer. Met duidelijke tabellen, grafieken en uitleg bij de onderwerpen.
Verken alle cijfers over meer dan 250 onderwerpen voor postcodegebied 2316 NE. Bekijk de data over de bevolking, woningen, voertuigen, de leefomgeving en meer. Met duidelijke tabellen, grafieken en uitleg bij de onderwerpen.
Kaart van postcodegebied 2316NE.Bekijk kaart

2316 NE is de postcode van Dillenburgerstraat in Leiden.

De postcode 2316NE heeft de huisnummerreeks 1 - A t/m 19.

Kerncijfers postcode 2316NE
Adressen, panden, percelen, woningen, huishoudens en inwoners.

Heel even geduld alsjeblieft:
Je apparaat laadt de grafieken van Allecijfers.nl

Overzicht van de belangrijkste cijfers van het Kadaster en het CBS voor het postcodegebied 2316 NE.


Onderstaande tabel toont de belangrijkste cijfers van het CBS en het Kadaster voor het postcodegebied 2316 NE. Bekijk de pagina's voor de andere postcodes binnen het gebied van de numerieke postcode 2316 via de tabel op de pagina van postcodegebied 2316.

Postcode 2316NEAantalBronJaar data
Adressen met postcode13Kadaster2026
Adressen met woonfunctie11Kadaster2026
Panden met adres11Kadaster2026
Percelen met adres3Kadaster2026
Woningvoorraad10CBS2024
Huishoudens15CBS2024
Inwoners30CBS2024

Op deze pagina vind je een kaart van het postcodegebied 2316 NE, de data over meer dan 250 onderwerpen voor het postcodegebied 2316 NE en een overzicht van alle adressen met postcode 2316NE.

Overzicht postcode 2316 Definities
Over het postcodegebied 2316 NE

Postcode 2316NE ligt binnen het numerieke postcodegebied 2316 in de gemeente Leiden. Er zijn dertien adressen en tien woningen in het postcodegebied 2316 NE. De woningen hebben een gemiddelde WOZ waarde van €341.000. Er wonen dertig inwoners in het postcodegebied 2316 NE, met een aanzienlijk deel (33%) in de leeftijdsgroep van nul tot vijftien jaar. Postcode 2316NE telt vijftien huishoudens van gemiddeld 2,1 personen.

De gemiddelde afstand over de weg tot de belangrijkste voorzieningen in het postcodegebied 2316 NE is relatief kort:

  • Supermarkt: op slechts 0,4 kilometer afstand.
  • Apotheek: relatief dichtbij, op een afstand van 0,3 kilometer.
  • Huisartsenpraktijk: goed bereikbaar, op 0,3 kilometer.
  • Basisschool: bereikbaar binnen 0,7 kilometer.
  • Middelbare school: relatief dichtbij, op een afstand van 1,0 kilometer.
  • Bibliotheek: goed bereikbaar, op 0,6 kilometer.
  • Café: op slechts 0,7 kilometer afstand.
  • Restaurant: relatief dichtbij, op een afstand van 0,5 kilometer.
  • Treinstation: goed bereikbaar, op 2,4 kilometer.
  • Zwembad: op slechts 1,1 kilometer afstand.

Advertentie:

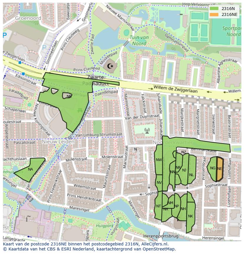
Postcode 2316NE op de kaart
Kaart van de omgeving van het postcodegebied 2316 NE.
Afbeelding van het postcodegebied 2316 NE op de kaart.

Bovenstaande afbeelding toont de kaart van het postcodegebied 2316NE. Klik op de kaart om de geografie van de numerieke postcode 2316 te tonen. Tip: bekijk ook de interactieve postcodekaart.

De postcode 2316 NE hoort bij de Dillenburgerstraat te Leiden binnen de gemeente Leiden. Deze postcode heeft de huisnummerreeks 1 - A t/m 19.

Download de postcodedata in handige Excel documenten voor de gemeente Leiden of voor heel Nederland.

Vorige postcode Volgende postcode
Adressen met postcode 2316NE
Tabel met alle 13 adressen in het postcodegebied 2316 NE.
StraatnaamHuisnummerPostcodeWoonplaatsGebruiksdoelOppervlakteWoningtypeBouwjaarEnergielabelBebouwde komSoort openbare ruimte
Dillenburgerstraat1 - A2316NELeidenWoonfunctie109 m2Appartement1981B (voorlopig)jaWeg
Dillenburgerstraat1 - B2316NELeidenIndustriefunctie Winkelfunctie24 m2n.v.t.1981geen datajaWeg
Dillenburgerstraat1 - C2316NELeidenOverige_gebruiksfunctie58 m2n.v.t.1981geen datajaWeg
Dillenburgerstraat12316NELeidenWoonfunctie79 m2Tussenwoning1910BjaWeg
Dillenburgerstraat32316NELeidenWoonfunctie115 m2Tussenwoning1981CjaWeg
Dillenburgerstraat52316NELeidenWoonfunctie115 m2Tussenwoning1981AjaWeg
Dillenburgerstraat72316NELeidenWoonfunctie115 m2Tussenwoning1981BjaWeg
Dillenburgerstraat92316NELeidenWoonfunctie115 m2Tussenwoning1981AjaWeg
Dillenburgerstraat112316NELeidenWoonfunctie115 m2Hoekwoning1981CjaWeg
Dillenburgerstraat132316NELeidenWoonfunctie115 m2Hoekwoning1981AjaWeg
Dillenburgerstraat152316NELeidenWoonfunctie115 m2Tussenwoning1981AjaWeg
Dillenburgerstraat172316NELeidenWoonfunctie115 m2Tussenwoning1981AjaWeg
Dillenburgerstraat192316NELeidenWoonfunctie115 m2Hoekwoning1981CjaWeg

Bovenstaande tabel toont de 13 adressen in het postcodegebied 2316 NE. Dit zijn alle adressen met postcode 2316NE in de BAG data van het Kadaster van 1 januari 2026.

De BAG (Basisregistratie Adressen en Gebouwen van het Kadaster) bevat de officiële gegevens van alle adressen en gebouwen in Nederland. In de BAG zijn, naast alle adressen, alle panden, verblijfsobjecten, standplaatsen en ligplaatsen geregistreerd. Per adres wordt ook het laatst bekende energielabel zoals geregistreerd bij de RVO weergegeven. Voorlopige energielabels zijn indicatief en niet rechtsgeldig; definitieve energielabels hebben een geldigheid van 10 jaar en kunnen inmiddels zijn verlopen.

Adressen Leiden
Tabelgebruik:

  • Zoek in de tabel met het zoekveld boven de tabel. De rijen van de tabel worden hiermee gefilterd zodat alleen rijen waar de zoekterm in voorkomt getoond worden.
  • Sorteer de inhoud van de tabel door op de kolomtitels te klikken.
  • Blader door de tabel met de knoppen rechtsonder de tabel.
  • Op kleine schermen: Verschuif de tabel horizontaal om alle kolommen te zien (de 1e kolom blijft vast in beeld staan).
Kenmerken van de 10 woningen met postcode 2316NE
Er zijn 10 woningen in het postcodegebied 2316NE.
Informatie over de woningen in dit postcodegebied op basis van open data van het Centraal Bureau voor de Statistiek en het Kadaster. Afbeelding met 4 taart diagrammen.

De vier bovenstaande taartdiagrammen tonen het percentage woningen naar verschillende woningkenmerken. Beschikbare kenmerken zijn eigendom, bewoning, type, soort woning en bouwperiode. Het jaar waar de data voor gelden staat in het midden van de grafiek. Klik op de afbeelding om deze groter weer te geven.

Bekijk onderstaande toelichting voor de definities van de woningkenmerken.

Toelichting
Woningwaarde per jaar
De gemiddelde WOZ-waarde in postcodegebied 2316 NE was €341.000 in 2023.

Heel even geduld alsjeblieft:
Je apparaat laadt de grafieken van Allecijfers.nl

Bovenstaande grafiek toont de gemiddelde WOZ woningwaarde per jaar in het postcodegebied 2316 NE.


Onderstaande tabel toont de gemiddelde WOZ woningwaarde per jaar op basis van de data van het CBS voor het postcodegebied 2316 NE:

JaarGemiddelde WOZ woningwaarde postcode 2316NE% verschil
2023€341.0008,3%
2022€315.00017%
2021€270.0007,6%
2020€251.00018%
2019€213.0007,6%
2018€198.0008,8%
2017€182.0004,0%
2016€175.000geen data

De gemiddelde WOZ woningwaarde in het postcodegebied 2316 NE is met €166.000 gegroeid van €175.000 in 2016 tot €341.000 in 2023 (dat is een stijging van 95%). Het gemiddelde verschil per jaar over de hele periode van 2016 tot en met 2023 was €23.714 (10%). De ontwikkeling van de data in de tijd volgt een monotoon stijgende trend: De cijfers stijgen ieder jaar.

Bekijk ook de ranglijst van de woningwaarden per buurt in de gemeente Leiden.

Toelichting
Soorten woningen
Tussenwoningen komen het meeste voor in het postcodegebied 2316 NE: er zijn 7 adressen met het woningtype tussenwoningen.
Heel even geduld alsjeblieft:
Je apparaat laadt de grafieken van Allecijfers.nl

Bovenstaand taartdiagram toont het aantal en percentage woningen naar type in het postcodegebied 2316 NE.

De gegevens over soorten woningen zijn gebaseerd op de Kadaster woningtypering en de gegevens over stand- en ligplaatsen van het Kadaster. Het soort woning is geografisch-algoritmisch bepaald voor panden waarin een woning is huisvest (panden met een woonfunctie als gebruiksdoel). De gegevens gelden voor de situatie op 1 januari 2026.

Bovenliggende gebieden
Tabel met de gebieden waarbinnen het postcodegebied 2316 NE zich bevindt.
Soort gebiedNaam gebied
WegDillenburgerstraat
WoonplaatsLeiden
BuurtNoorderkwartier
WijkLeiden-Noord
GemeenteLeiden
ProvincieZuid-Holland
LandNederland

Bovenstaande tabel toont de regionale gebieden waarbinnen het postcodegebied 2316 NE zich bevindt. Dit is op basis van de gebiedsindelingen van het CBS van 2025 en de topografische kaarten van het Kadaster van 2026.

Klik op de naam van een gebied om de pagina met statistieken voor dat gebied weer te geven.
Aantal inwoners per jaar
Postcodegebied 2316NE telt 30 inwoners in 2024.

Heel even geduld alsjeblieft:
Je apparaat laadt de grafieken van Allecijfers.nl

Bovenstaande grafiek toont het aantal inwoners per jaar op basis van de data van het CBS voor het postcodegebied 2316 NE.


Onderstaande tabel toont het aantal inwoners per jaar op basis van de data van het CBS voor het postcodegebied 2316 NE:

JaarAantal inwoners postcode 2316NE% verschil
20243020%
2023250,0%
2022250,0%
2021250,0%
2020250,0%
2019250,0%
2018250,0%
2017250,0%
2016250,0%
201525geen data

Het aantal inwoners in het postcodegebied 2316 NE is met 5 inwoners gegroeid van 25 inwoners in 2015 tot 30 inwoners in 2024 (dat is een stijging van 20%). Het gemiddelde verschil per jaar over de hele periode van 2015 tot en met 2024 was 1 inwoners (2,22%).

Het aantal inwoners is het aantal personen zoals op 1 januari in het bevolkingsregister vastgelegd. Bekijk ook de tabel met het aantal inwoners per buurt in de gemeente Leiden.

Beschrijving van de ontwikkeling van het aantal inwoners in het postcodegebied 2316 NE:

In 2015 waren er 25 inwoners in het postcodegebied 2316 NE. Het aantal inwoners blijft 25 tot en met 2023. In 2024 is het aantal gestegen tot 30 inwoners. De stijging ten opzichte van 2023 is 5 (20%). Het aantal van 30 inwoners is het hoogste aantal inwoners in de hele periode van 2015 tot en met 2024.

Advertentie:

Vrouwen en mannen in het postcodegebied 2316 NE
60% van de inwoners in het postcodegebied 2316 NE staat als vrouw geregistreerd.
Heel even geduld alsjeblieft:
Je apparaat laadt de grafieken van Allecijfers.nl

Bevolking: aantal en percentage inwoners op 1 januari 2024 naar geslacht (klik op de vlakken in de donutgrafiek om de aantallen te zien).

De donutgrafiek toont het geslacht van de bevolking, vrouw of man. Deze informatie komt uit het bevolkingsregister van de gemeenten.

Bevolking naar leeftijd in het postcodegebied 2316 NE
Postcode 2316NE telt 10 inwoners in de leeftijdsgroep 0-15 in 2024.
Heel even geduld alsjeblieft:
Je apparaat laadt de grafieken van Allecijfers.nl

Bevolking, leeftijdsgroepen: aantal inwoners op 1 januari 2024 per leeftijdscategorie.

Het aantal inwoners per leeftijdsgroep is afgerond op vijftallen en wordt alleen getoond bij minimaal vijf inwoners. De download voor de gemeente Leiden bevat veel meer leeftijdgegevens: Er is een document met het aantal inwoners in de gemeente per levensjaar en met een bevolkingspiramide met een uitsplitsing naar leeftijd en geslacht. Daarnaast bevat het document met postcodedata het aantal inwoners voor iedere 5 jarige leeftijdsgroep van ‘0 tot 5 jaar’ tot en met ‘90 jaar en ouder’ per viercijferige (numerieke) postcode voor alle jaren in de periode van 1998 tot en met 2025.

Inwoners naar land van herkomst per jaar
Gegevens over de herkomstgebieden van de inwoners in het postcodegebied 2316 NE.

Heel even geduld alsjeblieft:
Je apparaat laadt de grafieken van Allecijfers.nl

Autochtoon of migratieachtergrond in Nederland voor de periode van 2015 tot en met 2024: Bovenstaande grafiek toont de verdeling van de bevolking naar herkomst uit Nederland, herkomst uit Europa en herkomst van buiten Europa in het postcodegebied 2316 NE per jaar.


Onderstaande tabel toont het aantal inwoners maar herkomst per jaar op basis van de data van het CBS voor het postcodegebied 2316 NE:

JaarHerkomst NederlandHerkomst EuropaHerkomst buiten Europa
20242406
20231805
20222005
20212500
20202500
20192500
20182500
20172500
20162500
20152500

In 2024 was de herkomst van inwoners in het postcodegebied 2316 NE als volgt verdeeld: herkomst uit Nederland: 80%, herkomst uit Europese landen: 0,0% en herkomst uit landen buiten Europa: 20% En in 2015 was de verdeling van inwoners naar herkomstgebied als volgt: herkomst uit Nederland: 100%, herkomst uit Europa: 0,0% en herkomst van buiten Europa: 0,0%.

Toelichting Meer migratie
Gemiddelde huishoudensgrootte
Er wonen gemiddeld 2,1 personen per huishouden in het postcodegebied 2316 NE.
Heel even geduld alsjeblieft:
Je apparaat laadt de grafieken van Allecijfers.nl

Bovenstaande grafiek toont de gemiddelde grootte van huishoudens per gebied. Hierbij zijn de gebieden van laag naar hoog gesorteerd op het gemiddeld aantal personen in een huishouden. De gegevens gelden voor 2024.

De volgende gebieden worden in de grafiek weergegeven: 15 postcodegebieden (blauw), 19 postcode5gebieden (roze), 1 numerieke postcode (groen), 1 gemeente (geel), 1 provincie (bruin) en 1 land (oranje). Het postcodegebied 2316 NE wordt in het rood weergegeven.

Soorten huishoudens
In 2024 waren er 15 huishoudens in het postcodegebied 2316 NE. Er waren 10 eenpersoonshuishoudens en 5 meerpersoonshuishoudens (afgerond op vijftallen).
Heel even geduld alsjeblieft:
Je apparaat laadt de grafieken van Allecijfers.nl

Bovenstaand taartdiagram toont de verdeling naar soorten huishoudens voor het postcodegebied 2316 NE. De gegevens gelden voor 2024.

De cijfers gaan over de particuliere huishoudens op 1 januari 2024. Particuliere huishoudens bestaan uit één of meer inwoners die alleen of samen wonen en zelf in hun dagelijks onderhoud voorzien. In deze grafiek worden de huishoudens onderverdeeld in eenpersoonshuishoudens en meerpersoonshuishoudens. De cijfers over huishoudens zijn afgerond op vijftallen.

Inkomensdata

Het gemiddelde inkomen per huishouden in het postcodegebied 2316 NE is niet bekend. Het gemiddelde inkomen per huishouden in een postcodegebied is alleen bekend als er minstens 100 huishoudens wonen en als geen enkel huishouden meer dan 30% van het totale inkomen in dat gebied verdient.

Toelichting
Download alle postcodedata
Download de gegevens over meer dan 250 onderwerpen voor alle postcodes in de gemeente Leiden als een Excel dataset!
Afbeelding van Excel documenten uit de download voor de gemeente Leiden.

Download alle data in handige Excel documenten van OpenInfo.nl. Niet goed, geld terug!

Download een schat aan informatie voor de gemeente Leiden. Met een Excel document met handige werkbladen met de data over de postcodes in de gemeente Leiden. Daarnaast bevat de download andere documenten met de data over de gemeente, wijken en buurten, alle adressen, verkiezingsuitslagen, gezondheidscijfers, misdaadcijfers en nog veel meer!

Download!
Verkeersongevallen naar afloop

Er zijn voor het postcodegebied 2316 NE geen verkeersongevallen bekend. De dataset met verkeersongevallen is gekoppeld aan het digitale wegennet. Op basis van de locatie van de ongevallen is bepaald welke ongevallen binnen het postcodegebied 2316 NE vallen.

Cijfers over verkeersongevallen

De data over ongevallen komen uit het Bestand geRegistreerde Ongevallen Nederland (BRON) van Rijkswaterstaat. Deze dataset bevat de verkeersongevallenmeldingen van de politie gekoppeld aan het digitale wegennet. De ongevallen zijn onderverdeeld naar de afloop van het ongeval: uitsluitend materiële schade, ongevallen met slachtoffers met letsel en ongevallen met dodelijke afloop. Letselschade is schade die iemand door lichamelijke verwondingen of psychische problemen heeft opgelopen. Onder ongevallen met slachtoffers met letsel vallen alle situaties waarbij iemand is opgenomen in het ziekenhuis, eerste hulp heeft gekregen of op een andere manier gewond is geraakt.

Gas- en elektriciteitsverbruik van woningen
In 2023 was het gemiddelde jaarlijkse aardgasverbruik per woning in het postcodegebied 2316 NE 850 m³ en de gemiddelde elektriciteitslevering per woning was 2.350 kWh.
Heel even geduld alsjeblieft:
Je apparaat laadt de grafieken van Allecijfers.nl

Bovenstaande grafiek toont het gemiddelde elektriciteitsverbruik en het gemiddelde aardgasverbruik per woning per jaar. De gegevens gelden voor 2023. Het gemiddelde energieverbruik in het postcodegebied 2316 NE wordt vergeleken met dat in het grotere postcodegebied 2316, de gemeente Leiden, de provincie Zuid-Holland en Nederland.

De grafiek toont het gemiddeld elektriciteitsverbruik in kWh en het gemiddeld verbruik van aardgas in m³. Het gemiddelde geldt voor het verbruik van één jaar van alle particuliere woningen in het postcodegebied 2316 NE en de andere gebieden.

Toelichting
Energielabels
De meest voorkomende energielabels in het postcodegebied 2316 NE zijn A (5 adressen) en B (3 adressen).
Heel even geduld alsjeblieft:
Je apparaat laadt de grafieken van Allecijfers.nl

Bovenstaande grafiek toont het aantal adressen per type energielabel in het postcodegebied 2316 NE. Hiervoor zijn de data op adresniveau uit het EP-Online systeem van de RVO gebruikt. EP-Online is de officiële landelijke database waarin energielabels en energieprestatie-indicatoren van gebouwen zijn opgenomen. De gebruikte data gelden voor de situatie per 1 januari 2026.

Een energielabel geeft aan hoe energiezuinig een gebouw is. Hierbij is G het slechtste energielabel en A+++++ het beste. Energielabel A komt het meeste voor in het postcodegebied 2316 NE: 5 adressen hebben energielabel A. De download met uitgebreide informatie voor de gemeente Leiden bevat de data over energielabels, zowel per postcode, woonplaats, wijk en buurt als per adres.

Gemiddelde afstanden kinderopvang en onderwijs
De gemiddelde afstand over de weg van een huisadres tot een basisschool in postcodegebied 2316NE is 0,7 kilometer.
Heel even geduld alsjeblieft:
Je apparaat laadt de grafieken van Allecijfers.nl

Bovenstaand staafdiagram toont de gemiddelde afstand in kilometers over de weg tot kinderdagverblijven, buitenschoolseopvang, basisonderwijs, voortgezet onderwijs totaal, VMBO scholen en HAVO VWO scholen. Gebruik het filter boven de grafiek om de gegevens voor verschillende soorten locaties te tonen. De gebruikte cijfers komen van uit de nabijheidsstatistieken van het CBS en gelden voor de situatie in 2023.

Deze grafiek toont een regionale vergelijking van de gemiddelde reisafstanden voor inwoners van hun woonadres naar de dichtstbijzijnde locaties voor kinderopvang, basisonderwijs en voortgezet onderwijs. De afstanden zijn berekend als gemiddelde afstand van alle inwoners in een gebied tot de dichtstbijzijnde voorziening, berekend over de autoweg en rekening houdend met de rijrichting. In de grafiek zie je de gegevens voor het postcodegebied 2316 NE in vergelijking tot andere gebieden. De volgende gebieden worden in de grafiek weergegeven: Nederland (oranje), provincie Zuid-Holland (bruin), gemeente Leiden (geel), postcode 2316 (groen), 19 postcode5gebieden (roze) en 15 postcodegebieden (blauw). Postcodegebied 2316 NE wordt in het rood weergegeven.

Adressen: bouwperiode van panden
Er zijn 10 panden uit de bouwperiode 1980-1990 in het postcodegebied 2316 NE.
Heel even geduld alsjeblieft:
Je apparaat laadt de grafieken van Allecijfers.nl

Overzicht van het aantal panden naar bouwjaar voor het postcodegebied 2316 NE. Op basis van de gegevens uit de BAG van het Kadaster van 1 januari 2026. Merk op: deze gegevens betreffen het aantal panden met een adres. Het aantal adressen met panden in een gebied is bijna altijd hoger dan het aantal panden. Dit is omdat er meerdere adressen in hetzelfde pand gehuisvest kunnen zijn, zoals bij een appartementengebouw. Anderzijds kunnen er ook panden zonder adres voorkomen (zoals bijvoorbeeld een schuur), panden zonder adres zijn in deze telling niet meegenomen.

De BAG bevat de officiële gegevens van alle adressen en gebouwen in Nederland. In de BAG zijn, naast alle adressen, alle panden, verblijfsobjecten, standplaatsen en ligplaatsen geregistreerd.

Advertentie:

Gegevens over meer dan 250 onderwerpen!

Onderstaande tabel toont de meest recent beschikbare gegevens voor het postcodegebied 2316 NE voor meer dan 250 onderwerpen! Selecteer een categorie in de linkerkolom om de onderwerpen in die categorie weer te geven.

BevolkingWaardeEenheidJaar
Inwoners30Aantal2024
Mannen10Aantal2024
Vrouwen15Aantal2024
0 tot 15 jaar10Aantal2024
15 tot 25 jaar5Aantal2024
25 tot 45 jaar5Aantal2024
45 tot 65 jaar0Aantal2024
65 jaar of ouder0Aantal2024
% Mannen33%Percentage2024
% Vrouwen50%Percentage2024
% 0 tot 15 jaar33%Percentage2024
% 15 tot 25 jaar17%Percentage2024
% 25 tot 45 jaar17%Percentage2024
% 45 tot 65 jaar0,0%Percentage2024
% 65 jaar of ouder0,0%Percentage2024
Geboortengeen dataAantalgeen data
Herkomst totaal30Aantal2024
De gegevens in de categorie bevolking betreffende de data over het aantal inwoners naar de positie van de inwoners in huishoudens in het postcodegebied 2316 NE.
EnergieverbruikWaardeEenheidJaar
Gemiddelde elektriciteitslevering per woning2.350Gemiddeld in kWh2023
Gemiddeld aardgasverbruik per woning850Gemiddeld per m³2023
Adressen zonder energielabel2Aantal2026
Adressen met voorlopig energielabel1Aantal2026
Adressen met definitief energielabel10Aantal2026
Energielabels A+++++0Aantal2026
Energielabels A++++0Aantal2026
Energielabels A+++0Aantal2026
Energielabels A++0Aantal2026
Energielabels A+0Aantal2026
Energielabels A5Aantal2026
Energielabels B3Aantal2026
Energielabels C3Aantal2026
Energielabels D0Aantal2026
Energielabels E0Aantal2026
Energielabels F0Aantal2026
Energielabels G0Aantal2026
De onderwerpen in de categorie energie geven aan wat het gemiddelde energieverbruik per jaar in het postcodegebied 2316 NE is en hoeveel panden in het postcodegebied 2316 NE welk type energielabel hebben. Een energielabel geeft aan hoe energiezuinig een gebouw is. Hierbij is G het slechtste energielabel en A++++ het beste. De data over energieverbruik komt van het CBS, de data over energielabels komt van de RVO.
HuishoudensWaardeEenheidJaar
Huishoudens15Aantal2024
Eenpersoonshuishoudens10Aantal2024
Meerpersoonshuishoudens5Aantal2024
Meerpersoonshuishoudens zonder kinderen5Aantal2021
Meerpersoonshuishoudens met kinderen0Aantal2021
Huishoudens eenouder kinderengeen dataAantalgeen data
Huishoudens twee ouders kinderengeen dataAantalgeen data
Gemiddelde huishoudensgrootte2,1Gemiddeld aantal2024
Het aantal huishoudens betreft het aantal particuliere huishoudens op 1 januari van een jaar. Particuliere huishoudens bestaan uit één of meer inwoners die alleen of samen in een woonruimte zijn gehuisvest en zelf in hun dagelijks onderhoud voorzien. Naast eenpersoonshuishoudens bestaan er meerpersoonshuishoudens (niet-gehuwde paren, niet-gehuwde paren met kinderen, echtparen, echtparen met kinderen, eenouderhuishoudens en overige huishoudens). De institutionele huishoudens worden hiertoe niet gerekend. De cijfers over huishoudens zijn afgerond op vijftallen. Percentages zijn afgerond op tientallen procenten. Bij minder dan vijf huishoudens worden er geen gegevens weergegeven.
InkomenWaardeEenheidJaar
Mediaan huishoudinkomen00-40 laag tot onder middenCategorisch type2019
Inwoners met WW bijstand AO uitkering5Aantal2024
De inkomensdata betreffen geven het besteedbaar inkomen van particuliere huishoudens weer. Dit is het bruto-inkomen verminderd met betaalde inkomensoverdrachten (bijvoorbeeld alimentatie), premies inkomensverzekeringen, premies ziektekostenverzekeringen en belastingen op inkomen en vermogen. De cijfers over het inkomen in een gebied worden weergegeven wanneer in het gebied 100 huishoudens of meer woonachtig zijn. Bovendien mag er geen enkel huishouden zijn die 30 procent of meer van de totale inkomenssom van het gebied heeft.
MigratieWaardeEenheidJaar
Herkomst Nederland24Aantal2024
Herkomst buiten Nederland6Aantal2024
Herkomst Europa0Aantal2024
Herkomst buiten Europa6Aantal2024
% Herkomst Nederland80%Percentage2024
% Herkomst buiten Nederland20%Percentage2024
% Herkomst Europa0,0%Percentage2024
% Herkomst buiten Europa20%Percentage2024
Geboren in Nederland met herkomst Nederland24Aantal2024
Geboren in Nederland met herkomst Europa0Aantal2024
Geboren in Nederland met herkomst buiten Europa0Aantal2024
Geboren in Nederland met herkomst buiten Nederland0Aantal2024
Geboren in Nederland24Aantal2024
Geboren buiten Nederland met herkomst Europa0Aantal2024
Geboren buiten Nederland met herkomst buiten Europa6Aantal2024
Geboren buiten Nederland6Aantal2024
Geboren / herkomst onnauwkeurigheid0Aantal2024
% Geboren in Nederland met herkomst Nederland80%Percentage2024
% Geboren in Nederland met herkomst Europa0,0%Percentage2024
% Geboren in Nederland met herkomst buiten Nederland0,0%Percentage2024
% Geboren in Nederland met herkomst buiten Europa0,0%Percentage2024
% Geboren in Nederland80%Percentage2024
% Geboren buiten Nederland met herkomst Europa0,0%Percentage2024
% Geboren buiten Nederland met herkomst buiten Europa20%Percentage2024
% Geboren buiten Nederland20%Percentage2024
Autochtoon25Aantal2021
Westers0Aantal2021
Niet-westers0Aantal2021
% Autochtoon100%Percentage2021
% Westers0,0%Percentage2021
% Niet-westers0,0%Percentage2021
De onderwerpen binnen de categorie migratie gaan over de herkomst van personen. Iemands herkomst geeft weer in welk land iemand geboren is of waar diens ouders geboren zijn. De herkomst van personen die in het buitenland zijn geboren wordt bepaald door hun eigen geboorteland. De herkomst van personen die in Nederland geboren zijn, wordt bepaald door het geboorteland van de ouders. Wanneer beide ouders in het buitenland zijn geboren, is het geboorteland van de moeder leidend in het bepalen van de herkomst. De geboortegegevens van de moeder zijn vaker bekend dan die van de vader. Wanneer de moeder in Nederland is geboren of het geboorteland van de moeder onbekend is, dan wordt het geboorteland van de vader gebruikt.
Nabijheid voorzieningenWaardeEenheidJaar
Huisartsenpraktijk afstand0,3Gemiddelde afstand in km2023
Huisartsenpraktijken binnen 1 km3,0Gemiddeld aantal2023
Huisartsenpraktijken binnen 3 km23Gemiddeld aantal2023
Huisartsenpraktijken binnen 5 km37Gemiddeld aantal2023
Huisartsenpost afstand4,0Gemiddelde afstand in km2023
Apotheek afstand0,3Gemiddelde afstand in km2023
Ziekenhuis met poli afstand2,4Gemiddelde afstand in km2023
Ziekenhuizen met poli binnen 5 km3,0Gemiddeld aantal2023
Ziekenhuizen met poli binnen 10 km5Gemiddeld aantal2023
Ziekenhuizen met poli binnen 20 km15Gemiddeld aantal2023
Ziekenhuis zonder poli afstand2,4Gemiddelde afstand in km2023
Ziekenhuizen zonder poli binnen 5 km3,0Gemiddeld aantal2023
Ziekenhuizen zonder poli binnen 10 km3,0Gemiddeld aantal2023
Ziekenhuizen zonder poli binnen 20 km8Gemiddeld aantal2023
Supermarkt afstand0,4Gemiddelde afstand in km2023
Supermarkten binnen 1 km3,0Gemiddeld aantal2023
Supermarkten binnen 3 km24Gemiddeld aantal2023
Supermarkten binnen 5 km39Gemiddeld aantal2023
Overige dagelijkse levensmiddelen afstand0,4Gemiddelde afstand in km2023
Overige dagelijkse levensmiddelen binnen 1 km10Gemiddeld aantal2023
Overige dagelijkse levensmiddelen binnen 3 km121Gemiddeld aantal2023
Overige dagelijkse levensmiddelen binnen 5 km176Gemiddeld aantal2023
Warenhuis afstand1,7Gemiddelde afstand in km2023
Warenhuizen binnen 5 km6Gemiddeld aantal2023
Warenhuizen binnen 10 km11Gemiddeld aantal2023
Warenhuizen binnen 20 km33Gemiddeld aantal2023
Café afstand0,7Gemiddelde afstand in km2023
Cafés binnen 1 km4,0Gemiddeld aantal2023
Cafés binnen 3 km69Gemiddeld aantal2023
Cafés binnen 5 km73Gemiddeld aantal2023
Cafetaria afstand0,1Gemiddelde afstand in km2023
Cafetaria binnen 1 km11Gemiddeld aantal2023
Cafetaria binnen 3 km118Gemiddeld aantal2023
Cafetaria binnen 5 km148Gemiddeld aantal2023
Restaurant afstand0,5Gemiddelde afstand in km2023
Restaurants binnen 1 km14Gemiddeld aantal2023
Restaurants binnen 3 km194Gemiddeld aantal2023
Restaurants binnen 5 km243Gemiddeld aantal2023
Hotel afstand1,0Gemiddelde afstand in km2023
Hotels binnen 5 km21Gemiddeld aantal2023
Hotels binnen 10 km26Gemiddeld aantal2023
Hotels binnen 20 km154Gemiddeld aantal2023
Kinderdagverblijf afstand0,7Gemiddelde afstand in km2023
Kinderdagverblijven binnen 1 km2,0Gemiddeld aantal2023
Kinderdagverblijven binnen 3 km44Gemiddeld aantal2023
Kinderdagverblijven binnen 5 km78Gemiddeld aantal2023
Buitenschoolseopvang afstand0,6Gemiddelde afstand in km2023
Buitenschoolseopvang binnen 1 km4,0Gemiddeld aantal2023
Buitenschoolseopvang binnen 3 km45Gemiddeld aantal2023
Buitenschoolseopvang binnen 5 km77Gemiddeld aantal2023
Basisonderwijs afstand0,7Gemiddelde afstand in km2023
Basisonderwijs binnen 1 km1,0Gemiddeld aantal2023
Basisonderwijs binnen 3 km21Gemiddeld aantal2023
Basisonderwijs binnen 5 km40Gemiddeld aantal2023
Voortgezet onderwijs afstand1,0Gemiddelde afstand in km2023
Voortgezet onderwijs binnen 3 km11Gemiddeld aantal2023
Voortgezet onderwijs binnen 5 km19Gemiddeld aantal2023
Voortgezet onderwijs binnen 10 km27Gemiddeld aantal2023
VMBO afstand1,0Gemiddelde afstand in km2023
VMBO binnen 3 km7Gemiddeld aantal2023
VMBO binnen 5 km14Gemiddeld aantal2023
VMBO binnen 10 km22Gemiddeld aantal2023
HAVO VWO afstand1,0Gemiddelde afstand in km2023
HAVO VWO binnen 3 km9Gemiddeld aantal2023
HAVO VWO binnen 5 km12Gemiddeld aantal2023
HAVO VWO binnen 10 km14Gemiddeld aantal2023
Oprit hoofdverkeersweg afstand3,1Gemiddelde afstand in km2023
Treinstation afstand2,4Gemiddelde afstand in km2023
Belangrijk overstapstation afstand2,4Gemiddelde afstand in km2023
Bibliotheek afstand0,6Gemiddelde afstand in km2023
Zwembad afstand1,1Gemiddelde afstand in km2023
Kunstijsbaan afstand2,9Gemiddelde afstand in km2023
Podiumkunsten afstand1,7Gemiddelde afstand in km2023
Podiumkunsten binnen 5 km4,0Gemiddeld aantal2023
Podiumkunsten binnen 10 km5Gemiddeld aantal2023
Podiumkunsten binnen 20 km27Gemiddeld aantal2023
Poppodium afstand1,7Gemiddelde afstand in km2023
Bioscoop afstand1,7Gemiddelde afstand in km2023
Bioscopen binnen 5 km3,0Gemiddeld aantal2023
Bioscopen binnen 10 km5Gemiddeld aantal2023
Bioscopen binnen 20 km13Gemiddeld aantal2023
Sauna afstand2,4Gemiddelde afstand in km2023
Zonnebank afstand1,0Gemiddelde afstand in km2023
Museum afstand1,2Gemiddelde afstand in km2023
Musea binnen 5 km10Gemiddeld aantal2023
Musea binnen 10 km14Gemiddeld aantal2023
Musea binnen 20 km46Gemiddeld aantal2023
Attractie afstand1,7Gemiddelde afstand in km2023
Attracties binnen 10 km2,0Gemiddeld aantal2023
Attracties binnen 20 km16Gemiddeld aantal2023
Attracties binnen 50 km68Gemiddeld aantal2023
Brandweerkazerne afstand1,6Gemiddelde afstand in km2023
Het CBS levert gegevens over de gemiddelde nabijheid van voorzieningen voor het postcodegebied 2316 NE. Deze cijfers gaan over: (1) De bereikbaarheid van voorzieningen: dit is de mate waarin verschillende voorzieningen, zoals scholen, winkels, gezondheidszorginstellingen en openbaar vervoer, binnen een bepaalde afstand van het postcodegebied 2316 NE beschikbaar zijn. (2) Afstand: dit geeft aan hoe ver de bevolking van het postcodegebied 2316 NE gemiddeld moet reizen om toegang te krijgen tot bepaalde voorzieningen. Dit wordt uitgedrukt in kilometers of reistijd. (3) Nabijheidsindicatoren: dit zijn indicatoren die laten zien hoeveel procent van de bevolking in het postcodegebied 2316 NE binnen een bepaalde afstand van voorzieningen woont. Bijvoorbeeld, het percentage mensen dat binnen 1 kilometer van een supermarkt woont. (4) Daarnaast zijn er andere indicatoren zoals de mate van stedelijkheid, de bevolkingsdichtheid en de omgevingsadressendichtheid. Zie de definities van de verschillende dichtheidsmaten.
OmgevingWaardeEenheidJaar
Postcode2316NENaam2026
Soort regioPostcode6Categorisch type2026
Adressen met postcode13Aantal2026
Adressen met woonfunctie11Aantal2026
Adressen met bijeenkomstfunctie0Aantal2026
Adressen met celfunctie0Aantal2026
Adressen met gezondheidszorgfunctie0Aantal2026
Adressen met industriefunctie1Aantal2026
Adressen met kantoorfunctie0Aantal2026
Adressen met logiesfunctie0Aantal2026
Adressen met onderwijsfunctie0Aantal2026
Adressen met sportfunctie0Aantal2026
Adressen met winkelfunctie1Aantal2026
Adressen met overige gebruiksfunctie1Aantal2026
Verblijfsobjecten13Aantal2026
Ligplaatsen0Aantal2026
Standplaatsen0Aantal2026
Panden met adres11Aantal2026
Adressen met pand13Aantal2026
Percelen met adres3Aantal2026
Adressen met perceel13Aantal2026
Adressen binnen bebouwde kom13Aantal2026
Adressen buiten bebouwde kom0Aantal2026
Woningen binnen bebouwde kom11Aantal2026
Woningen buiten bebouwde kom0Aantal2026
Panden met adres voor 17000Aantal2026
Panden met adres 1700 tot 19000Aantal2026
Panden met adres 1900 tot 19251Aantal2026
Panden met adres 1925 tot 19500Aantal2026
Panden met adres 1950 tot 19700Aantal2026
Panden met adres 1970 tot 19800Aantal2026
Panden met adres 1980 tot 199010Aantal2026
Panden met adres 1990 tot 20000Aantal2026
Panden met adres 2000 tot 20100Aantal2026
Panden met adres 2010 tot 20200Aantal2026
Panden met adres 2020 en later0Aantal2026
Adressen met pand voor 17000Aantal2026
Adressen met pand 1700 tot 19000Aantal2026
Adressen met pand 1900 tot 19251Aantal2026
Adressen met pand 1925 tot 19500Aantal2026
Adressen met pand 1950 tot 19700Aantal2026
Adressen met pand 1970 tot 19800Aantal2026
Adressen met pand 1980 tot 199012Aantal2026
Adressen met pand 1990 tot 20000Aantal2026
Adressen met pand 2000 tot 20100Aantal2026
Adressen met pand 2010 tot 20200Aantal2026
Adressen met pand 2020 en later0Aantal2026
Huisnummer start1Adres2026
Huisnummer eind19Adres2026
Soort huisnummers reeksOnevenAdres2026
Aantal openbare ruimtes1Aantal2026
Centrum(94549.34204503406, 464516.36259170127)Adres2024
Postcode42316Naam2026
Postcode52316NNaam2026
GemeentenaamLeidenNaam2026
ProvincienaamZuid-HollandNaam2026
GemeentecodeGM0546Code2026
ProvinciecodePV28Code2026
Bovenstaande tabel toont de onderwerpen in de categorie omgeving. Dit zijn de onderwerpen die betrekking hebben op de gebiedsaspecten van het postcodegebied 2316 NE. De gebiedsafbakening van postcodes kan in de tijd wijzigen als gevolg van nieuwbouw, sloop en wijzigingen van gebouwen en openbare ruimtes binnen het gebied van de postcode 2316NE. Een postcodegebied kan bestaan uit enkel even huisnummers, uit alleen oneven huisnummers of uit zowel even als oneven huisnummers. Dit wordt aangegeven met de ‘soort huisnummers reeks’. En een postcodegebied kan in één of meerdere openbare ruimtes voorkomen. Een openbare ruimte is een door de gemeente aangewezen gebied dat is ingericht en wordt onderhouden voor publiek gebruik. Dit kan bijvoorbeeld een straat, weg, plein, park, erf, stoep of trottoir zijn. Het kan ook gebieden betreffen die tussen gebouwen liggen, zoals binnenplaatsen. Het aantal openbare ruimtes geeft aan of een postcode in slechts één of in meerdere openbare ruimtes voorkomt. Met postcode5 wordt het numerieke deel van de postcode en de eerste letter bedoeld, dit zijn 5 posities. Met postcode4 wordt het numerieke deel van de postcode bedoeld.
VerkeersongevallenWaardeEenheidJaar
Verkeersongevallen totaal0Aantal2024
Verkeersongevallen uitsluitend materiële schade0Aantal2024
Verkeersongevallen letselschade0Aantal2024
Verkeersongevallen dodelijk0Aantal2024
De data over verkeersongevallen komt van Rijkswaterstaat.
WoningenWaardeEenheidJaar
Woningvoorraad10Aantal2024
Gemiddelde woningwaarde€341.000Gemiddeld in Euro2023
Woningwaarde klasse€300.000 tot €350.000Categorisch type2023
Eengezinswoningengeen dataAantalgeen data
Meergezinswoningengeen dataAantalgeen data
Koopwoningengeen dataAantalgeen data
Huurwoningengeen dataAantalgeen data
Huurwoningen woningcorporatiesgeen dataAantalgeen data
Huurwoningen overige verhuurdersgeen dataAantalgeen data
Eigendom onbekend10Aantal2024
Bewoondgeen dataAantalgeen data
Onbewoondgeen dataAantalgeen data
% Koopwoningengeen dataPercentagegeen data
% Huurwoningengeen dataPercentagegeen data
% Huurwoningen woningcorporatiesgeen dataPercentagegeen data
% Huurwoningen overige verhuurdersgeen dataPercentagegeen data
% Eigendom onbekend100%Percentage2026
% Eengezinswoningengeen dataPercentagegeen data
% Meergezinswoningengeen dataPercentagegeen data
% Bewoondgeen dataPercentagegeen data
% Onbewoondgeen dataPercentagegeen data
Appartementen1Aantal2026
Tussenwoningen7Aantal2026
Hoekwoningen3Aantal2026
Twee-onder-één-kap woningen0Aantal2026
Vrijstaande woningen0Aantal2026
Woningtype onbekend0Aantal2026
% Appartementen9%Percentage2026
% Tussenwoningen64%Percentage2026
% Hoekwoningen27%Percentage2026
% Twee-onder-één-kap woningen0,0%Percentage2026
% Vrijstaande woningen0,0%Percentage2026
% Woningtype onbekend0,0%Percentage2026
Woningen voor 19451Aantal2026
Woningen 1945 tot 19650Aantal2026
Woningen 1965 tot 19750Aantal2026
Woningen 1975 tot 198510Aantal2026
Woningen 1985 tot 19950Aantal2026
Woningen 1995 tot 20050Aantal2026
Woningen 2005 tot 20150Aantal2026
Woningen 2015 tot 20250Aantal2026
Woningen 2025 en later0Aantal2026
Woningen bouwjaar onbekend0Aantal2026
% Woningen voor 19459%Percentage2026
% Woningen 1945 tot 19650,0%Percentage2026
% Woningen 1965 tot 19750,0%Percentage2026
% Woningen 1975 tot 198591%Percentage2026
% Woningen 1985 tot 19950,0%Percentage2026
% Woningen 1995 tot 20050,0%Percentage2026
% Woningen 2005 tot 20150,0%Percentage2026
% Woningen 2015 tot 20250,0%Percentage2026
% Woningen 2025 en later0,0%Percentage2026
% Woningen bouwjaar onbekend0,0%Percentage2026
De getoonde cijfers over woningen in het postcodegebied 2316 NE komen van het CBS en zijn aangevuld met extra woningdata van het Kadaster. Het CBS leidt de cijfers over de woningvoorraad af uit de BAG. Het CBS definieert een woning als een verblijfsobject met minimaal een woonfunctie en eventueel één of meer andere gebruiksfuncties. De cijfers zijn afgerond op vijftallen. Percentages zijn afgerond op tientallen procenten. Bij minder dan in totaal vijf huishoudens worden er geen gegevens weergegeven.
Help om AlleCijfers actueel te houden

AlleCijfers is gratis te gebruiken, maar niet kosteloos. Vind je de informatie waardevol? Help ons door een donatie te doen — hoe klein ook, we stellen het enorm op prijs.

Interessant? Blijf op de hoogte!

Ontvang een e-mail als de informatie is bijgewerkt. Maximaal 2 per jaar en niets anders dan dat.

Inschrijven
Inspireer anderen en deel deze pagina:
Deel deze pagina: