De postcode 2321LD heeft de huisnummerreeks 2 t/m 598.
Overzicht van de belangrijkste cijfers van het Kadaster en het CBS voor het postcodegebied 2321 LD.
Onderstaande tabel toont de belangrijkste cijfers van het CBS en het Kadaster voor het postcodegebied 2321 LD. Bekijk de pagina's voor de andere postcodes binnen het gebied van de numerieke postcode 2321 via de tabel op de pagina van postcodegebied 2321.
| Postcode 2321LD | Aantal | Bron | Jaar data |
|---|---|---|---|
| Adressen met postcode | 296 | Kadaster | 2026 |
| Adressen met woonfunctie | 289 | Kadaster | 2026 |
| Panden met adres | 2 | Kadaster | 2026 |
| Percelen met adres | 4 | Kadaster | 2026 |
| Woningvoorraad | 0 | CBS | 2024 |
| Huishoudens | 0 | CBS | 2024 |
| Inwoners | 0 | CBS | 2024 |
Op deze pagina vind je een kaart van het postcodegebied 2321 LD, de data over meer dan 250 onderwerpen voor het postcodegebied 2321 LD en een overzicht van alle adressen met postcode 2321LD.
Overzicht postcode 2321 DefinitiesPostcode 2321LD ligt binnen het numerieke postcodegebied 2321 in de gemeente Leiden. Er zijn 296 adressen en geen woningen in het postcodegebied 2321 LD. Er wonen geen inwoners in het postcodegebied 2321 LD. Er zijn geen huishoudens in het postcodegebied 2321 LD.
Advertentie:

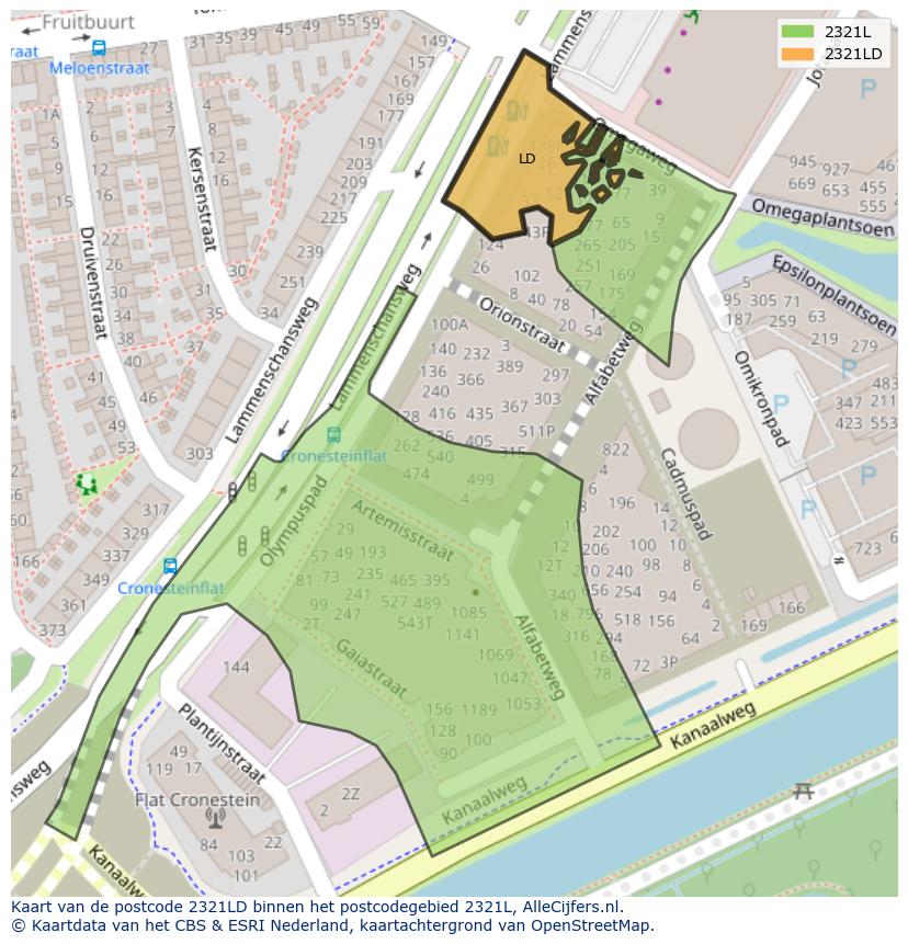
Bovenstaande afbeelding toont de kaart van het postcodegebied 2321LD. Klik op de kaart om de geografie van de numerieke postcode 2321 te tonen. Tip: bekijk ook de interactieve postcodekaart.
De postcode 2321 LD hoort bij de straat Olympuspad te Leiden binnen de gemeente Leiden. Deze postcode heeft de huisnummerreeks 2 t/m 598.
Download de postcodedata in handige Excel documenten voor de gemeente Leiden of voor heel Nederland.
Vorige postcode Volgende postcode| Straatnaam | Huisnummer | Postcode | Woonplaats | Gebruiksdoel | Oppervlakte | Woningtype | Bouwjaar | Energielabel | Bebouwde kom | Soort openbare ruimte |
|---|---|---|---|---|---|---|---|---|---|---|
| Olympuspad | 2 | 2321LD | Leiden | Winkelfunctie | 239 m2 | n.v.t. | 2023 | geen data | ja | Weg |
| Olympuspad | 4 | 2321LD | Leiden | Winkelfunctie | 187 m2 | n.v.t. | 2023 | geen data | ja | Weg |
| Olympuspad | 8 | 2321LD | Leiden | Woonfunctie | 82 m2 | Appartement | 2023 | geen data | ja | Weg |
| Olympuspad | 10 | 2321LD | Leiden | Woonfunctie | 79 m2 | Appartement | 2023 | geen data | ja | Weg |
| Olympuspad | 12 | 2321LD | Leiden | Woonfunctie | 48 m2 | Appartement | 2023 | geen data | ja | Weg |
| Olympuspad | 14 | 2321LD | Leiden | Woonfunctie | 61 m2 | Appartement | 2023 | geen data | ja | Weg |
| Olympuspad | 16 | 2321LD | Leiden | Woonfunctie | 56 m2 | Appartement | 2023 | geen data | ja | Weg |
| Olympuspad | 18 | 2321LD | Leiden | Woonfunctie | 79 m2 | Appartement | 2023 | geen data | ja | Weg |
| Olympuspad | 20 | 2321LD | Leiden | Woonfunctie | 82 m2 | Appartement | 2023 | geen data | ja | Weg |
| Olympuspad | 22 | 2321LD | Leiden | Woonfunctie | 79 m2 | Appartement | 2023 | geen data | ja | Weg |
| Olympuspad | 24 | 2321LD | Leiden | Woonfunctie | 48 m2 | Appartement | 2023 | geen data | ja | Weg |
| Olympuspad | 26 | 2321LD | Leiden | Woonfunctie | 61 m2 | Appartement | 2023 | geen data | ja | Weg |
| Olympuspad | 28 | 2321LD | Leiden | Woonfunctie | 56 m2 | Appartement | 2023 | geen data | ja | Weg |
| Olympuspad | 30 | 2321LD | Leiden | Woonfunctie | 79 m2 | Appartement | 2023 | geen data | ja | Weg |
| Olympuspad | 32 | 2321LD | Leiden | Woonfunctie | 82 m2 | Appartement | 2023 | geen data | ja | Weg |
| Olympuspad | 34 | 2321LD | Leiden | Woonfunctie | 79 m2 | Appartement | 2023 | geen data | ja | Weg |
| Olympuspad | 36 | 2321LD | Leiden | Woonfunctie | 48 m2 | Appartement | 2023 | geen data | ja | Weg |
| Olympuspad | 38 | 2321LD | Leiden | Woonfunctie | 61 m2 | Appartement | 2023 | geen data | ja | Weg |
| Olympuspad | 40 | 2321LD | Leiden | Woonfunctie | 56 m2 | Appartement | 2023 | geen data | ja | Weg |
| Olympuspad | 42 | 2321LD | Leiden | Woonfunctie | 79 m2 | Appartement | 2023 | geen data | ja | Weg |
| Olympuspad | 44 | 2321LD | Leiden | Woonfunctie | 82 m2 | Appartement | 2023 | geen data | ja | Weg |
| Olympuspad | 46 | 2321LD | Leiden | Woonfunctie | 79 m2 | Appartement | 2023 | geen data | ja | Weg |
| Olympuspad | 48 | 2321LD | Leiden | Woonfunctie | 48 m2 | Appartement | 2023 | geen data | ja | Weg |
| Olympuspad | 50 | 2321LD | Leiden | Woonfunctie | 61 m2 | Appartement | 2023 | geen data | ja | Weg |
| Olympuspad | 52 | 2321LD | Leiden | Woonfunctie | 56 m2 | Appartement | 2023 | geen data | ja | Weg |
| Olympuspad | 54 | 2321LD | Leiden | Woonfunctie | 79 m2 | Appartement | 2023 | geen data | ja | Weg |
| Olympuspad | 56 | 2321LD | Leiden | Woonfunctie | 82 m2 | Appartement | 2023 | geen data | ja | Weg |
| Olympuspad | 58 | 2321LD | Leiden | Woonfunctie | 79 m2 | Appartement | 2023 | geen data | ja | Weg |
| Olympuspad | 60 | 2321LD | Leiden | Woonfunctie | 48 m2 | Appartement | 2023 | geen data | ja | Weg |
| Olympuspad | 62 | 2321LD | Leiden | Woonfunctie | 61 m2 | Appartement | 2023 | geen data | ja | Weg |
| Olympuspad | 64 | 2321LD | Leiden | Woonfunctie | 56 m2 | Appartement | 2023 | geen data | ja | Weg |
| Olympuspad | 66 | 2321LD | Leiden | Woonfunctie | 79 m2 | Appartement | 2023 | geen data | ja | Weg |
| Olympuspad | 68 | 2321LD | Leiden | Woonfunctie | 82 m2 | Appartement | 2023 | geen data | ja | Weg |
| Olympuspad | 70 | 2321LD | Leiden | Woonfunctie | 79 m2 | Appartement | 2023 | geen data | ja | Weg |
| Olympuspad | 72 | 2321LD | Leiden | Woonfunctie | 48 m2 | Appartement | 2023 | geen data | ja | Weg |
| Olympuspad | 74 | 2321LD | Leiden | Woonfunctie | 61 m2 | Appartement | 2023 | geen data | ja | Weg |
| Olympuspad | 76 | 2321LD | Leiden | Woonfunctie | 56 m2 | Appartement | 2023 | geen data | ja | Weg |
| Olympuspad | 78 | 2321LD | Leiden | Woonfunctie | 80 m2 | Appartement | 2023 | geen data | ja | Weg |
| Olympuspad | 80 | 2321LD | Leiden | Woonfunctie | 69 m2 | Appartement | 2023 | geen data | ja | Weg |
| Olympuspad | 82 | 2321LD | Leiden | Woonfunctie | 77 m2 | Appartement | 2023 | geen data | ja | Weg |
| Olympuspad | 84 | 2321LD | Leiden | Woonfunctie | 48 m2 | Appartement | 2023 | geen data | ja | Weg |
| Olympuspad | 86 | 2321LD | Leiden | Woonfunctie | 61 m2 | Appartement | 2023 | geen data | ja | Weg |
| Olympuspad | 88 | 2321LD | Leiden | Woonfunctie | 56 m2 | Appartement | 2023 | geen data | ja | Weg |
| Olympuspad | 90 | 2321LD | Leiden | Woonfunctie | 73 m2 | Appartement | 2023 | geen data | ja | Weg |
| Olympuspad | 94 | 2321LD | Leiden | Winkelfunctie | 124 m2 | n.v.t. | 2023 | geen data | ja | Weg |
| Olympuspad | 96 | 2321LD | Leiden | Winkelfunctie | 181 m2 | n.v.t. | 2023 | geen data | ja | Weg |
| Olympuspad | 98 | 2321LD | Leiden | Winkelfunctie | 130 m2 | n.v.t. | 2023 | geen data | ja | Weg |
| Olympuspad | 100 - A | 2321LD | Leiden | Sportfunctie | 136 m2 | n.v.t. | 2024 | geen data | ja | Weg |
| Olympuspad | 100 | 2321LD | Leiden | Gezondheidszorgfunctie | 270 m2 | n.v.t. | 2024 | geen data | ja | Weg |
| Olympuspad | 106 | 2321LD | Leiden | Woonfunctie | 48 m2 | Appartement | 2024 | geen data | ja | Weg |
| Olympuspad | 108 | 2321LD | Leiden | Woonfunctie | 46 m2 | Appartement | 2024 | geen data | ja | Weg |
| Olympuspad | 110 | 2321LD | Leiden | Woonfunctie | 47 m2 | Appartement | 2024 | geen data | ja | Weg |
| Olympuspad | 112 | 2321LD | Leiden | Woonfunctie | 47 m2 | Appartement | 2024 | geen data | ja | Weg |
| Olympuspad | 114 | 2321LD | Leiden | Woonfunctie | 46 m2 | Appartement | 2024 | geen data | ja | Weg |
| Olympuspad | 116 | 2321LD | Leiden | Woonfunctie | 46 m2 | Appartement | 2024 | geen data | ja | Weg |
| Olympuspad | 118 | 2321LD | Leiden | Woonfunctie | 46 m2 | Appartement | 2024 | geen data | ja | Weg |
| Olympuspad | 120 | 2321LD | Leiden | Woonfunctie | 46 m2 | Appartement | 2024 | geen data | ja | Weg |
| Olympuspad | 122 | 2321LD | Leiden | Woonfunctie | 50 m2 | Appartement | 2024 | geen data | ja | Weg |
| Olympuspad | 124 | 2321LD | Leiden | Woonfunctie | 46 m2 | Appartement | 2024 | geen data | ja | Weg |
| Olympuspad | 126 | 2321LD | Leiden | Woonfunctie | 46 m2 | Appartement | 2024 | geen data | ja | Weg |
| Olympuspad | 128 | 2321LD | Leiden | Woonfunctie | 46 m2 | Appartement | 2024 | geen data | ja | Weg |
| Olympuspad | 130 | 2321LD | Leiden | Woonfunctie | 46 m2 | Appartement | 2024 | geen data | ja | Weg |
| Olympuspad | 132 | 2321LD | Leiden | Woonfunctie | 46 m2 | Appartement | 2024 | geen data | ja | Weg |
| Olympuspad | 134 | 2321LD | Leiden | Woonfunctie | 46 m2 | Appartement | 2024 | geen data | ja | Weg |
| Olympuspad | 136 | 2321LD | Leiden | Woonfunctie | 46 m2 | Appartement | 2024 | geen data | ja | Weg |
| Olympuspad | 138 | 2321LD | Leiden | Woonfunctie | 46 m2 | Appartement | 2024 | geen data | ja | Weg |
| Olympuspad | 140 | 2321LD | Leiden | Woonfunctie | 46 m2 | Appartement | 2024 | geen data | ja | Weg |
| Olympuspad | 142 | 2321LD | Leiden | Woonfunctie | 46 m2 | Appartement | 2024 | geen data | ja | Weg |
| Olympuspad | 144 | 2321LD | Leiden | Woonfunctie | 46 m2 | Appartement | 2024 | geen data | ja | Weg |
| Olympuspad | 146 | 2321LD | Leiden | Woonfunctie | 50 m2 | Appartement | 2024 | geen data | ja | Weg |
| Olympuspad | 148 | 2321LD | Leiden | Woonfunctie | 46 m2 | Appartement | 2024 | geen data | ja | Weg |
| Olympuspad | 150 | 2321LD | Leiden | Woonfunctie | 46 m2 | Appartement | 2024 | geen data | ja | Weg |
| Olympuspad | 152 | 2321LD | Leiden | Woonfunctie | 46 m2 | Appartement | 2024 | geen data | ja | Weg |
| Olympuspad | 154 | 2321LD | Leiden | Woonfunctie | 46 m2 | Appartement | 2024 | geen data | ja | Weg |
| Olympuspad | 156 | 2321LD | Leiden | Woonfunctie | 46 m2 | Appartement | 2024 | geen data | ja | Weg |
| Olympuspad | 158 | 2321LD | Leiden | Woonfunctie | 46 m2 | Appartement | 2024 | geen data | ja | Weg |
| Olympuspad | 160 | 2321LD | Leiden | Woonfunctie | 46 m2 | Appartement | 2024 | geen data | ja | Weg |
| Olympuspad | 162 | 2321LD | Leiden | Woonfunctie | 48 m2 | Appartement | 2024 | geen data | ja | Weg |
| Olympuspad | 164 | 2321LD | Leiden | Woonfunctie | 48 m2 | Appartement | 2024 | geen data | ja | Weg |
| Olympuspad | 166 | 2321LD | Leiden | Woonfunctie | 46 m2 | Appartement | 2024 | geen data | ja | Weg |
| Olympuspad | 168 | 2321LD | Leiden | Woonfunctie | 46 m2 | Appartement | 2024 | geen data | ja | Weg |
| Olympuspad | 170 | 2321LD | Leiden | Woonfunctie | 46 m2 | Appartement | 2024 | geen data | ja | Weg |
| Olympuspad | 172 | 2321LD | Leiden | Woonfunctie | 46 m2 | Appartement | 2024 | geen data | ja | Weg |
| Olympuspad | 174 | 2321LD | Leiden | Woonfunctie | 46 m2 | Appartement | 2024 | geen data | ja | Weg |
| Olympuspad | 176 | 2321LD | Leiden | Woonfunctie | 47 m2 | Appartement | 2024 | geen data | ja | Weg |
| Olympuspad | 178 | 2321LD | Leiden | Woonfunctie | 48 m2 | Appartement | 2024 | geen data | ja | Weg |
| Olympuspad | 180 | 2321LD | Leiden | Woonfunctie | 48 m2 | Appartement | 2024 | geen data | ja | Weg |
| Olympuspad | 182 | 2321LD | Leiden | Woonfunctie | 47 m2 | Appartement | 2024 | geen data | ja | Weg |
| Olympuspad | 184 | 2321LD | Leiden | Woonfunctie | 47 m2 | Appartement | 2024 | geen data | ja | Weg |
| Olympuspad | 186 | 2321LD | Leiden | Woonfunctie | 46 m2 | Appartement | 2024 | geen data | ja | Weg |
| Olympuspad | 188 | 2321LD | Leiden | Woonfunctie | 46 m2 | Appartement | 2024 | geen data | ja | Weg |
| Olympuspad | 190 | 2321LD | Leiden | Woonfunctie | 46 m2 | Appartement | 2024 | geen data | ja | Weg |
| Olympuspad | 192 | 2321LD | Leiden | Woonfunctie | 46 m2 | Appartement | 2024 | geen data | ja | Weg |
| Olympuspad | 194 | 2321LD | Leiden | Woonfunctie | 50 m2 | Appartement | 2024 | geen data | ja | Weg |
| Olympuspad | 196 | 2321LD | Leiden | Woonfunctie | 46 m2 | Appartement | 2024 | geen data | ja | Weg |
| Olympuspad | 198 | 2321LD | Leiden | Woonfunctie | 46 m2 | Appartement | 2024 | geen data | ja | Weg |
| Olympuspad | 200 | 2321LD | Leiden | Woonfunctie | 46 m2 | Appartement | 2024 | geen data | ja | Weg |
| Olympuspad | 202 | 2321LD | Leiden | Woonfunctie | 46 m2 | Appartement | 2024 | geen data | ja | Weg |
| Olympuspad | 204 | 2321LD | Leiden | Woonfunctie | 46 m2 | Appartement | 2024 | geen data | ja | Weg |
| Olympuspad | 206 | 2321LD | Leiden | Woonfunctie | 46 m2 | Appartement | 2024 | geen data | ja | Weg |
| Olympuspad | 208 | 2321LD | Leiden | Woonfunctie | 46 m2 | Appartement | 2024 | geen data | ja | Weg |
| Olympuspad | 210 | 2321LD | Leiden | Woonfunctie | 46 m2 | Appartement | 2024 | geen data | ja | Weg |
| Olympuspad | 212 | 2321LD | Leiden | Woonfunctie | 46 m2 | Appartement | 2024 | geen data | ja | Weg |
| Olympuspad | 214 | 2321LD | Leiden | Woonfunctie | 46 m2 | Appartement | 2024 | geen data | ja | Weg |
| Olympuspad | 216 | 2321LD | Leiden | Woonfunctie | 46 m2 | Appartement | 2024 | geen data | ja | Weg |
| Olympuspad | 218 | 2321LD | Leiden | Woonfunctie | 50 m2 | Appartement | 2024 | geen data | ja | Weg |
| Olympuspad | 220 | 2321LD | Leiden | Woonfunctie | 46 m2 | Appartement | 2024 | geen data | ja | Weg |
| Olympuspad | 222 | 2321LD | Leiden | Woonfunctie | 46 m2 | Appartement | 2024 | geen data | ja | Weg |
| Olympuspad | 224 | 2321LD | Leiden | Woonfunctie | 46 m2 | Appartement | 2024 | geen data | ja | Weg |
| Olympuspad | 226 | 2321LD | Leiden | Woonfunctie | 46 m2 | Appartement | 2024 | geen data | ja | Weg |
| Olympuspad | 228 | 2321LD | Leiden | Woonfunctie | 46 m2 | Appartement | 2024 | geen data | ja | Weg |
| Olympuspad | 230 | 2321LD | Leiden | Woonfunctie | 46 m2 | Appartement | 2024 | geen data | ja | Weg |
| Olympuspad | 232 | 2321LD | Leiden | Woonfunctie | 46 m2 | Appartement | 2024 | geen data | ja | Weg |
| Olympuspad | 234 | 2321LD | Leiden | Woonfunctie | 48 m2 | Appartement | 2024 | geen data | ja | Weg |
| Olympuspad | 236 | 2321LD | Leiden | Woonfunctie | 49 m2 | Appartement | 2024 | geen data | ja | Weg |
| Olympuspad | 238 | 2321LD | Leiden | Woonfunctie | 49 m2 | Appartement | 2024 | geen data | ja | Weg |
| Olympuspad | 240 | 2321LD | Leiden | Woonfunctie | 46 m2 | Appartement | 2024 | geen data | ja | Weg |
| Olympuspad | 242 | 2321LD | Leiden | Woonfunctie | 46 m2 | Appartement | 2024 | geen data | ja | Weg |
| Olympuspad | 244 | 2321LD | Leiden | Woonfunctie | 46 m2 | Appartement | 2024 | geen data | ja | Weg |
| Olympuspad | 246 | 2321LD | Leiden | Woonfunctie | 46 m2 | Appartement | 2024 | geen data | ja | Weg |
| Olympuspad | 248 | 2321LD | Leiden | Woonfunctie | 46 m2 | Appartement | 2024 | geen data | ja | Weg |
| Olympuspad | 250 | 2321LD | Leiden | Woonfunctie | 48 m2 | Appartement | 2024 | geen data | ja | Weg |
| Olympuspad | 252 | 2321LD | Leiden | Woonfunctie | 46 m2 | Appartement | 2024 | geen data | ja | Weg |
| Olympuspad | 254 | 2321LD | Leiden | Woonfunctie | 47 m2 | Appartement | 2024 | geen data | ja | Weg |
| Olympuspad | 256 | 2321LD | Leiden | Woonfunctie | 47 m2 | Appartement | 2024 | geen data | ja | Weg |
| Olympuspad | 258 | 2321LD | Leiden | Woonfunctie | 46 m2 | Appartement | 2024 | geen data | ja | Weg |
| Olympuspad | 260 | 2321LD | Leiden | Woonfunctie | 46 m2 | Appartement | 2024 | geen data | ja | Weg |
| Olympuspad | 262 | 2321LD | Leiden | Woonfunctie | 46 m2 | Appartement | 2024 | geen data | ja | Weg |
| Olympuspad | 264 | 2321LD | Leiden | Woonfunctie | 46 m2 | Appartement | 2024 | geen data | ja | Weg |
| Olympuspad | 266 | 2321LD | Leiden | Woonfunctie | 50 m2 | Appartement | 2024 | geen data | ja | Weg |
| Olympuspad | 268 | 2321LD | Leiden | Woonfunctie | 46 m2 | Appartement | 2024 | geen data | ja | Weg |
| Olympuspad | 270 | 2321LD | Leiden | Woonfunctie | 46 m2 | Appartement | 2024 | geen data | ja | Weg |
| Olympuspad | 272 | 2321LD | Leiden | Woonfunctie | 46 m2 | Appartement | 2024 | geen data | ja | Weg |
| Olympuspad | 274 | 2321LD | Leiden | Woonfunctie | 46 m2 | Appartement | 2024 | geen data | ja | Weg |
| Olympuspad | 276 | 2321LD | Leiden | Woonfunctie | 46 m2 | Appartement | 2024 | geen data | ja | Weg |
| Olympuspad | 278 | 2321LD | Leiden | Woonfunctie | 46 m2 | Appartement | 2024 | geen data | ja | Weg |
| Olympuspad | 280 | 2321LD | Leiden | Woonfunctie | 46 m2 | Appartement | 2024 | geen data | ja | Weg |
| Olympuspad | 282 | 2321LD | Leiden | Woonfunctie | 46 m2 | Appartement | 2024 | geen data | ja | Weg |
| Olympuspad | 284 | 2321LD | Leiden | Woonfunctie | 46 m2 | Appartement | 2024 | geen data | ja | Weg |
| Olympuspad | 286 | 2321LD | Leiden | Woonfunctie | 46 m2 | Appartement | 2024 | geen data | ja | Weg |
| Olympuspad | 288 | 2321LD | Leiden | Woonfunctie | 46 m2 | Appartement | 2024 | geen data | ja | Weg |
| Olympuspad | 290 | 2321LD | Leiden | Woonfunctie | 50 m2 | Appartement | 2024 | geen data | ja | Weg |
| Olympuspad | 292 | 2321LD | Leiden | Woonfunctie | 46 m2 | Appartement | 2024 | geen data | ja | Weg |
| Olympuspad | 294 | 2321LD | Leiden | Woonfunctie | 46 m2 | Appartement | 2024 | geen data | ja | Weg |
| Olympuspad | 296 | 2321LD | Leiden | Woonfunctie | 46 m2 | Appartement | 2024 | geen data | ja | Weg |
| Olympuspad | 298 | 2321LD | Leiden | Woonfunctie | 46 m2 | Appartement | 2024 | geen data | ja | Weg |
| Olympuspad | 300 | 2321LD | Leiden | Woonfunctie | 46 m2 | Appartement | 2024 | geen data | ja | Weg |
| Olympuspad | 302 | 2321LD | Leiden | Woonfunctie | 46 m2 | Appartement | 2024 | geen data | ja | Weg |
| Olympuspad | 304 | 2321LD | Leiden | Woonfunctie | 46 m2 | Appartement | 2024 | geen data | ja | Weg |
| Olympuspad | 306 | 2321LD | Leiden | Woonfunctie | 48 m2 | Appartement | 2024 | geen data | ja | Weg |
| Olympuspad | 308 | 2321LD | Leiden | Woonfunctie | 49 m2 | Appartement | 2024 | geen data | ja | Weg |
| Olympuspad | 310 | 2321LD | Leiden | Woonfunctie | 46 m2 | Appartement | 2024 | geen data | ja | Weg |
| Olympuspad | 312 | 2321LD | Leiden | Woonfunctie | 46 m2 | Appartement | 2024 | geen data | ja | Weg |
| Olympuspad | 314 | 2321LD | Leiden | Woonfunctie | 46 m2 | Appartement | 2024 | geen data | ja | Weg |
| Olympuspad | 316 | 2321LD | Leiden | Woonfunctie | 46 m2 | Appartement | 2024 | geen data | ja | Weg |
| Olympuspad | 318 | 2321LD | Leiden | Woonfunctie | 46 m2 | Appartement | 2024 | geen data | ja | Weg |
| Olympuspad | 320 | 2321LD | Leiden | Woonfunctie | 47 m2 | Appartement | 2024 | geen data | ja | Weg |
| Olympuspad | 322 | 2321LD | Leiden | Woonfunctie | 48 m2 | Appartement | 2024 | geen data | ja | Weg |
| Olympuspad | 324 | 2321LD | Leiden | Woonfunctie | 46 m2 | Appartement | 2024 | geen data | ja | Weg |
| Olympuspad | 326 | 2321LD | Leiden | Woonfunctie | 47 m2 | Appartement | 2024 | geen data | ja | Weg |
| Olympuspad | 328 | 2321LD | Leiden | Woonfunctie | 47 m2 | Appartement | 2024 | geen data | ja | Weg |
| Olympuspad | 330 | 2321LD | Leiden | Woonfunctie | 46 m2 | Appartement | 2024 | geen data | ja | Weg |
| Olympuspad | 332 | 2321LD | Leiden | Woonfunctie | 46 m2 | Appartement | 2024 | geen data | ja | Weg |
| Olympuspad | 334 | 2321LD | Leiden | Woonfunctie | 46 m2 | Appartement | 2024 | geen data | ja | Weg |
| Olympuspad | 336 | 2321LD | Leiden | Woonfunctie | 46 m2 | Appartement | 2024 | geen data | ja | Weg |
| Olympuspad | 338 | 2321LD | Leiden | Woonfunctie | 49 m2 | Appartement | 2024 | geen data | ja | Weg |
| Olympuspad | 340 | 2321LD | Leiden | Woonfunctie | 46 m2 | Appartement | 2024 | geen data | ja | Weg |
| Olympuspad | 342 | 2321LD | Leiden | Woonfunctie | 46 m2 | Appartement | 2024 | geen data | ja | Weg |
| Olympuspad | 344 | 2321LD | Leiden | Woonfunctie | 46 m2 | Appartement | 2024 | geen data | ja | Weg |
| Olympuspad | 346 | 2321LD | Leiden | Woonfunctie | 46 m2 | Appartement | 2024 | geen data | ja | Weg |
| Olympuspad | 348 | 2321LD | Leiden | Woonfunctie | 46 m2 | Appartement | 2024 | geen data | ja | Weg |
| Olympuspad | 350 | 2321LD | Leiden | Woonfunctie | 46 m2 | Appartement | 2024 | geen data | ja | Weg |
| Olympuspad | 352 | 2321LD | Leiden | Woonfunctie | 46 m2 | Appartement | 2024 | geen data | ja | Weg |
| Olympuspad | 354 | 2321LD | Leiden | Woonfunctie | 46 m2 | Appartement | 2024 | geen data | ja | Weg |
| Olympuspad | 356 | 2321LD | Leiden | Woonfunctie | 46 m2 | Appartement | 2024 | geen data | ja | Weg |
| Olympuspad | 358 | 2321LD | Leiden | Woonfunctie | 46 m2 | Appartement | 2024 | geen data | ja | Weg |
| Olympuspad | 360 | 2321LD | Leiden | Woonfunctie | 46 m2 | Appartement | 2024 | geen data | ja | Weg |
| Olympuspad | 362 | 2321LD | Leiden | Woonfunctie | 50 m2 | Appartement | 2024 | geen data | ja | Weg |
| Olympuspad | 364 | 2321LD | Leiden | Woonfunctie | 46 m2 | Appartement | 2024 | geen data | ja | Weg |
| Olympuspad | 366 | 2321LD | Leiden | Woonfunctie | 46 m2 | Appartement | 2024 | geen data | ja | Weg |
| Olympuspad | 368 | 2321LD | Leiden | Woonfunctie | 46 m2 | Appartement | 2024 | geen data | ja | Weg |
| Olympuspad | 370 | 2321LD | Leiden | Woonfunctie | 46 m2 | Appartement | 2024 | geen data | ja | Weg |
| Olympuspad | 372 | 2321LD | Leiden | Woonfunctie | 46 m2 | Appartement | 2024 | geen data | ja | Weg |
| Olympuspad | 374 | 2321LD | Leiden | Woonfunctie | 46 m2 | Appartement | 2024 | geen data | ja | Weg |
| Olympuspad | 376 | 2321LD | Leiden | Woonfunctie | 46 m2 | Appartement | 2024 | geen data | ja | Weg |
| Olympuspad | 378 | 2321LD | Leiden | Woonfunctie | 48 m2 | Appartement | 2024 | geen data | ja | Weg |
| Olympuspad | 380 | 2321LD | Leiden | Woonfunctie | 49 m2 | Appartement | 2024 | geen data | ja | Weg |
| Olympuspad | 382 | 2321LD | Leiden | Woonfunctie | 47 m2 | Appartement | 2024 | geen data | ja | Weg |
| Olympuspad | 384 | 2321LD | Leiden | Woonfunctie | 46 m2 | Appartement | 2024 | geen data | ja | Weg |
| Olympuspad | 386 | 2321LD | Leiden | Woonfunctie | 46 m2 | Appartement | 2024 | geen data | ja | Weg |
| Olympuspad | 388 | 2321LD | Leiden | Woonfunctie | 46 m2 | Appartement | 2024 | geen data | ja | Weg |
| Olympuspad | 390 | 2321LD | Leiden | Woonfunctie | 46 m2 | Appartement | 2024 | geen data | ja | Weg |
| Olympuspad | 392 | 2321LD | Leiden | Woonfunctie | 47 m2 | Appartement | 2024 | geen data | ja | Weg |
| Olympuspad | 394 | 2321LD | Leiden | Woonfunctie | 48 m2 | Appartement | 2024 | geen data | ja | Weg |
| Olympuspad | 396 | 2321LD | Leiden | Woonfunctie | 46 m2 | Appartement | 2024 | geen data | ja | Weg |
| Olympuspad | 398 | 2321LD | Leiden | Woonfunctie | 47 m2 | Appartement | 2024 | geen data | ja | Weg |
| Olympuspad | 400 | 2321LD | Leiden | Woonfunctie | 47 m2 | Appartement | 2024 | geen data | ja | Weg |
| Olympuspad | 402 | 2321LD | Leiden | Woonfunctie | 47 m2 | Appartement | 2024 | geen data | ja | Weg |
| Olympuspad | 404 | 2321LD | Leiden | Woonfunctie | 46 m2 | Appartement | 2024 | geen data | ja | Weg |
| Olympuspad | 406 | 2321LD | Leiden | Woonfunctie | 46 m2 | Appartement | 2024 | geen data | ja | Weg |
| Olympuspad | 408 | 2321LD | Leiden | Woonfunctie | 46 m2 | Appartement | 2024 | geen data | ja | Weg |
| Olympuspad | 410 | 2321LD | Leiden | Woonfunctie | 50 m2 | Appartement | 2024 | geen data | ja | Weg |
| Olympuspad | 412 | 2321LD | Leiden | Woonfunctie | 46 m2 | Appartement | 2024 | geen data | ja | Weg |
| Olympuspad | 414 | 2321LD | Leiden | Woonfunctie | 46 m2 | Appartement | 2024 | geen data | ja | Weg |
| Olympuspad | 416 | 2321LD | Leiden | Woonfunctie | 46 m2 | Appartement | 2024 | geen data | ja | Weg |
| Olympuspad | 418 | 2321LD | Leiden | Woonfunctie | 46 m2 | Appartement | 2024 | geen data | ja | Weg |
| Olympuspad | 420 | 2321LD | Leiden | Woonfunctie | 46 m2 | Appartement | 2024 | geen data | ja | Weg |
| Olympuspad | 422 | 2321LD | Leiden | Woonfunctie | 46 m2 | Appartement | 2024 | geen data | ja | Weg |
| Olympuspad | 424 | 2321LD | Leiden | Woonfunctie | 46 m2 | Appartement | 2024 | geen data | ja | Weg |
| Olympuspad | 426 | 2321LD | Leiden | Woonfunctie | 46 m2 | Appartement | 2024 | geen data | ja | Weg |
| Olympuspad | 428 | 2321LD | Leiden | Woonfunctie | 46 m2 | Appartement | 2024 | geen data | ja | Weg |
| Olympuspad | 430 | 2321LD | Leiden | Woonfunctie | 46 m2 | Appartement | 2024 | geen data | ja | Weg |
| Olympuspad | 432 | 2321LD | Leiden | Woonfunctie | 46 m2 | Appartement | 2024 | geen data | ja | Weg |
| Olympuspad | 434 | 2321LD | Leiden | Woonfunctie | 50 m2 | Appartement | 2024 | geen data | ja | Weg |
| Olympuspad | 436 | 2321LD | Leiden | Woonfunctie | 46 m2 | Appartement | 2024 | geen data | ja | Weg |
| Olympuspad | 438 | 2321LD | Leiden | Woonfunctie | 46 m2 | Appartement | 2024 | geen data | ja | Weg |
| Olympuspad | 440 | 2321LD | Leiden | Woonfunctie | 46 m2 | Appartement | 2024 | geen data | ja | Weg |
| Olympuspad | 442 | 2321LD | Leiden | Woonfunctie | 46 m2 | Appartement | 2024 | geen data | ja | Weg |
| Olympuspad | 444 | 2321LD | Leiden | Woonfunctie | 46 m2 | Appartement | 2024 | geen data | ja | Weg |
| Olympuspad | 446 | 2321LD | Leiden | Woonfunctie | 46 m2 | Appartement | 2024 | geen data | ja | Weg |
| Olympuspad | 448 | 2321LD | Leiden | Woonfunctie | 46 m2 | Appartement | 2024 | geen data | ja | Weg |
| Olympuspad | 450 | 2321LD | Leiden | Woonfunctie | 48 m2 | Appartement | 2024 | geen data | ja | Weg |
| Olympuspad | 452 | 2321LD | Leiden | Woonfunctie | 49 m2 | Appartement | 2024 | geen data | ja | Weg |
| Olympuspad | 454 | 2321LD | Leiden | Woonfunctie | 49 m2 | Appartement | 2024 | geen data | ja | Weg |
| Olympuspad | 456 | 2321LD | Leiden | Woonfunctie | 46 m2 | Appartement | 2024 | geen data | ja | Weg |
| Olympuspad | 458 | 2321LD | Leiden | Woonfunctie | 46 m2 | Appartement | 2024 | geen data | ja | Weg |
| Olympuspad | 460 | 2321LD | Leiden | Woonfunctie | 46 m2 | Appartement | 2024 | geen data | ja | Weg |
| Olympuspad | 462 | 2321LD | Leiden | Woonfunctie | 46 m2 | Appartement | 2024 | geen data | ja | Weg |
| Olympuspad | 464 | 2321LD | Leiden | Woonfunctie | 47 m2 | Appartement | 2024 | geen data | ja | Weg |
| Olympuspad | 466 | 2321LD | Leiden | Woonfunctie | 48 m2 | Appartement | 2024 | geen data | ja | Weg |
| Olympuspad | 468 | 2321LD | Leiden | Woonfunctie | 46 m2 | Appartement | 2024 | geen data | ja | Weg |
| Olympuspad | 470 | 2321LD | Leiden | Woonfunctie | 47 m2 | Appartement | 2024 | geen data | ja | Weg |
| Olympuspad | 472 | 2321LD | Leiden | Woonfunctie | 47 m2 | Appartement | 2024 | geen data | ja | Weg |
| Olympuspad | 474 | 2321LD | Leiden | Woonfunctie | 46 m2 | Appartement | 2024 | geen data | ja | Weg |
| Olympuspad | 476 | 2321LD | Leiden | Woonfunctie | 46 m2 | Appartement | 2024 | geen data | ja | Weg |
| Olympuspad | 478 | 2321LD | Leiden | Woonfunctie | 46 m2 | Appartement | 2024 | geen data | ja | Weg |
| Olympuspad | 480 | 2321LD | Leiden | Woonfunctie | 46 m2 | Appartement | 2024 | geen data | ja | Weg |
| Olympuspad | 482 | 2321LD | Leiden | Woonfunctie | 50 m2 | Appartement | 2024 | geen data | ja | Weg |
| Olympuspad | 484 | 2321LD | Leiden | Woonfunctie | 46 m2 | Appartement | 2024 | geen data | ja | Weg |
| Olympuspad | 486 | 2321LD | Leiden | Woonfunctie | 46 m2 | Appartement | 2024 | geen data | ja | Weg |
| Olympuspad | 488 | 2321LD | Leiden | Woonfunctie | 46 m2 | Appartement | 2024 | geen data | ja | Weg |
| Olympuspad | 490 | 2321LD | Leiden | Woonfunctie | 46 m2 | Appartement | 2024 | geen data | ja | Weg |
| Olympuspad | 492 | 2321LD | Leiden | Woonfunctie | 46 m2 | Appartement | 2024 | geen data | ja | Weg |
| Olympuspad | 494 | 2321LD | Leiden | Woonfunctie | 46 m2 | Appartement | 2024 | geen data | ja | Weg |
| Olympuspad | 496 | 2321LD | Leiden | Woonfunctie | 46 m2 | Appartement | 2024 | geen data | ja | Weg |
| Olympuspad | 498 | 2321LD | Leiden | Woonfunctie | 46 m2 | Appartement | 2024 | geen data | ja | Weg |
| Olympuspad | 500 | 2321LD | Leiden | Woonfunctie | 46 m2 | Appartement | 2024 | geen data | ja | Weg |
| Olympuspad | 502 | 2321LD | Leiden | Woonfunctie | 46 m2 | Appartement | 2024 | geen data | ja | Weg |
| Olympuspad | 504 | 2321LD | Leiden | Woonfunctie | 46 m2 | Appartement | 2024 | geen data | ja | Weg |
| Olympuspad | 506 | 2321LD | Leiden | Woonfunctie | 50 m2 | Appartement | 2024 | geen data | ja | Weg |
| Olympuspad | 508 | 2321LD | Leiden | Woonfunctie | 46 m2 | Appartement | 2024 | geen data | ja | Weg |
| Olympuspad | 510 | 2321LD | Leiden | Woonfunctie | 46 m2 | Appartement | 2024 | geen data | ja | Weg |
| Olympuspad | 512 | 2321LD | Leiden | Woonfunctie | 46 m2 | Appartement | 2024 | geen data | ja | Weg |
| Olympuspad | 514 | 2321LD | Leiden | Woonfunctie | 46 m2 | Appartement | 2024 | geen data | ja | Weg |
| Olympuspad | 516 | 2321LD | Leiden | Woonfunctie | 46 m2 | Appartement | 2024 | geen data | ja | Weg |
| Olympuspad | 518 | 2321LD | Leiden | Woonfunctie | 46 m2 | Appartement | 2024 | geen data | ja | Weg |
| Olympuspad | 520 | 2321LD | Leiden | Woonfunctie | 46 m2 | Appartement | 2024 | geen data | ja | Weg |
| Olympuspad | 522 | 2321LD | Leiden | Woonfunctie | 46 m2 | Appartement | 2024 | geen data | ja | Weg |
| Olympuspad | 524 | 2321LD | Leiden | Woonfunctie | 49 m2 | Appartement | 2024 | geen data | ja | Weg |
| Olympuspad | 526 | 2321LD | Leiden | Woonfunctie | 46 m2 | Appartement | 2024 | geen data | ja | Weg |
| Olympuspad | 528 | 2321LD | Leiden | Woonfunctie | 46 m2 | Appartement | 2024 | geen data | ja | Weg |
| Olympuspad | 530 | 2321LD | Leiden | Woonfunctie | 46 m2 | Appartement | 2024 | geen data | ja | Weg |
| Olympuspad | 532 | 2321LD | Leiden | Woonfunctie | 46 m2 | Appartement | 2024 | geen data | ja | Weg |
| Olympuspad | 534 | 2321LD | Leiden | Woonfunctie | 46 m2 | Appartement | 2024 | geen data | ja | Weg |
| Olympuspad | 536 | 2321LD | Leiden | Woonfunctie | 47 m2 | Appartement | 2024 | geen data | ja | Weg |
| Olympuspad | 538 | 2321LD | Leiden | Woonfunctie | 47 m2 | Appartement | 2024 | geen data | ja | Weg |
| Olympuspad | 540 | 2321LD | Leiden | Woonfunctie | 46 m2 | Appartement | 2024 | geen data | ja | Weg |
| Olympuspad | 542 | 2321LD | Leiden | Woonfunctie | 46 m2 | Appartement | 2024 | geen data | ja | Weg |
| Olympuspad | 544 | 2321LD | Leiden | Woonfunctie | 46 m2 | Appartement | 2024 | geen data | ja | Weg |
| Olympuspad | 546 | 2321LD | Leiden | Woonfunctie | 46 m2 | Appartement | 2024 | geen data | ja | Weg |
| Olympuspad | 548 | 2321LD | Leiden | Woonfunctie | 46 m2 | Appartement | 2024 | geen data | ja | Weg |
| Olympuspad | 550 | 2321LD | Leiden | Woonfunctie | 46 m2 | Appartement | 2024 | geen data | ja | Weg |
| Olympuspad | 552 | 2321LD | Leiden | Woonfunctie | 45 m2 | Appartement | 2024 | geen data | ja | Weg |
| Olympuspad | 554 | 2321LD | Leiden | Woonfunctie | 48 m2 | Appartement | 2024 | geen data | ja | Weg |
| Olympuspad | 556 | 2321LD | Leiden | Woonfunctie | 45 m2 | Appartement | 2024 | geen data | ja | Weg |
| Olympuspad | 558 | 2321LD | Leiden | Woonfunctie | 46 m2 | Appartement | 2024 | geen data | ja | Weg |
| Olympuspad | 560 | 2321LD | Leiden | Woonfunctie | 46 m2 | Appartement | 2024 | geen data | ja | Weg |
| Olympuspad | 562 | 2321LD | Leiden | Woonfunctie | 46 m2 | Appartement | 2024 | geen data | ja | Weg |
| Olympuspad | 564 | 2321LD | Leiden | Woonfunctie | 46 m2 | Appartement | 2024 | geen data | ja | Weg |
| Olympuspad | 566 | 2321LD | Leiden | Woonfunctie | 46 m2 | Appartement | 2024 | geen data | ja | Weg |
| Olympuspad | 568 | 2321LD | Leiden | Woonfunctie | 46 m2 | Appartement | 2024 | geen data | ja | Weg |
| Olympuspad | 570 | 2321LD | Leiden | Woonfunctie | 46 m2 | Appartement | 2024 | geen data | ja | Weg |
| Olympuspad | 572 | 2321LD | Leiden | Woonfunctie | 46 m2 | Appartement | 2024 | geen data | ja | Weg |
| Olympuspad | 574 | 2321LD | Leiden | Woonfunctie | 46 m2 | Appartement | 2024 | geen data | ja | Weg |
| Olympuspad | 576 | 2321LD | Leiden | Woonfunctie | 45 m2 | Appartement | 2024 | geen data | ja | Weg |
| Olympuspad | 578 | 2321LD | Leiden | Woonfunctie | 48 m2 | Appartement | 2024 | geen data | ja | Weg |
| Olympuspad | 580 | 2321LD | Leiden | Woonfunctie | 45 m2 | Appartement | 2024 | geen data | ja | Weg |
| Olympuspad | 582 | 2321LD | Leiden | Woonfunctie | 46 m2 | Appartement | 2024 | geen data | ja | Weg |
| Olympuspad | 584 | 2321LD | Leiden | Woonfunctie | 48 m2 | Appartement | 2024 | geen data | ja | Weg |
| Olympuspad | 586 | 2321LD | Leiden | Woonfunctie | 49 m2 | Appartement | 2024 | geen data | ja | Weg |
| Olympuspad | 588 | 2321LD | Leiden | Woonfunctie | 46 m2 | Appartement | 2024 | geen data | ja | Weg |
| Olympuspad | 590 | 2321LD | Leiden | Woonfunctie | 46 m2 | Appartement | 2024 | geen data | ja | Weg |
| Olympuspad | 592 | 2321LD | Leiden | Woonfunctie | 46 m2 | Appartement | 2024 | geen data | ja | Weg |
| Olympuspad | 594 | 2321LD | Leiden | Woonfunctie | 46 m2 | Appartement | 2024 | geen data | ja | Weg |
| Olympuspad | 596 | 2321LD | Leiden | Woonfunctie | 46 m2 | Appartement | 2024 | geen data | ja | Weg |
| Olympuspad | 598 | 2321LD | Leiden | Woonfunctie | 46 m2 | Appartement | 2024 | geen data | ja | Weg |
Bovenstaande tabel toont de 296 adressen in het postcodegebied 2321 LD. Dit zijn alle adressen met postcode 2321LD in de BAG data van het Kadaster van 1 januari 2026.
De BAG (Basisregistratie Adressen en Gebouwen van het Kadaster) bevat de officiële gegevens van alle adressen en gebouwen in Nederland. In de BAG zijn, naast alle adressen, alle panden, verblijfsobjecten, standplaatsen en ligplaatsen geregistreerd. Per adres wordt ook het laatst bekende energielabel zoals geregistreerd bij de RVO weergegeven. Voorlopige energielabels zijn indicatief en niet rechtsgeldig; definitieve energielabels hebben een geldigheid van 10 jaar en kunnen inmiddels zijn verlopen.
Adressen LeidenDe vier bovenstaande taartdiagrammen tonen het percentage woningen naar verschillende woningkenmerken. Beschikbare kenmerken zijn eigendom, bewoning, type, soort woning en bouwperiode. Het jaar waar de data voor gelden staat in het midden van de grafiek. Klik op de afbeelding om deze groter weer te geven.
Bekijk onderstaande toelichting voor de definities van de woningkenmerken.
ToelichtingBovenstaand taartdiagram toont het aantal en percentage woningen naar type in het postcodegebied 2321 LD.
De gegevens over soorten woningen zijn gebaseerd op de Kadaster woningtypering en de gegevens over stand- en ligplaatsen van het Kadaster. Het soort woning is geografisch-algoritmisch bepaald voor panden waarin een woning is huisvest (panden met een woonfunctie als gebruiksdoel). De gegevens gelden voor de situatie op 1 januari 2026.
| Soort gebied | Naam gebied |
|---|---|
| Weg | Olympuspad |
| Woonplaats | Leiden |
| Buurt | Cronestein |
| Wijk | Roodenburgerdistrict |
| Gemeente | Leiden |
| Provincie | Zuid-Holland |
| Land | Nederland |
Bovenstaande tabel toont de regionale gebieden waarbinnen het postcodegebied 2321 LD zich bevindt. Dit is op basis van de gebiedsindelingen van het CBS van 2025 en de topografische kaarten van het Kadaster van 2026.
Klik op de naam van een gebied om de pagina met statistieken voor dat gebied weer te geven.Er zijn voor het postcodegebied 2321 LD geen gegevens over de herkomst van inwoners bekend.
Toelichting Meer migratieHet gemiddelde inkomen per huishouden in het postcodegebied 2321 LD is niet bekend. Het gemiddelde inkomen per huishouden in een postcodegebied is alleen bekend als er minstens 100 huishoudens wonen en als geen enkel huishouden meer dan 30% van het totale inkomen in dat gebied verdient.
Toelichting
Download alle data in handige Excel documenten van OpenInfo.nl. Niet goed, geld terug!
Download een schat aan informatie voor de gemeente Leiden. Met een Excel document met handige werkbladen met de data over de postcodes in de gemeente Leiden. Daarnaast bevat de download andere documenten met de data over de gemeente, wijken en buurten, alle adressen, verkiezingsuitslagen, gezondheidscijfers, misdaadcijfers en nog veel meer!
Download!Bovenstaande grafiek toont de ontwikkeling van het aantal verkeersongevallen in het postcodegebied 2321 LD. Gebruik het filter boven de grafiek om het aantal ongevallen per afloop (materiële schade, letselschade of dodelijke afloop) te bekijken.
Onderstaande tabel laat zien hoeveel verkeersongevallen er in het jaar 2024 in het postcodegebied 2321 LD plaatsvonden, uitgesplitst naar afloop.
| Afloop verkeersongevallen | Aantal verkeersongevallen in 2024 | jaar_verkeersongevallen_max |
|---|---|---|
| Totaal | 3 | 2024 |
| Materiële schade | 2 | 2024 |
| Letselschade | 1 | 2024 |
| Dodelijke afloop | 0 | 2024 |
De dataset met verkeersongevallen BRON is gekoppeld aan het digitale wegennet. Op basis van de locatie van de ongevallen is bepaald welke ongevallen binnen het postcodegebied 2321 LD vallen. De data over verkeersongevallen zijn ook beschikbaar op gemeente, wijk en buurt niveau. Bekijk de verkeersongevallen in de gemeente Leiden.
De data over ongevallen komen uit het Bestand geRegistreerde Ongevallen Nederland (BRON) van Rijkswaterstaat. Deze dataset bevat de verkeersongevallenmeldingen van de politie gekoppeld aan het digitale wegennet. De ongevallen zijn onderverdeeld naar de afloop van het ongeval: uitsluitend materiële schade, ongevallen met slachtoffers met letsel en ongevallen met dodelijke afloop. Letselschade is schade die iemand door lichamelijke verwondingen of psychische problemen heeft opgelopen. Onder ongevallen met slachtoffers met letsel vallen alle situaties waarbij iemand is opgenomen in het ziekenhuis, eerste hulp heeft gekregen of op een andere manier gewond is geraakt.
Bovenstaand staafdiagram toont de gemiddelde afstand in kilometers over de weg tot kinderdagverblijven, buitenschoolseopvang, basisonderwijs, voortgezet onderwijs totaal, VMBO scholen en HAVO VWO scholen. Gebruik het filter boven de grafiek om de gegevens voor verschillende soorten locaties te tonen. De gebruikte cijfers komen van uit de nabijheidsstatistieken van het CBS en gelden voor de situatie in 2023.
Deze grafiek toont een regionale vergelijking van de gemiddelde reisafstanden voor inwoners van hun woonadres naar de dichtstbijzijnde locaties voor kinderopvang, basisonderwijs en voortgezet onderwijs. De afstanden zijn berekend als gemiddelde afstand van alle inwoners in een gebied tot de dichtstbijzijnde voorziening, berekend over de autoweg en rekening houdend met de rijrichting. De volgende gebieden worden in de grafiek weergegeven: Nederland (oranje), provincie Zuid-Holland (bruin), gemeente Leiden (geel), postcode 2321 (groen) en 17 postcode5gebieden (roze). Er zijn voor het postcodegebied 2321 LD onvoldoende gegevens om deze postcode6 zelf in de grafiek weer te geven.
Overzicht van het aantal panden naar bouwjaar voor het postcodegebied 2321 LD. Op basis van de gegevens uit de BAG van het Kadaster van 1 januari 2026. Merk op: deze gegevens betreffen het aantal panden met een adres. Het aantal adressen met panden in een gebied is bijna altijd hoger dan het aantal panden. Dit is omdat er meerdere adressen in hetzelfde pand gehuisvest kunnen zijn, zoals bij een appartementengebouw. Anderzijds kunnen er ook panden zonder adres voorkomen (zoals bijvoorbeeld een schuur), panden zonder adres zijn in deze telling niet meegenomen.
De BAG bevat de officiële gegevens van alle adressen en gebouwen in Nederland. In de BAG zijn, naast alle adressen, alle panden, verblijfsobjecten, standplaatsen en ligplaatsen geregistreerd.
Advertentie:
Onderstaande tabel toont de meest recent beschikbare gegevens voor het postcodegebied 2321 LD voor meer dan 250 onderwerpen! Selecteer een categorie in de linkerkolom om de onderwerpen in die categorie weer te geven.
| Bevolking | Waarde | Eenheid | Jaar |
|---|---|---|---|
| Inwoners | 0 | Aantal | geen data |
| Mannen | geen data | Aantal | geen data |
| Vrouwen | geen data | Aantal | geen data |
| 0 tot 15 jaar | geen data | Aantal | geen data |
| 15 tot 25 jaar | geen data | Aantal | geen data |
| 25 tot 45 jaar | geen data | Aantal | geen data |
| 45 tot 65 jaar | geen data | Aantal | geen data |
| 65 jaar of ouder | geen data | Aantal | geen data |
| % Mannen | geen data | Percentage | geen data |
| % Vrouwen | geen data | Percentage | geen data |
| % 0 tot 15 jaar | 0,0% | Percentage | geen data |
| % 15 tot 25 jaar | 0,0% | Percentage | geen data |
| % 25 tot 45 jaar | 0,0% | Percentage | geen data |
| % 45 tot 65 jaar | 0,0% | Percentage | geen data |
| % 65 jaar of ouder | 0,0% | Percentage | geen data |
| Geboorten | geen data | Aantal | geen data |
| Herkomst totaal | 0 | Aantal | 2024 |
| Energieverbruik | Waarde | Eenheid | Jaar |
|---|---|---|---|
| Gemiddelde elektriciteitslevering per woning | geen data | Gemiddeld in kWh | geen data |
| Gemiddeld aardgasverbruik per woning | geen data | Gemiddeld per m³ | geen data |
| Adressen zonder energielabel | 296 | Aantal | 2026 |
| Adressen met voorlopig energielabel | 0 | Aantal | 2026 |
| Adressen met definitief energielabel | 0 | Aantal | 2026 |
| Energielabels A+++++ | 0 | Aantal | 2026 |
| Energielabels A++++ | 0 | Aantal | 2026 |
| Energielabels A+++ | 0 | Aantal | 2026 |
| Energielabels A++ | 0 | Aantal | 2026 |
| Energielabels A+ | 0 | Aantal | 2026 |
| Energielabels A | 0 | Aantal | 2026 |
| Energielabels B | 0 | Aantal | 2026 |
| Energielabels C | 0 | Aantal | 2026 |
| Energielabels D | 0 | Aantal | 2026 |
| Energielabels E | 0 | Aantal | 2026 |
| Energielabels F | 0 | Aantal | 2026 |
| Energielabels G | 0 | Aantal | 2026 |
| Huishoudens | Waarde | Eenheid | Jaar |
|---|---|---|---|
| Huishoudens | 0 | Aantal | geen data |
| Eenpersoonshuishoudens | geen data | Aantal | geen data |
| Meerpersoonshuishoudens | geen data | Aantal | geen data |
| Meerpersoonshuishoudens zonder kinderen | geen data | Aantal | geen data |
| Meerpersoonshuishoudens met kinderen | geen data | Aantal | geen data |
| Huishoudens eenouder kinderen | geen data | Aantal | geen data |
| Huishoudens twee ouders kinderen | geen data | Aantal | geen data |
| Gemiddelde huishoudensgrootte | geen data | Gemiddeld aantal | geen data |
| Inkomen | Waarde | Eenheid | Jaar |
|---|---|---|---|
| Mediaan huishoudinkomen | geen data | Categorisch type | geen data |
| Inwoners met WW bijstand AO uitkering | geen data | Aantal | geen data |
| Migratie | Waarde | Eenheid | Jaar |
|---|---|---|---|
| Herkomst Nederland | geen data | Aantal | geen data |
| Herkomst buiten Nederland | geen data | Aantal | geen data |
| Herkomst Europa | geen data | Aantal | geen data |
| Herkomst buiten Europa | geen data | Aantal | geen data |
| % Herkomst Nederland | geen data | Percentage | geen data |
| % Herkomst buiten Nederland | geen data | Percentage | geen data |
| % Herkomst Europa | geen data | Percentage | geen data |
| % Herkomst buiten Europa | geen data | Percentage | geen data |
| Geboren in Nederland met herkomst Nederland | geen data | Aantal | geen data |
| Geboren in Nederland met herkomst Europa | geen data | Aantal | geen data |
| Geboren in Nederland met herkomst buiten Europa | geen data | Aantal | geen data |
| Geboren in Nederland met herkomst buiten Nederland | geen data | Aantal | geen data |
| Geboren in Nederland | geen data | Aantal | geen data |
| Geboren buiten Nederland met herkomst Europa | geen data | Aantal | geen data |
| Geboren buiten Nederland met herkomst buiten Europa | geen data | Aantal | geen data |
| Geboren buiten Nederland | geen data | Aantal | geen data |
| Geboren / herkomst onnauwkeurigheid | geen data | Aantal | geen data |
| % Geboren in Nederland met herkomst Nederland | geen data | Percentage | geen data |
| % Geboren in Nederland met herkomst Europa | geen data | Percentage | geen data |
| % Geboren in Nederland met herkomst buiten Nederland | geen data | Percentage | geen data |
| % Geboren in Nederland met herkomst buiten Europa | geen data | Percentage | geen data |
| % Geboren in Nederland | geen data | Percentage | geen data |
| % Geboren buiten Nederland met herkomst Europa | geen data | Percentage | geen data |
| % Geboren buiten Nederland met herkomst buiten Europa | geen data | Percentage | geen data |
| % Geboren buiten Nederland | geen data | Percentage | geen data |
| Autochtoon | geen data | Aantal | geen data |
| Westers | geen data | Aantal | geen data |
| Niet-westers | geen data | Aantal | geen data |
| % Autochtoon | geen data | Percentage | geen data |
| % Westers | geen data | Percentage | geen data |
| % Niet-westers | geen data | Percentage | geen data |
| Nabijheid voorzieningen | Waarde | Eenheid | Jaar |
|---|---|---|---|
| Huisartsenpraktijk afstand | geen data | Gemiddelde afstand in km | geen data |
| Huisartsenpraktijken binnen 1 km | geen data | Gemiddeld aantal | geen data |
| Huisartsenpraktijken binnen 3 km | geen data | Gemiddeld aantal | geen data |
| Huisartsenpraktijken binnen 5 km | geen data | Gemiddeld aantal | geen data |
| Huisartsenpost afstand | geen data | Gemiddelde afstand in km | geen data |
| Apotheek afstand | geen data | Gemiddelde afstand in km | geen data |
| Ziekenhuis met poli afstand | geen data | Gemiddelde afstand in km | geen data |
| Ziekenhuizen met poli binnen 5 km | geen data | Gemiddeld aantal | geen data |
| Ziekenhuizen met poli binnen 10 km | geen data | Gemiddeld aantal | geen data |
| Ziekenhuizen met poli binnen 20 km | geen data | Gemiddeld aantal | geen data |
| Ziekenhuis zonder poli afstand | geen data | Gemiddelde afstand in km | geen data |
| Ziekenhuizen zonder poli binnen 5 km | geen data | Gemiddeld aantal | geen data |
| Ziekenhuizen zonder poli binnen 10 km | geen data | Gemiddeld aantal | geen data |
| Ziekenhuizen zonder poli binnen 20 km | geen data | Gemiddeld aantal | geen data |
| Supermarkt afstand | geen data | Gemiddelde afstand in km | geen data |
| Supermarkten binnen 1 km | geen data | Gemiddeld aantal | geen data |
| Supermarkten binnen 3 km | geen data | Gemiddeld aantal | geen data |
| Supermarkten binnen 5 km | geen data | Gemiddeld aantal | geen data |
| Overige dagelijkse levensmiddelen afstand | geen data | Gemiddelde afstand in km | geen data |
| Overige dagelijkse levensmiddelen binnen 1 km | geen data | Gemiddeld aantal | geen data |
| Overige dagelijkse levensmiddelen binnen 3 km | geen data | Gemiddeld aantal | geen data |
| Overige dagelijkse levensmiddelen binnen 5 km | geen data | Gemiddeld aantal | geen data |
| Warenhuis afstand | geen data | Gemiddelde afstand in km | geen data |
| Warenhuizen binnen 5 km | geen data | Gemiddeld aantal | geen data |
| Warenhuizen binnen 10 km | geen data | Gemiddeld aantal | geen data |
| Warenhuizen binnen 20 km | geen data | Gemiddeld aantal | geen data |
| Café afstand | geen data | Gemiddelde afstand in km | geen data |
| Cafés binnen 1 km | geen data | Gemiddeld aantal | geen data |
| Cafés binnen 3 km | geen data | Gemiddeld aantal | geen data |
| Cafés binnen 5 km | geen data | Gemiddeld aantal | geen data |
| Cafetaria afstand | geen data | Gemiddelde afstand in km | geen data |
| Cafetaria binnen 1 km | geen data | Gemiddeld aantal | geen data |
| Cafetaria binnen 3 km | geen data | Gemiddeld aantal | geen data |
| Cafetaria binnen 5 km | geen data | Gemiddeld aantal | geen data |
| Restaurant afstand | geen data | Gemiddelde afstand in km | geen data |
| Restaurants binnen 1 km | geen data | Gemiddeld aantal | geen data |
| Restaurants binnen 3 km | geen data | Gemiddeld aantal | geen data |
| Restaurants binnen 5 km | geen data | Gemiddeld aantal | geen data |
| Hotel afstand | geen data | Gemiddelde afstand in km | geen data |
| Hotels binnen 5 km | geen data | Gemiddeld aantal | geen data |
| Hotels binnen 10 km | geen data | Gemiddeld aantal | geen data |
| Hotels binnen 20 km | geen data | Gemiddeld aantal | geen data |
| Kinderdagverblijf afstand | geen data | Gemiddelde afstand in km | geen data |
| Kinderdagverblijven binnen 1 km | geen data | Gemiddeld aantal | geen data |
| Kinderdagverblijven binnen 3 km | geen data | Gemiddeld aantal | geen data |
| Kinderdagverblijven binnen 5 km | geen data | Gemiddeld aantal | geen data |
| Buitenschoolseopvang afstand | geen data | Gemiddelde afstand in km | geen data |
| Buitenschoolseopvang binnen 1 km | geen data | Gemiddeld aantal | geen data |
| Buitenschoolseopvang binnen 3 km | geen data | Gemiddeld aantal | geen data |
| Buitenschoolseopvang binnen 5 km | geen data | Gemiddeld aantal | geen data |
| Basisonderwijs afstand | geen data | Gemiddelde afstand in km | geen data |
| Basisonderwijs binnen 1 km | geen data | Gemiddeld aantal | geen data |
| Basisonderwijs binnen 3 km | geen data | Gemiddeld aantal | geen data |
| Basisonderwijs binnen 5 km | geen data | Gemiddeld aantal | geen data |
| Voortgezet onderwijs afstand | geen data | Gemiddelde afstand in km | geen data |
| Voortgezet onderwijs binnen 3 km | geen data | Gemiddeld aantal | geen data |
| Voortgezet onderwijs binnen 5 km | geen data | Gemiddeld aantal | geen data |
| Voortgezet onderwijs binnen 10 km | geen data | Gemiddeld aantal | geen data |
| VMBO afstand | geen data | Gemiddelde afstand in km | geen data |
| VMBO binnen 3 km | geen data | Gemiddeld aantal | geen data |
| VMBO binnen 5 km | geen data | Gemiddeld aantal | geen data |
| VMBO binnen 10 km | geen data | Gemiddeld aantal | geen data |
| HAVO VWO afstand | geen data | Gemiddelde afstand in km | geen data |
| HAVO VWO binnen 3 km | geen data | Gemiddeld aantal | geen data |
| HAVO VWO binnen 5 km | geen data | Gemiddeld aantal | geen data |
| HAVO VWO binnen 10 km | geen data | Gemiddeld aantal | geen data |
| Oprit hoofdverkeersweg afstand | geen data | Gemiddelde afstand in km | geen data |
| Treinstation afstand | geen data | Gemiddelde afstand in km | geen data |
| Belangrijk overstapstation afstand | geen data | Gemiddelde afstand in km | geen data |
| Bibliotheek afstand | geen data | Gemiddelde afstand in km | geen data |
| Zwembad afstand | geen data | Gemiddelde afstand in km | geen data |
| Kunstijsbaan afstand | geen data | Gemiddelde afstand in km | geen data |
| Podiumkunsten afstand | geen data | Gemiddelde afstand in km | geen data |
| Podiumkunsten binnen 5 km | geen data | Gemiddeld aantal | geen data |
| Podiumkunsten binnen 10 km | geen data | Gemiddeld aantal | geen data |
| Podiumkunsten binnen 20 km | geen data | Gemiddeld aantal | geen data |
| Poppodium afstand | geen data | Gemiddelde afstand in km | geen data |
| Bioscoop afstand | geen data | Gemiddelde afstand in km | geen data |
| Bioscopen binnen 5 km | geen data | Gemiddeld aantal | geen data |
| Bioscopen binnen 10 km | geen data | Gemiddeld aantal | geen data |
| Bioscopen binnen 20 km | geen data | Gemiddeld aantal | geen data |
| Sauna afstand | geen data | Gemiddelde afstand in km | geen data |
| Zonnebank afstand | geen data | Gemiddelde afstand in km | geen data |
| Museum afstand | geen data | Gemiddelde afstand in km | geen data |
| Musea binnen 5 km | geen data | Gemiddeld aantal | geen data |
| Musea binnen 10 km | geen data | Gemiddeld aantal | geen data |
| Musea binnen 20 km | geen data | Gemiddeld aantal | geen data |
| Attractie afstand | geen data | Gemiddelde afstand in km | geen data |
| Attracties binnen 10 km | geen data | Gemiddeld aantal | geen data |
| Attracties binnen 20 km | geen data | Gemiddeld aantal | geen data |
| Attracties binnen 50 km | geen data | Gemiddeld aantal | geen data |
| Brandweerkazerne afstand | geen data | Gemiddelde afstand in km | geen data |
| Omgeving | Waarde | Eenheid | Jaar |
|---|---|---|---|
| Postcode | 2321LD | Naam | 2026 |
| Soort regio | Postcode6 | Categorisch type | 2026 |
| Adressen met postcode | 296 | Aantal | 2026 |
| Adressen met woonfunctie | 289 | Aantal | 2026 |
| Adressen met bijeenkomstfunctie | 0 | Aantal | 2026 |
| Adressen met celfunctie | 0 | Aantal | 2026 |
| Adressen met gezondheidszorgfunctie | 1 | Aantal | 2026 |
| Adressen met industriefunctie | 0 | Aantal | 2026 |
| Adressen met kantoorfunctie | 0 | Aantal | 2026 |
| Adressen met logiesfunctie | 0 | Aantal | 2026 |
| Adressen met onderwijsfunctie | 0 | Aantal | 2026 |
| Adressen met sportfunctie | 1 | Aantal | 2026 |
| Adressen met winkelfunctie | 5 | Aantal | 2026 |
| Adressen met overige gebruiksfunctie | 0 | Aantal | 2026 |
| Verblijfsobjecten | 296 | Aantal | 2026 |
| Ligplaatsen | 0 | Aantal | 2026 |
| Standplaatsen | 0 | Aantal | 2026 |
| Panden met adres | 2 | Aantal | 2026 |
| Adressen met pand | 296 | Aantal | 2026 |
| Percelen met adres | 4 | Aantal | 2026 |
| Adressen met perceel | 296 | Aantal | 2026 |
| Adressen binnen bebouwde kom | 296 | Aantal | 2026 |
| Adressen buiten bebouwde kom | 0 | Aantal | 2026 |
| Woningen binnen bebouwde kom | 289 | Aantal | 2026 |
| Woningen buiten bebouwde kom | 0 | Aantal | 2026 |
| Panden met adres voor 1700 | 0 | Aantal | 2026 |
| Panden met adres 1700 tot 1900 | 0 | Aantal | 2026 |
| Panden met adres 1900 tot 1925 | 0 | Aantal | 2026 |
| Panden met adres 1925 tot 1950 | 0 | Aantal | 2026 |
| Panden met adres 1950 tot 1970 | 0 | Aantal | 2026 |
| Panden met adres 1970 tot 1980 | 0 | Aantal | 2026 |
| Panden met adres 1980 tot 1990 | 0 | Aantal | 2026 |
| Panden met adres 1990 tot 2000 | 0 | Aantal | 2026 |
| Panden met adres 2000 tot 2010 | 0 | Aantal | 2026 |
| Panden met adres 2010 tot 2020 | 0 | Aantal | 2026 |
| Panden met adres 2020 en later | 2 | Aantal | 2026 |
| Adressen met pand voor 1700 | 0 | Aantal | 2026 |
| Adressen met pand 1700 tot 1900 | 0 | Aantal | 2026 |
| Adressen met pand 1900 tot 1925 | 0 | Aantal | 2026 |
| Adressen met pand 1925 tot 1950 | 0 | Aantal | 2026 |
| Adressen met pand 1950 tot 1970 | 0 | Aantal | 2026 |
| Adressen met pand 1970 tot 1980 | 0 | Aantal | 2026 |
| Adressen met pand 1980 tot 1990 | 0 | Aantal | 2026 |
| Adressen met pand 1990 tot 2000 | 0 | Aantal | 2026 |
| Adressen met pand 2000 tot 2010 | 0 | Aantal | 2026 |
| Adressen met pand 2010 tot 2020 | 0 | Aantal | 2026 |
| Adressen met pand 2020 en later | 296 | Aantal | 2026 |
| Huisnummer start | 2 | Adres | 2026 |
| Huisnummer eind | 598 | Adres | 2026 |
| Soort huisnummers reeks | Even | Adres | 2026 |
| Aantal openbare ruimtes | 1 | Aantal | 2026 |
| Centrum | (93588.55067361104, 462218.0682605192) | Adres | 2024 |
| Postcode4 | 2321 | Naam | 2026 |
| Postcode5 | 2321L | Naam | 2026 |
| Gemeentenaam | Leiden | Naam | 2026 |
| Provincienaam | Zuid-Holland | Naam | 2026 |
| Gemeentecode | GM0546 | Code | 2026 |
| Provinciecode | PV28 | Code | 2026 |
| Verkeersongevallen | Waarde | Eenheid | Jaar |
|---|---|---|---|
| Verkeersongevallen totaal | 3 | Aantal | 2024 |
| Verkeersongevallen uitsluitend materiële schade | 2 | Aantal | 2024 |
| Verkeersongevallen letselschade | 1 | Aantal | 2024 |
| Verkeersongevallen dodelijk | 0 | Aantal | 2024 |
| Woningen | Waarde | Eenheid | Jaar |
|---|---|---|---|
| Woningvoorraad | 0 | Aantal | geen data |
| Gemiddelde woningwaarde | geen data | Gemiddeld in Euro | geen data |
| Woningwaarde klasse | geen data | Categorisch type | geen data |
| Eengezinswoningen | geen data | Aantal | geen data |
| Meergezinswoningen | geen data | Aantal | geen data |
| Koopwoningen | geen data | Aantal | geen data |
| Huurwoningen | geen data | Aantal | geen data |
| Huurwoningen woningcorporaties | geen data | Aantal | geen data |
| Huurwoningen overige verhuurders | geen data | Aantal | geen data |
| Eigendom onbekend | geen data | Aantal | geen data |
| Bewoond | geen data | Aantal | geen data |
| Onbewoond | geen data | Aantal | geen data |
| % Koopwoningen | geen data | Percentage | geen data |
| % Huurwoningen | geen data | Percentage | geen data |
| % Huurwoningen woningcorporaties | geen data | Percentage | geen data |
| % Huurwoningen overige verhuurders | geen data | Percentage | geen data |
| % Eigendom onbekend | 100% | Percentage | 2026 |
| % Eengezinswoningen | geen data | Percentage | geen data |
| % Meergezinswoningen | geen data | Percentage | geen data |
| % Bewoond | geen data | Percentage | geen data |
| % Onbewoond | geen data | Percentage | geen data |
| Appartementen | 289 | Aantal | 2026 |
| Tussenwoningen | 0 | Aantal | 2026 |
| Hoekwoningen | 0 | Aantal | 2026 |
| Twee-onder-één-kap woningen | 0 | Aantal | 2026 |
| Vrijstaande woningen | 0 | Aantal | 2026 |
| Woningtype onbekend | 0 | Aantal | 2026 |
| % Appartementen | 100% | Percentage | 2026 |
| % Tussenwoningen | 0,0% | Percentage | 2026 |
| % Hoekwoningen | 0,0% | Percentage | 2026 |
| % Twee-onder-één-kap woningen | 0,0% | Percentage | 2026 |
| % Vrijstaande woningen | 0,0% | Percentage | 2026 |
| % Woningtype onbekend | 0,0% | Percentage | 2026 |
| Woningen voor 1945 | 0 | Aantal | 2026 |
| Woningen 1945 tot 1965 | 0 | Aantal | 2026 |
| Woningen 1965 tot 1975 | 0 | Aantal | 2026 |
| Woningen 1975 tot 1985 | 0 | Aantal | 2026 |
| Woningen 1985 tot 1995 | 0 | Aantal | 2026 |
| Woningen 1995 tot 2005 | 0 | Aantal | 2026 |
| Woningen 2005 tot 2015 | 0 | Aantal | 2026 |
| Woningen 2015 tot 2025 | 289 | Aantal | 2026 |
| Woningen 2025 en later | 0 | Aantal | 2026 |
| Woningen bouwjaar onbekend | 0 | Aantal | 2026 |
| % Woningen voor 1945 | 0,0% | Percentage | 2026 |
| % Woningen 1945 tot 1965 | 0,0% | Percentage | 2026 |
| % Woningen 1965 tot 1975 | 0,0% | Percentage | 2026 |
| % Woningen 1975 tot 1985 | 0,0% | Percentage | 2026 |
| % Woningen 1985 tot 1995 | 0,0% | Percentage | 2026 |
| % Woningen 1995 tot 2005 | 0,0% | Percentage | 2026 |
| % Woningen 2005 tot 2015 | 0,0% | Percentage | 2026 |
| % Woningen 2015 tot 2025 | 100% | Percentage | 2026 |
| % Woningen 2025 en later | 0,0% | Percentage | 2026 |
| % Woningen bouwjaar onbekend | 0,0% | Percentage | 2026 |
AlleCijfers is gratis te gebruiken, maar niet kosteloos. Vind je de informatie waardevol? Help ons door een donatie te doen — hoe klein ook, we stellen het enorm op prijs.
Ontvang een e-mail als de informatie is bijgewerkt. Maximaal 2 per jaar en niets anders dan dat.
Inschrijven
Inspireer anderen en deel deze pagina:
Deel deze pagina: