De postcode 1502TZ heeft de huisnummerreeks 62 t/m 92.
Overzicht van de belangrijkste cijfers van het Kadaster en het CBS voor het postcodegebied 1502 TZ.
Onderstaande tabel toont de belangrijkste cijfers van het CBS en het Kadaster voor het postcodegebied 1502 TZ. Bekijk de pagina's voor de andere postcodes binnen het gebied van de numerieke postcode 1502 via de tabel op de pagina van postcodegebied 1502.
| Postcode 1502TZ | Aantal | Bron | Jaar data |
|---|---|---|---|
| Adressen met postcode | 14 | Kadaster | 2026 |
| Adressen met woonfunctie | 13 | Kadaster | 2026 |
| Panden met adres | 11 | Kadaster | 2026 |
| Percelen met adres | 13 | Kadaster | 2026 |
| Woningvoorraad | 15 | CBS | 2024 |
| Huishoudens | 15 | CBS | 2024 |
| Inwoners | 25 | CBS | 2024 |
Op deze pagina vind je een kaart van het postcodegebied 1502 TZ, de data over meer dan 250 onderwerpen voor het postcodegebied 1502 TZ en een overzicht van alle adressen met postcode 1502TZ.
Overzicht postcode 1502 DefinitiesPostcode 1502TZ ligt binnen het numerieke postcodegebied 1502 in de gemeente Zaanstad. Er zijn veertien adressen en vijftien woningen in het postcodegebied 1502 TZ. 80% van de woningen in het postcodegebied 1502 TZ is een koopwoning. De woningen hebben een gemiddelde WOZ waarde van €303.000. Er wonen 25 inwoners in het postcodegebied 1502 TZ. De meerderheid van de inwoners (40%) is tussen de 25 en 45 jaar oud. Postcode 1502TZ telt vijftien huishoudens van gemiddeld 1,9 personen.
De gemiddelde afstand over de weg tot de belangrijkste voorzieningen in het postcodegebied 1502 TZ is relatief kort:
Advertentie:

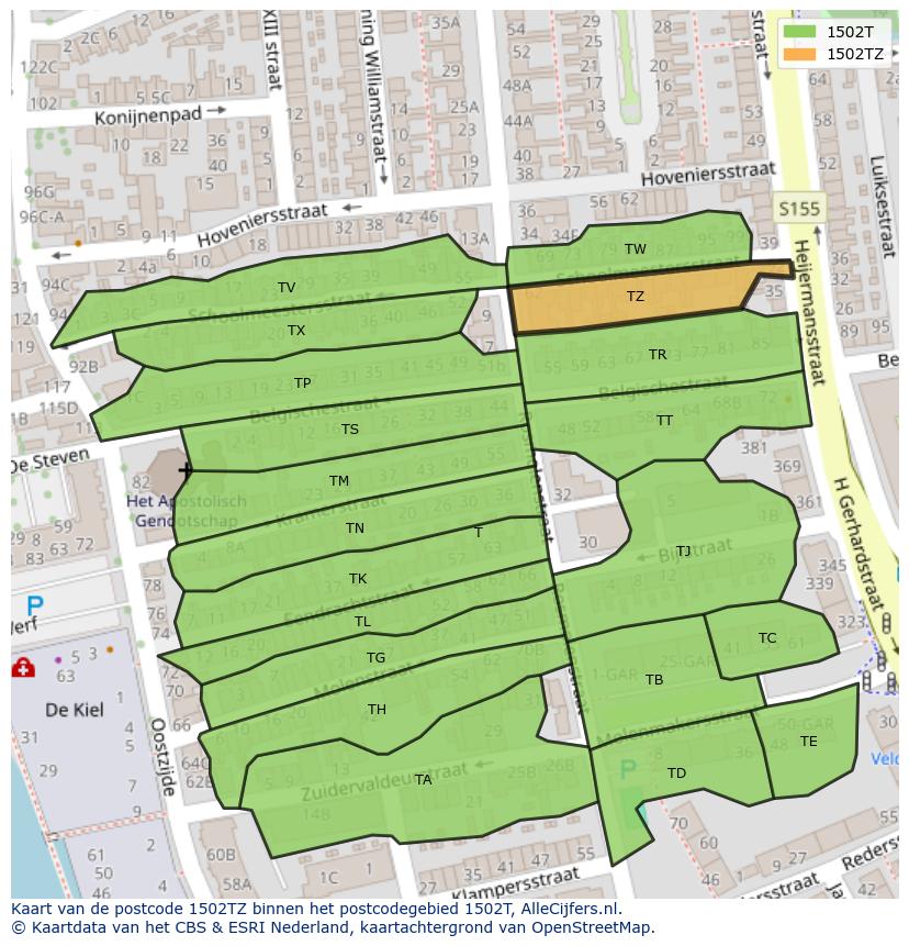
Bovenstaande afbeelding toont de kaart van het postcodegebied 1502TZ. Klik op de kaart om de geografie van de numerieke postcode 1502 te tonen. Tip: bekijk ook de interactieve postcodekaart.
De postcode 1502 TZ hoort bij de Schoolmeestersstraat te Zaandam binnen de gemeente Zaanstad. Deze postcode heeft de huisnummerreeks 62 t/m 92.
Download de postcodedata in handige Excel documenten voor de gemeente Zaanstad of voor heel Nederland.
Vorige postcode Volgende postcode| Straatnaam | Huisnummer | Postcode | Woonplaats | Gebruiksdoel | Oppervlakte | Woningtype | Bouwjaar | Energielabel | Bebouwde kom | Soort openbare ruimte |
|---|---|---|---|---|---|---|---|---|---|---|
| Schoolmeestersstraat | 62 | 1502TZ | Zaandam | Winkelfunctie | 111 m2 | n.v.t. | 1920 | geen data | ja | Weg |
| Schoolmeestersstraat | 64 | 1502TZ | Zaandam | Woonfunctie | 84 m2 | Vrijstaande woning | 1920 | G | ja | Weg |
| Schoolmeestersstraat | 66 | 1502TZ | Zaandam | Woonfunctie | 96 m2 | Twee-onder-één-kap woning | 1920 | A | ja | Weg |
| Schoolmeestersstraat | 68 | 1502TZ | Zaandam | Woonfunctie | 90 m2 | Twee-onder-één-kap woning | 1920 | D | ja | Weg |
| Schoolmeestersstraat | 70 | 1502TZ | Zaandam | Woonfunctie | 99 m2 | Twee-onder-één-kap woning | 1920 | G | ja | Weg |
| Schoolmeestersstraat | 72 | 1502TZ | Zaandam | Woonfunctie | 88 m2 | Twee-onder-één-kap woning | 1920 | G | ja | Weg |
| Schoolmeestersstraat | 76 | 1502TZ | Zaandam | Woonfunctie | 167 m2 | Twee-onder-één-kap woning | geen data | G | ja | Weg |
| Schoolmeestersstraat | 78 | 1502TZ | Zaandam | Woonfunctie | 94 m2 | Twee-onder-één-kap woning | 1901 | E | ja | Weg |
| Schoolmeestersstraat | 80 | 1502TZ | Zaandam | Woonfunctie | 94 m2 | Twee-onder-één-kap woning | 1901 | E | ja | Weg |
| Schoolmeestersstraat | 82 | 1502TZ | Zaandam | Woonfunctie | 82 m2 | Twee-onder-één-kap woning | 1901 | C | ja | Weg |
| Schoolmeestersstraat | 84 | 1502TZ | Zaandam | Woonfunctie | 101 m2 | Twee-onder-één-kap woning | 1901 | D | ja | Weg |
| Schoolmeestersstraat | 86 | 1502TZ | Zaandam | Woonfunctie | 157 m2 | Twee-onder-één-kap woning | geen data | E | ja | Weg |
| Schoolmeestersstraat | 90 | 1502TZ | Zaandam | Woonfunctie | 85 m2 | Vrijstaande woning | 1934 | F | ja | Weg |
| Schoolmeestersstraat | 92 | 1502TZ | Zaandam | Woonfunctie | 95 m2 | Appartement | 1934 | G | ja | Weg |
Bovenstaande tabel toont de 14 adressen in het postcodegebied 1502 TZ. Dit zijn alle adressen met postcode 1502TZ in de BAG data van het Kadaster van 1 januari 2026.
De BAG (Basisregistratie Adressen en Gebouwen van het Kadaster) bevat de officiële gegevens van alle adressen en gebouwen in Nederland. In de BAG zijn, naast alle adressen, alle panden, verblijfsobjecten, standplaatsen en ligplaatsen geregistreerd.
Een openbare ruimte is een door de gemeente aangewezen gebied dat is ingericht en wordt onderhouden voor publiek gebruik. Dit kan bijvoorbeeld een straat, weg, plein, park, erf, spoorbaan of brug zijn. Zie de toelichting voor een verdere definitie. Klik op de naam van een openbare ruimte om de pagina met statistieken voor die ruimte weer te geven. Bekijk de definities van de soorten openbare ruimtes.
Adressen ZaanstadDe vier bovenstaande taartdiagrammen tonen het percentage woningen naar verschillende woningkenmerken. Beschikbare kenmerken zijn eigendom, bewoning, type, soort woning en bouwperiode. Het jaar waar de data voor gelden staat in het midden van de grafiek. Klik op de afbeelding om deze groter weer te geven.
Bekijk onderstaande toelichting voor de definities van de woningkenmerken.
ToelichtingBovenstaande grafiek toont de gemiddelde WOZ woningwaarde per jaar in het postcodegebied 1502 TZ.
Onderstaande tabel toont de gemiddelde WOZ woningwaarde per jaar op basis van de data van het CBS voor het postcodegebied 1502 TZ:
| Jaar | Gemiddelde WOZ woningwaarde postcode 1502TZ | % verschil |
|---|---|---|
| 2023 | €303.000 | 27% |
| 2022 | €239.000 | 7,2% |
| 2021 | €223.000 | 5,2% |
| 2020 | €212.000 | 21% |
| 2019 | €175.000 | 9,4% |
| 2018 | €160.000 | 7,4% |
| 2017 | €149.000 | 3,47% |
| 2016 | €144.000 | geen data |
De gemiddelde WOZ woningwaarde in het postcodegebied 1502 TZ is met €159.000 gegroeid van €144.000 in 2016 tot €303.000 in 2023 (dat is een toename van 110%). Het gemiddelde verschil per jaar over de hele periode van 2016 tot en met 2023 was €22.714 (12%). De ontwikkeling van de data in de tijd volgt een monotoon stijgende trend: De cijfers groeien ieder jaar.
Bekijk ook de ranglijst van de woningwaarden per buurt in de gemeente Zaanstad.
ToelichtingBovenstaande lijngrafiek toont de verdeling van woningen naar type eigendom, koop of huur, per jaar tot en met 2024.
Woningen naar eigendom: Informatie over huur- en koopwoningen op basis van de cijfers van het CBS. Dit is gedaan met een koppeling tussen de BAG en het WOZ-register met een aanvulling uit het woningbestand van het Kadaster.
Bovenstaand taartdiagram toont het aantal en percentage woningen naar type in het postcodegebied 1502 TZ.
De gegevens over soorten woningen zijn gebaseerd op de Kadaster woningtypering en de gegevens over stand- en ligplaatsen van het Kadaster. Het soort woning is geografisch-algoritmisch bepaald voor panden waarin een woning is huisvest (panden met een woonfunctie als gebruiksdoel). De gegevens gelden voor de situatie op 1 januari 2026.
| Soort gebied | Naam gebied |
|---|---|
| Weg | Schoolmeestersstraat |
| Woonplaats | Zaandam |
| Buurt | Rosmolenbuurt West |
| Wijk | Rosmolenwijk |
| Gemeente | Zaanstad |
| Provincie | Noord-Holland |
| Land | Nederland |
Bovenstaande tabel toont de regionale gebieden waarbinnen het postcodegebied 1502 TZ zich bevindt. Dit is op basis van de gebiedsindelingen van het CBS van 2025 en de topografische kaarten van het Kadaster van 2026.
Klik op de naam van een gebied om de pagina met statistieken voor dat gebied weer te geven.Bovenstaande grafiek toont het aantal inwoners per jaar op basis van de data van het CBS voor het postcodegebied 1502 TZ.
Onderstaande tabel toont het aantal inwoners per jaar op basis van de data van het CBS voor het postcodegebied 1502 TZ:
| Jaar | Aantal inwoners postcode 1502TZ | % verschil |
|---|---|---|
| 2024 | 25 | 0,0% |
| 2023 | 25 | 0,0% |
| 2022 | 25 | 0,0% |
| 2021 | 25 | 0,0% |
| 2020 | 25 | -17% |
| 2019 | 30 | 20% |
| 2018 | 25 | -17% |
| 2017 | 30 | 0,0% |
| 2016 | 30 | 0,0% |
| 2015 | 30 | geen data |
De bevolking van het postcodegebied 1502 TZ is met 5 personen gedaald van 30 personen in 2015 tot 25 personen in 2024 (dat is een daling van 17%). Het gemiddelde verschil per jaar over de hele periode van 2015 tot en met 2024 was -1 personen (-1,48%).
Het aantal inwoners is het aantal personen zoals op 1 januari in het bevolkingsregister vastgelegd. Bekijk ook de tabel met het aantal inwoners per buurt in de gemeente Zaanstad.
In 2015 waren er 30 inwoners in het postcodegebied 1502 TZ. Dit is het hoogste aantal inwoners tot en met 2017. In 2018 is het aantal gedaald tot 25 personen. Dit is een daling van 5 (-17%) ten opzichte van 2017. Het aantal van 25 inwoners is het minimum in de hele periode waarover de inwonersdata beschikbaar zijn. In 2019 is het aantal gestegen tot 30 personen. De stijging ten opzichte van 2018 is 5 (20%). Het aantal van 30 inwoners is het hoogste aantal inwoners in de hele periode van 2015 tot en met 2024. In 2020 is het aantal gedaald tot 25 personen. Dit is een daling van 5 (-17%) ten opzichte van 2019. Het aantal inwoners blijft 25 tot en met 2024.
Advertentie:
Bevolking: aantal en percentage inwoners op 1 januari 2024 naar geslacht (klik op de vlakken in de donutgrafiek om de aantallen te zien).
De donutgrafiek toont het geslacht van de bevolking, vrouw of man. Deze informatie komt uit het bevolkingsregister van de gemeenten.
Bevolking, leeftijdsgroepen: aantal inwoners op 1 januari 2024 per leeftijdscategorie.
Het aantal inwoners per leeftijdsgroep is afgerond op vijftallen en wordt alleen getoond bij minimaal vijf inwoners. De download voor de gemeente Zaanstad bevat veel meer leeftijdgegevens: Er is een document met het aantal inwoners in de gemeente per levensjaar en met een bevolkingspiramide met een uitsplitsing naar leeftijd en geslacht. Daarnaast bevat het document met postcodedata het aantal inwoners voor iedere 5 jarige leeftijdsgroep van ‘0 tot 5 jaar’ tot en met ‘90 jaar en ouder’ per viercijferige (numerieke) postcode voor alle jaren in de periode van 1998 tot en met 2025.
Autochtoon of migratieachtergrond in Nederland voor de periode van 2015 tot en met 2024: Bovenstaande grafiek toont de verdeling van de bevolking naar herkomst uit Nederland, herkomst uit Europa en herkomst van buiten Europa in het postcodegebied 1502 TZ per jaar.
Onderstaande tabel toont het aantal inwoners maar herkomst per jaar op basis van de data van het CBS voor het postcodegebied 1502 TZ:
| Jaar | Herkomst Nederland | Herkomst Europa | Herkomst buiten Europa |
|---|---|---|---|
| 2024 | 20 | 0 | 0 |
| 2023 | 20 | 0 | 0 |
| 2022 | 22 | 0 | 0 |
| 2021 | 25 | 0 | 0 |
| 2020 | 25 | 0 | 0 |
| 2019 | 30 | 0 | 0 |
| 2018 | 25 | 0 | 0 |
| 2017 | 30 | 0 | 0 |
| 2016 | 30 | 0 | 0 |
| 2015 | 30 | 0 | 0 |
In 2024 was de herkomst van inwoners in het postcodegebied 1502 TZ als volgt verdeeld: herkomst uit Nederland: 100%, herkomst uit Europese landen: 0,0% en herkomst uit landen buiten Europa: 0,0% En in 2015 was de verdeling van inwoners naar herkomstgebied als volgt: herkomst uit Nederland: 100%, herkomst uit Europa: 0,0% en herkomst van buiten Europa: 0,0%.
Toelichting Meer migratieBovenstaande grafiek toont de gemiddelde grootte van huishoudens per gebied. Hierbij zijn de gebieden van laag naar hoog gesorteerd op het gemiddeld aantal personen in een huishouden. De gegevens gelden voor 2024.
De volgende gebieden worden in de grafiek weergegeven: 19 postcodegebieden (blauw), 14 postcode5gebieden (roze), 1 numerieke postcode (groen), 1 gemeente (geel), 1 provincie (bruin) en 1 land (oranje). Het postcodegebied 1502 TZ wordt in het rood weergegeven.
Bovenstaand taartdiagram toont de verdeling naar soorten huishoudens voor het postcodegebied 1502 TZ. De gegevens gelden voor 2024.
De cijfers gaan over de particuliere huishoudens op 1 januari 2024. Particuliere huishoudens bestaan uit één of meer inwoners die alleen of samen wonen en zelf in hun dagelijks onderhoud voorzien. In deze grafiek worden de huishoudens onderverdeeld in eenpersoonshuishoudens, meerpersoonshuishoudens zonder kinderen, huishoudens eenouder kinderen en huishoudens twee ouders kinderen. De cijfers over huishoudens zijn afgerond op vijftallen.
Het gemiddelde inkomen per huishouden in het postcodegebied 1502 TZ is niet bekend. Het gemiddelde inkomen per huishouden in een postcodegebied is alleen bekend als er minstens 100 huishoudens wonen en als geen enkel huishouden meer dan 30% van het totale inkomen in dat gebied verdient.
Toelichting
Download alle data in handige Excel documenten van OpenInfo.nl. Niet goed, geld terug!
Download een schat aan informatie voor de gemeente Zaanstad. Met een Excel document met handige werkbladen met de data over de postcodes in de gemeente Zaanstad. Daarnaast bevat de download andere documenten met de data over de gemeente, wijken en buurten, alle adressen, verkiezingsuitslagen, gezondheidscijfers, misdaadcijfers en nog veel meer!
Download!Bovenstaande grafiek toont de ontwikkeling van het aantal verkeersongevallen in het postcodegebied 1502 TZ. Gebruik het filter boven de grafiek om het aantal ongevallen per afloop (materiële schade, letselschade of dodelijke afloop) te bekijken.
Onderstaande tabel laat zien hoeveel verkeersongevallen er in het jaar 2024 in het postcodegebied 1502 TZ plaatsvonden, uitgesplitst naar afloop.
| Afloop verkeersongevallen | Aantal verkeersongevallen in 2024 | jaar_verkeersongevallen_max |
|---|---|---|
| Totaal | 0 | 2024 |
| Materiële schade | 0 | 2024 |
| Letselschade | 0 | 2024 |
| Dodelijke afloop | 0 | 2024 |
De dataset met verkeersongevallen BRON is gekoppeld aan het digitale wegennet. Op basis van de locatie van de ongevallen is bepaald welke ongevallen binnen het postcodegebied 1502 TZ vallen. De data over verkeersongevallen zijn ook beschikbaar op gemeente, wijk en buurt niveau. Bekijk de verkeersongevallen in de gemeente Zaanstad.
De data over ongevallen komen uit het Bestand geRegistreerde Ongevallen Nederland (BRON) van Rijkswaterstaat. Deze dataset bevat de verkeersongevallenmeldingen van de politie gekoppeld aan het digitale wegennet. De ongevallen zijn onderverdeeld naar de afloop van het ongeval: uitsluitend materiële schade, ongevallen met slachtoffers met letsel en ongevallen met dodelijke afloop. Letselschade is schade die iemand door lichamelijke verwondingen of psychische problemen heeft opgelopen. Onder ongevallen met slachtoffers met letsel vallen alle situaties waarbij iemand is opgenomen in het ziekenhuis, eerste hulp heeft gekregen of op een andere manier gewond is geraakt.
Bovenstaande grafiek toont het gemiddelde elektriciteitsverbruik en het gemiddelde aardgasverbruik per woning per jaar. De gegevens gelden voor 2023. Het gemiddelde energieverbruik in het postcodegebied 1502 TZ wordt vergeleken met dat in het grotere postcodegebied 1502, de gemeente Zaanstad, de provincie Noord-Holland en Nederland.
De grafiek toont het gemiddeld elektriciteitsverbruik in kWh en het gemiddeld verbruik van aardgas in m³. Het gemiddelde geldt voor het verbruik van één jaar van alle particuliere woningen in het postcodegebied 1502 TZ en de andere gebieden.
ToelichtingBovenstaande grafiek toont het aantal adressen per type energielabel in het postcodegebied 1502 TZ. Hiervoor zijn de data op adresniveau uit het EP-Online systeem van de RVO gebruikt. EP-Online is de officiële landelijke database waarin energielabels en energieprestatie-indicatoren van gebouwen zijn opgenomen. De gebruikte data gelden voor de situatie per 1 januari 2026.
Een energielabel geeft aan hoe energiezuinig een gebouw is. Hierbij is G het slechtste energielabel en A+++++ het beste. Energielabel G komt het meeste voor in het postcodegebied 1502 TZ: 5 adressen hebben energielabel G. De download met uitgebreide informatie voor de gemeente Zaanstad bevat de data over energielabels, zowel per postcode, woonplaats, wijk en buurt als per adres.
Bovenstaand staafdiagram toont de gemiddelde afstand in kilometers over de weg tot kinderdagverblijven, buitenschoolseopvang, basisonderwijs, voortgezet onderwijs totaal, VMBO scholen en HAVO VWO scholen. Gebruik het filter boven de grafiek om de gegevens voor verschillende soorten locaties te tonen. De gebruikte cijfers komen van uit de nabijheidsstatistieken van het CBS en gelden voor de situatie in 2023.
Deze grafiek toont een regionale vergelijking van de gemiddelde reisafstanden voor inwoners van hun woonadres naar de dichtstbijzijnde locaties voor kinderopvang, basisonderwijs en voortgezet onderwijs. De afstanden zijn berekend als gemiddelde afstand van alle inwoners in een gebied tot de dichtstbijzijnde voorziening, berekend over de autoweg en rekening houdend met de rijrichting. In de grafiek zie je de gegevens voor het postcodegebied 1502 TZ in vergelijking tot andere gebieden. De volgende gebieden worden in de grafiek weergegeven: Nederland (oranje), provincie Noord-Holland (bruin), gemeente Zaanstad (geel), postcode 1502 (groen), 14 postcode5gebieden (roze) en 19 postcodegebieden (blauw). Postcodegebied 1502 TZ wordt in het rood weergegeven.
Overzicht van het aantal panden naar bouwjaar voor het postcodegebied 1502 TZ. Op basis van de gegevens uit de BAG van het Kadaster van 1 januari 2026. Merk op: deze gegevens betreffen het aantal panden met een adres. Het aantal adressen met panden in een gebied is bijna altijd hoger dan het aantal panden. Dit is omdat er meerdere adressen in hetzelfde pand gehuisvest kunnen zijn, zoals bij een appartementengebouw. Anderzijds kunnen er ook panden zonder adres voorkomen (zoals bijvoorbeeld een schuur), panden zonder adres zijn in deze telling niet meegenomen.
De BAG bevat de officiële gegevens van alle adressen en gebouwen in Nederland. In de BAG zijn, naast alle adressen, alle panden, verblijfsobjecten, standplaatsen en ligplaatsen geregistreerd.
Advertentie:
Onderstaande tabel toont de meest recent beschikbare gegevens voor het postcodegebied 1502 TZ voor meer dan 250 onderwerpen! Selecteer een categorie in de linkerkolom om de onderwerpen in die categorie weer te geven.
| Bevolking | Waarde | Eenheid | Jaar |
|---|---|---|---|
| Inwoners | 25 | Aantal | 2024 |
| Mannen | 10 | Aantal | 2024 |
| Vrouwen | 15 | Aantal | 2024 |
| 0 tot 15 jaar | 0 | Aantal | 2024 |
| 15 tot 25 jaar | 0 | Aantal | 2024 |
| 25 tot 45 jaar | 10 | Aantal | 2024 |
| 45 tot 65 jaar | 5 | Aantal | 2024 |
| 65 jaar of ouder | 0 | Aantal | 2024 |
| % Mannen | 40% | Percentage | 2024 |
| % Vrouwen | 60% | Percentage | 2024 |
| % 0 tot 15 jaar | 0,0% | Percentage | 2024 |
| % 15 tot 25 jaar | 0,0% | Percentage | 2024 |
| % 25 tot 45 jaar | 40% | Percentage | 2024 |
| % 45 tot 65 jaar | 20% | Percentage | 2024 |
| % 65 jaar of ouder | 0,0% | Percentage | 2024 |
| Geboorten | geen data | Aantal | geen data |
| Herkomst totaal | 20 | Aantal | 2024 |
| Energieverbruik | Waarde | Eenheid | Jaar |
|---|---|---|---|
| Gemiddelde elektriciteitslevering per woning | 1.900 | Gemiddeld in kWh | 2023 |
| Gemiddeld aardgasverbruik per woning | 920 | Gemiddeld per m³ | 2023 |
| Adressen zonder energielabel | 1 | Aantal | 2026 |
| Adressen met voorlopig energielabel | 4 | Aantal | 2026 |
| Adressen met definitief energielabel | 9 | Aantal | 2026 |
| Energielabels A+++++ | 0 | Aantal | 2026 |
| Energielabels A++++ | 0 | Aantal | 2026 |
| Energielabels A+++ | 0 | Aantal | 2026 |
| Energielabels A++ | 0 | Aantal | 2026 |
| Energielabels A+ | 0 | Aantal | 2026 |
| Energielabels A | 1 | Aantal | 2026 |
| Energielabels B | 0 | Aantal | 2026 |
| Energielabels C | 1 | Aantal | 2026 |
| Energielabels D | 2 | Aantal | 2026 |
| Energielabels E | 3 | Aantal | 2026 |
| Energielabels F | 1 | Aantal | 2026 |
| Energielabels G | 5 | Aantal | 2026 |
| Huishoudens | Waarde | Eenheid | Jaar |
|---|---|---|---|
| Huishoudens | 15 | Aantal | 2024 |
| Eenpersoonshuishoudens | 10 | Aantal | 2024 |
| Meerpersoonshuishoudens | 5 | Aantal | 2024 |
| Meerpersoonshuishoudens zonder kinderen | 5 | Aantal | 2024 |
| Meerpersoonshuishoudens met kinderen | 0 | Aantal | 2024 |
| Huishoudens eenouder kinderen | 0 | Aantal | 2017 |
| Huishoudens twee ouders kinderen | 5 | Aantal | 2017 |
| Gemiddelde huishoudensgrootte | 1,9 | Gemiddeld aantal | 2024 |
| Inkomen | Waarde | Eenheid | Jaar |
|---|---|---|---|
| Mediaan huishoudinkomen | 60-80 boven midden | Categorisch type | 2019 |
| Inwoners met WW bijstand AO uitkering | geen data | Aantal | geen data |
| Migratie | Waarde | Eenheid | Jaar |
|---|---|---|---|
| Herkomst Nederland | 20 | Aantal | 2024 |
| Herkomst buiten Nederland | 0 | Aantal | 2024 |
| Herkomst Europa | 0 | Aantal | 2024 |
| Herkomst buiten Europa | 0 | Aantal | 2024 |
| % Herkomst Nederland | 100% | Percentage | 2024 |
| % Herkomst buiten Nederland | 0,0% | Percentage | 2024 |
| % Herkomst Europa | 0,0% | Percentage | 2024 |
| % Herkomst buiten Europa | 0,0% | Percentage | 2024 |
| Geboren in Nederland met herkomst Nederland | 20 | Aantal | 2024 |
| Geboren in Nederland met herkomst Europa | 0 | Aantal | 2024 |
| Geboren in Nederland met herkomst buiten Europa | 0 | Aantal | 2024 |
| Geboren in Nederland met herkomst buiten Nederland | 0 | Aantal | 2024 |
| Geboren in Nederland | 20 | Aantal | 2024 |
| Geboren buiten Nederland met herkomst Europa | 0 | Aantal | 2024 |
| Geboren buiten Nederland met herkomst buiten Europa | 0 | Aantal | 2024 |
| Geboren buiten Nederland | 0 | Aantal | 2024 |
| Geboren / herkomst onnauwkeurigheid | 5 | Aantal | 2024 |
| % Geboren in Nederland met herkomst Nederland | 100% | Percentage | 2024 |
| % Geboren in Nederland met herkomst Europa | 0,0% | Percentage | 2024 |
| % Geboren in Nederland met herkomst buiten Nederland | 0,0% | Percentage | 2024 |
| % Geboren in Nederland met herkomst buiten Europa | 0,0% | Percentage | 2024 |
| % Geboren in Nederland | 100% | Percentage | 2024 |
| % Geboren buiten Nederland met herkomst Europa | 0,0% | Percentage | 2024 |
| % Geboren buiten Nederland met herkomst buiten Europa | 0,0% | Percentage | 2024 |
| % Geboren buiten Nederland | 0,0% | Percentage | 2024 |
| Autochtoon | 22 | Aantal | 2021 |
| Westers | 0 | Aantal | 2021 |
| Niet-westers | 0 | Aantal | 2021 |
| % Autochtoon | 90% | Percentage | 2021 |
| % Westers | 0,0% | Percentage | 2021 |
| % Niet-westers | 0,0% | Percentage | 2021 |
| Nabijheid voorzieningen | Waarde | Eenheid | Jaar |
|---|---|---|---|
| Huisartsenpraktijk afstand | 0,8 | Gemiddelde afstand in km | 2023 |
| Huisartsenpraktijken binnen 1 km | 2,0 | Gemiddeld aantal | 2023 |
| Huisartsenpraktijken binnen 3 km | 14 | Gemiddeld aantal | 2023 |
| Huisartsenpraktijken binnen 5 km | 20 | Gemiddeld aantal | 2023 |
| Huisartsenpost afstand | 1,1 | Gemiddelde afstand in km | 2023 |
| Apotheek afstand | 0,8 | Gemiddelde afstand in km | 2023 |
| Ziekenhuis met poli afstand | 1,1 | Gemiddelde afstand in km | 2023 |
| Ziekenhuizen met poli binnen 5 km | 1,0 | Gemiddeld aantal | 2023 |
| Ziekenhuizen met poli binnen 10 km | 2,0 | Gemiddeld aantal | 2023 |
| Ziekenhuizen met poli binnen 20 km | 12 | Gemiddeld aantal | 2023 |
| Ziekenhuis zonder poli afstand | 1,1 | Gemiddelde afstand in km | 2023 |
| Ziekenhuizen zonder poli binnen 5 km | 1,0 | Gemiddeld aantal | 2023 |
| Ziekenhuizen zonder poli binnen 10 km | 2,0 | Gemiddeld aantal | 2023 |
| Ziekenhuizen zonder poli binnen 20 km | 9 | Gemiddeld aantal | 2023 |
| Supermarkt afstand | 0,6 | Gemiddelde afstand in km | 2023 |
| Supermarkten binnen 1 km | 1,0 | Gemiddeld aantal | 2023 |
| Supermarkten binnen 3 km | 18 | Gemiddeld aantal | 2023 |
| Supermarkten binnen 5 km | 25 | Gemiddeld aantal | 2023 |
| Overige dagelijkse levensmiddelen afstand | 0,0 | Gemiddelde afstand in km | 2023 |
| Overige dagelijkse levensmiddelen binnen 1 km | 6 | Gemiddeld aantal | 2023 |
| Overige dagelijkse levensmiddelen binnen 3 km | 59 | Gemiddeld aantal | 2023 |
| Overige dagelijkse levensmiddelen binnen 5 km | 83 | Gemiddeld aantal | 2023 |
| Warenhuis afstand | 2,2 | Gemiddelde afstand in km | 2023 |
| Warenhuizen binnen 5 km | 2,0 | Gemiddeld aantal | 2023 |
| Warenhuizen binnen 10 km | 7 | Gemiddeld aantal | 2023 |
| Warenhuizen binnen 20 km | 37 | Gemiddeld aantal | 2023 |
| Café afstand | 0,8 | Gemiddelde afstand in km | 2023 |
| Cafés binnen 1 km | 4,0 | Gemiddeld aantal | 2023 |
| Cafés binnen 3 km | 27 | Gemiddeld aantal | 2023 |
| Cafés binnen 5 km | 34 | Gemiddeld aantal | 2023 |
| Cafetaria afstand | 0,2 | Gemiddelde afstand in km | 2023 |
| Cafetaria binnen 1 km | 3,0 | Gemiddeld aantal | 2023 |
| Cafetaria binnen 3 km | 54 | Gemiddeld aantal | 2023 |
| Cafetaria binnen 5 km | 73 | Gemiddeld aantal | 2023 |
| Restaurant afstand | 0,5 | Gemiddelde afstand in km | 2023 |
| Restaurants binnen 1 km | 7 | Gemiddeld aantal | 2023 |
| Restaurants binnen 3 km | 64 | Gemiddeld aantal | 2023 |
| Restaurants binnen 5 km | 81 | Gemiddeld aantal | 2023 |
| Hotel afstand | 1,2 | Gemiddelde afstand in km | 2023 |
| Hotels binnen 5 km | 10 | Gemiddeld aantal | 2023 |
| Hotels binnen 10 km | 22 | Gemiddeld aantal | 2023 |
| Hotels binnen 20 km | 490 | Gemiddeld aantal | 2023 |
| Kinderdagverblijf afstand | 0,5 | Gemiddelde afstand in km | 2023 |
| Kinderdagverblijven binnen 1 km | 4,0 | Gemiddeld aantal | 2023 |
| Kinderdagverblijven binnen 3 km | 33 | Gemiddeld aantal | 2023 |
| Kinderdagverblijven binnen 5 km | 50 | Gemiddeld aantal | 2023 |
| Buitenschoolseopvang afstand | 0,5 | Gemiddelde afstand in km | 2023 |
| Buitenschoolseopvang binnen 1 km | 1,0 | Gemiddeld aantal | 2023 |
| Buitenschoolseopvang binnen 3 km | 17 | Gemiddeld aantal | 2023 |
| Buitenschoolseopvang binnen 5 km | 28 | Gemiddeld aantal | 2023 |
| Basisonderwijs afstand | 0,7 | Gemiddelde afstand in km | 2023 |
| Basisonderwijs binnen 1 km | 1,0 | Gemiddeld aantal | 2023 |
| Basisonderwijs binnen 3 km | 14 | Gemiddeld aantal | 2023 |
| Basisonderwijs binnen 5 km | 21 | Gemiddeld aantal | 2023 |
| Voortgezet onderwijs afstand | 1,8 | Gemiddelde afstand in km | 2023 |
| Voortgezet onderwijs binnen 3 km | 5 | Gemiddeld aantal | 2023 |
| Voortgezet onderwijs binnen 5 km | 6 | Gemiddeld aantal | 2023 |
| Voortgezet onderwijs binnen 10 km | 17 | Gemiddeld aantal | 2023 |
| VMBO afstand | 1,8 | Gemiddelde afstand in km | 2023 |
| VMBO binnen 3 km | 4,0 | Gemiddeld aantal | 2023 |
| VMBO binnen 5 km | 4,0 | Gemiddeld aantal | 2023 |
| VMBO binnen 10 km | 13 | Gemiddeld aantal | 2023 |
| HAVO VWO afstand | 1,8 | Gemiddelde afstand in km | 2023 |
| HAVO VWO binnen 3 km | 2,0 | Gemiddeld aantal | 2023 |
| HAVO VWO binnen 5 km | 3,0 | Gemiddeld aantal | 2023 |
| HAVO VWO binnen 10 km | 7 | Gemiddeld aantal | 2023 |
| Oprit hoofdverkeersweg afstand | 2,1 | Gemiddelde afstand in km | 2023 |
| Treinstation afstand | 1,7 | Gemiddelde afstand in km | 2023 |
| Belangrijk overstapstation afstand | 2,1 | Gemiddelde afstand in km | 2023 |
| Bibliotheek afstand | 1,9 | Gemiddelde afstand in km | 2023 |
| Zwembad afstand | 1,2 | Gemiddelde afstand in km | 2023 |
| Kunstijsbaan afstand | 17 | Gemiddelde afstand in km | 2023 |
| Podiumkunsten afstand | 1,1 | Gemiddelde afstand in km | 2023 |
| Podiumkunsten binnen 5 km | 2,0 | Gemiddeld aantal | 2023 |
| Podiumkunsten binnen 10 km | 3,0 | Gemiddeld aantal | 2023 |
| Podiumkunsten binnen 20 km | 58 | Gemiddeld aantal | 2023 |
| Poppodium afstand | 1,1 | Gemiddelde afstand in km | 2023 |
| Bioscoop afstand | 0,9 | Gemiddelde afstand in km | 2023 |
| Bioscopen binnen 5 km | 2,0 | Gemiddeld aantal | 2023 |
| Bioscopen binnen 10 km | 2,0 | Gemiddeld aantal | 2023 |
| Bioscopen binnen 20 km | 20 | Gemiddeld aantal | 2023 |
| Sauna afstand | 1,5 | Gemiddelde afstand in km | 2023 |
| Zonnebank afstand | 1,5 | Gemiddelde afstand in km | 2023 |
| Museum afstand | 1,5 | Gemiddelde afstand in km | 2023 |
| Musea binnen 5 km | 7 | Gemiddeld aantal | 2023 |
| Musea binnen 10 km | 7 | Gemiddeld aantal | 2023 |
| Musea binnen 20 km | 67 | Gemiddeld aantal | 2023 |
| Attractie afstand | 3,2 | Gemiddelde afstand in km | 2023 |
| Attracties binnen 10 km | 1,0 | Gemiddeld aantal | 2023 |
| Attracties binnen 20 km | 11 | Gemiddeld aantal | 2023 |
| Attracties binnen 50 km | 58 | Gemiddeld aantal | 2023 |
| Brandweerkazerne afstand | 1,0 | Gemiddelde afstand in km | 2023 |
| Omgeving | Waarde | Eenheid | Jaar |
|---|---|---|---|
| Postcode | 1502TZ | Naam | 2026 |
| Soort regio | Postcode6 | Categorisch type | 2026 |
| Adressen met postcode | 14 | Aantal | 2026 |
| Adressen met woonfunctie | 13 | Aantal | 2026 |
| Adressen met bijeenkomstfunctie | 0 | Aantal | 2026 |
| Adressen met celfunctie | 0 | Aantal | 2026 |
| Adressen met gezondheidszorgfunctie | 0 | Aantal | 2026 |
| Adressen met industriefunctie | 0 | Aantal | 2026 |
| Adressen met kantoorfunctie | 0 | Aantal | 2026 |
| Adressen met logiesfunctie | 0 | Aantal | 2026 |
| Adressen met onderwijsfunctie | 0 | Aantal | 2026 |
| Adressen met sportfunctie | 0 | Aantal | 2026 |
| Adressen met winkelfunctie | 1 | Aantal | 2026 |
| Adressen met overige gebruiksfunctie | 0 | Aantal | 2026 |
| Verblijfsobjecten | 14 | Aantal | 2026 |
| Ligplaatsen | 0 | Aantal | 2026 |
| Standplaatsen | 0 | Aantal | 2026 |
| Panden met adres | 11 | Aantal | 2026 |
| Adressen met pand | 12 | Aantal | 2026 |
| Percelen met adres | 13 | Aantal | 2026 |
| Adressen met perceel | 14 | Aantal | 2026 |
| Adressen binnen bebouwde kom | 14 | Aantal | 2026 |
| Adressen buiten bebouwde kom | 0 | Aantal | 2026 |
| Woningen binnen bebouwde kom | 13 | Aantal | 2026 |
| Woningen buiten bebouwde kom | 0 | Aantal | 2026 |
| Panden met adres voor 1700 | 0 | Aantal | 2026 |
| Panden met adres 1700 tot 1900 | 0 | Aantal | 2026 |
| Panden met adres 1900 tot 1925 | 9 | Aantal | 2026 |
| Panden met adres 1925 tot 1950 | 2 | Aantal | 2026 |
| Panden met adres 1950 tot 1970 | 0 | Aantal | 2026 |
| Panden met adres 1970 tot 1980 | 0 | Aantal | 2026 |
| Panden met adres 1980 tot 1990 | 0 | Aantal | 2026 |
| Panden met adres 1990 tot 2000 | 0 | Aantal | 2026 |
| Panden met adres 2000 tot 2010 | 0 | Aantal | 2026 |
| Panden met adres 2010 tot 2020 | 0 | Aantal | 2026 |
| Panden met adres 2020 en later | 0 | Aantal | 2026 |
| Adressen met pand voor 1700 | 0 | Aantal | 2026 |
| Adressen met pand 1700 tot 1900 | 0 | Aantal | 2026 |
| Adressen met pand 1900 tot 1925 | 10 | Aantal | 2026 |
| Adressen met pand 1925 tot 1950 | 2 | Aantal | 2026 |
| Adressen met pand 1950 tot 1970 | 0 | Aantal | 2026 |
| Adressen met pand 1970 tot 1980 | 0 | Aantal | 2026 |
| Adressen met pand 1980 tot 1990 | 0 | Aantal | 2026 |
| Adressen met pand 1990 tot 2000 | 0 | Aantal | 2026 |
| Adressen met pand 2000 tot 2010 | 0 | Aantal | 2026 |
| Adressen met pand 2010 tot 2020 | 0 | Aantal | 2026 |
| Adressen met pand 2020 en later | 0 | Aantal | 2026 |
| Huisnummer start | 62 | Adres | 2026 |
| Huisnummer eind | 92 | Adres | 2026 |
| Soort huisnummers reeks | Even | Adres | 2026 |
| Aantal openbare ruimtes | 1 | Aantal | 2026 |
| Centrum | (116898.29944283735, 495537.9860827995) | Adres | 2024 |
| Postcode4 | 1502 | Naam | 2026 |
| Postcode5 | 1502T | Naam | 2026 |
| Gemeentenaam | Zaanstad | Naam | 2026 |
| Provincienaam | Noord-Holland | Naam | 2026 |
| Gemeentecode | GM0479 | Code | 2026 |
| Provinciecode | PV27 | Code | 2026 |
| Verkeersongevallen | Waarde | Eenheid | Jaar |
|---|---|---|---|
| Verkeersongevallen totaal | 0 | Aantal | 2024 |
| Verkeersongevallen uitsluitend materiële schade | 0 | Aantal | 2024 |
| Verkeersongevallen letselschade | 0 | Aantal | 2024 |
| Verkeersongevallen dodelijk | 0 | Aantal | 2024 |
| Woningen | Waarde | Eenheid | Jaar |
|---|---|---|---|
| Woningvoorraad | 15 | Aantal | 2024 |
| Gemiddelde woningwaarde | €303.000 | Gemiddeld in Euro | 2023 |
| Woningwaarde klasse | €300.000 tot €350.000 | Categorisch type | 2023 |
| Eengezinswoningen | geen data | Aantal | geen data |
| Meergezinswoningen | geen data | Aantal | geen data |
| Koopwoningen | 12 | Aantal | 2024 |
| Huurwoningen | 3 | Aantal | 2024 |
| Huurwoningen woningcorporaties | 0 | Aantal | 2019 |
| Huurwoningen overige verhuurders | 0 | Aantal | 2019 |
| Eigendom onbekend | 0 | Aantal | 2024 |
| Bewoond | geen data | Aantal | geen data |
| Onbewoond | geen data | Aantal | geen data |
| % Koopwoningen | 80% | Percentage | 2024 |
| % Huurwoningen | 20% | Percentage | 2024 |
| % Huurwoningen woningcorporaties | 0% | Percentage | 2019 |
| % Huurwoningen overige verhuurders | 0% | Percentage | 2019 |
| % Eigendom onbekend | 100% | Percentage | 2026 |
| % Eengezinswoningen | geen data | Percentage | geen data |
| % Meergezinswoningen | geen data | Percentage | geen data |
| % Bewoond | geen data | Percentage | geen data |
| % Onbewoond | geen data | Percentage | geen data |
| Appartementen | 1 | Aantal | 2026 |
| Tussenwoningen | 0 | Aantal | 2026 |
| Hoekwoningen | 0 | Aantal | 2026 |
| Twee-onder-één-kap woningen | 10 | Aantal | 2026 |
| Vrijstaande woningen | 2 | Aantal | 2026 |
| Woningtype onbekend | 0 | Aantal | 2026 |
| % Appartementen | 8% | Percentage | 2026 |
| % Tussenwoningen | 0,0% | Percentage | 2026 |
| % Hoekwoningen | 0,0% | Percentage | 2026 |
| % Twee-onder-één-kap woningen | 77% | Percentage | 2026 |
| % Vrijstaande woningen | 15% | Percentage | 2026 |
| % Woningtype onbekend | 0,0% | Percentage | 2026 |
| Woningen voor 1945 | 11 | Aantal | 2026 |
| Woningen 1945 tot 1965 | 0 | Aantal | 2026 |
| Woningen 1965 tot 1975 | 0 | Aantal | 2026 |
| Woningen 1975 tot 1985 | 0 | Aantal | 2026 |
| Woningen 1985 tot 1995 | 0 | Aantal | 2026 |
| Woningen 1995 tot 2005 | 0 | Aantal | 2026 |
| Woningen 2005 tot 2015 | 0 | Aantal | 2026 |
| Woningen 2015 tot 2025 | 0 | Aantal | 2026 |
| Woningen 2025 en later | 0 | Aantal | 2026 |
| Woningen bouwjaar onbekend | 2 | Aantal | 2026 |
| % Woningen voor 1945 | 85% | Percentage | 2026 |
| % Woningen 1945 tot 1965 | 0,0% | Percentage | 2026 |
| % Woningen 1965 tot 1975 | 0,0% | Percentage | 2026 |
| % Woningen 1975 tot 1985 | 0,0% | Percentage | 2026 |
| % Woningen 1985 tot 1995 | 0,0% | Percentage | 2026 |
| % Woningen 1995 tot 2005 | 0,0% | Percentage | 2026 |
| % Woningen 2005 tot 2015 | 0,0% | Percentage | 2026 |
| % Woningen 2015 tot 2025 | 0,0% | Percentage | 2026 |
| % Woningen 2025 en later | 0,0% | Percentage | 2026 |
| % Woningen bouwjaar onbekend | 15% | Percentage | 2026 |
AlleCijfers is gratis te gebruiken, maar niet kosteloos. Vind je de informatie waardevol? Help ons door een donatie te doen — hoe klein ook, we stellen het enorm op prijs.
Ontvang een e-mail als de informatie is bijgewerkt. Maximaal 2 per jaar en niets anders dan dat.
Inschrijven
Inspireer anderen en deel deze pagina:
Deel deze pagina: